€ 985.000 | Marbella Este – Río Real – Greenlife Village | ¡Casa adosada esquinera de estilo andaluz clásico!
Casa adosada esquinera de estilo andaluz clásico en Río Real, Marbella Este, con 3 dormitorios, 2 baños, mucha privacidad, varias terrazas y plaza de aparcamiento privada dentro de la propiedad. Ubicación tranquila, cerca de la playa y del centro de Marbella, con vistas al campo de golf y vistas parciales al mar.
Consejo: Pregúntanos por el vídeo con dron que hemos realizado de la vivienda y su entorno. Muestra claramente la ubicación en relación con la playa, el campo de golf y la ciudad de Marbella.
Descripción de la vivienda
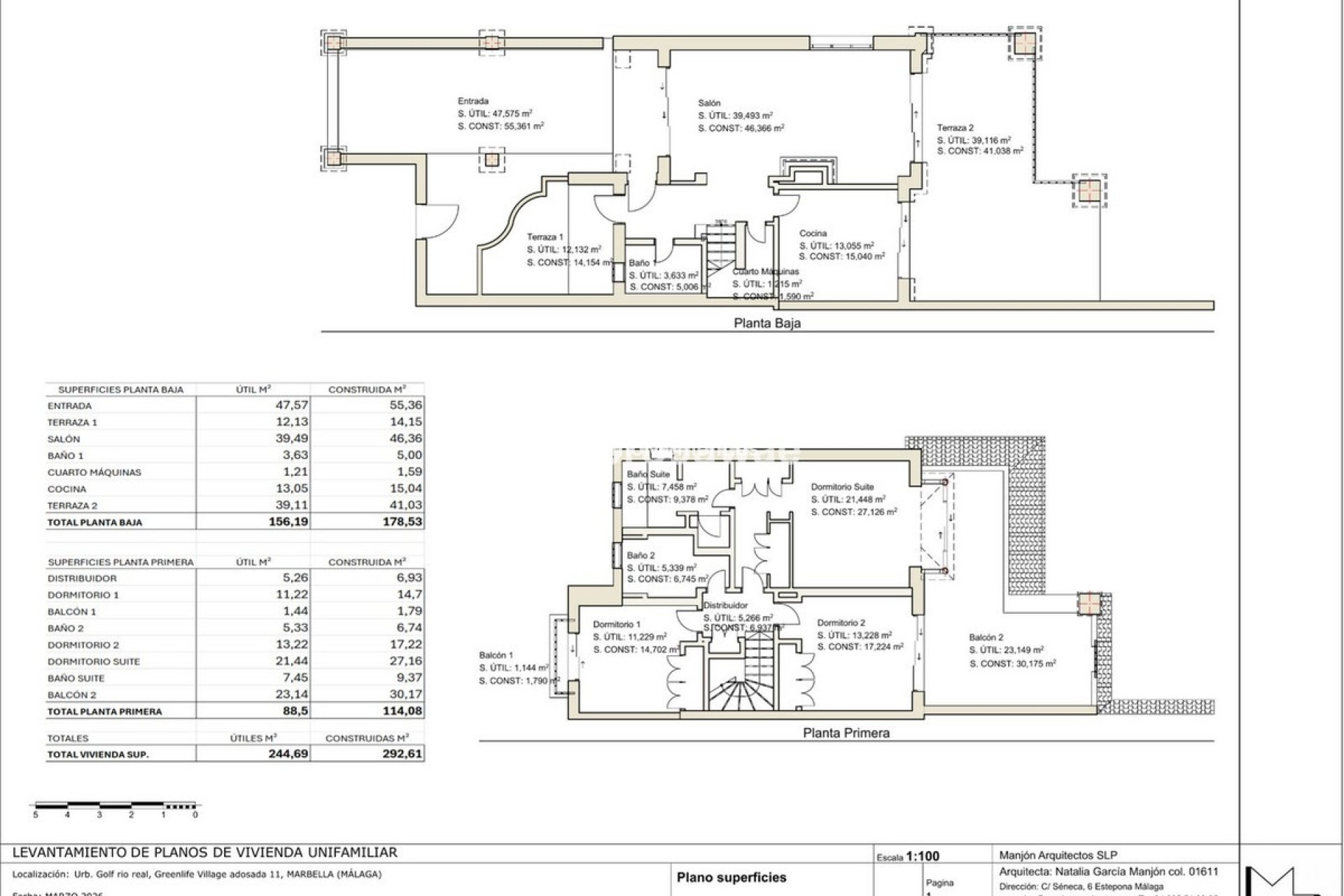
La vivienda se distribuye en dos plantas.
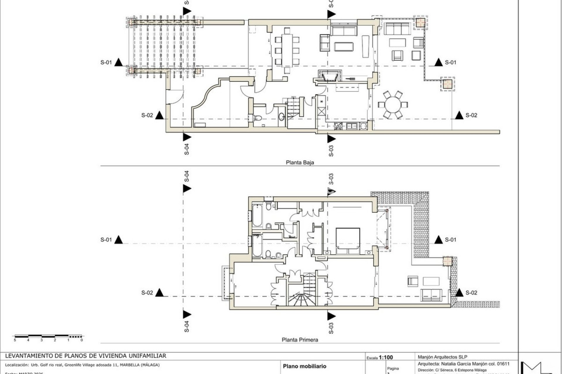
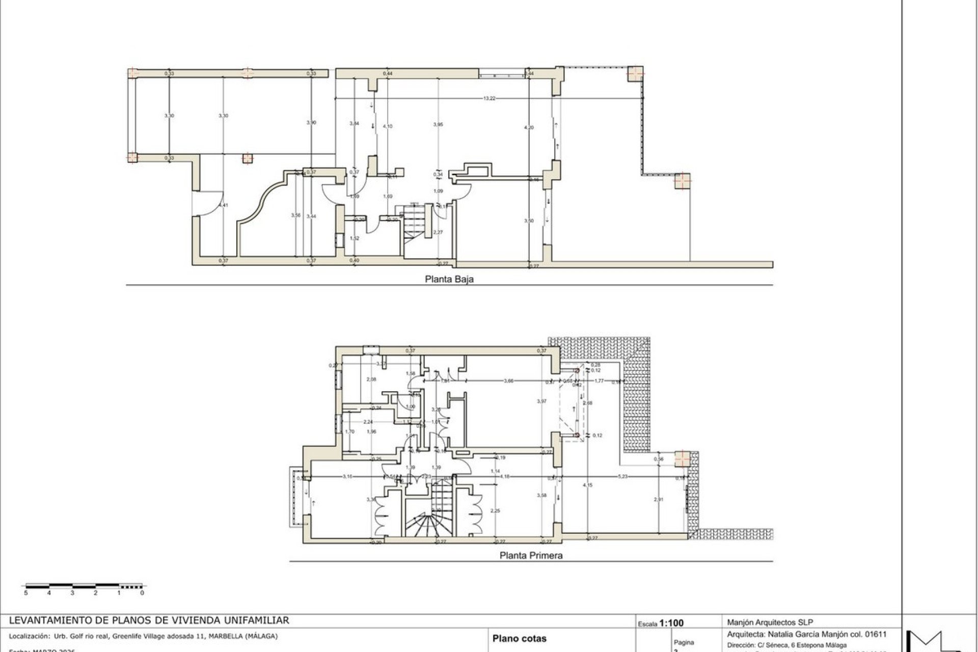
Distribución planta baja
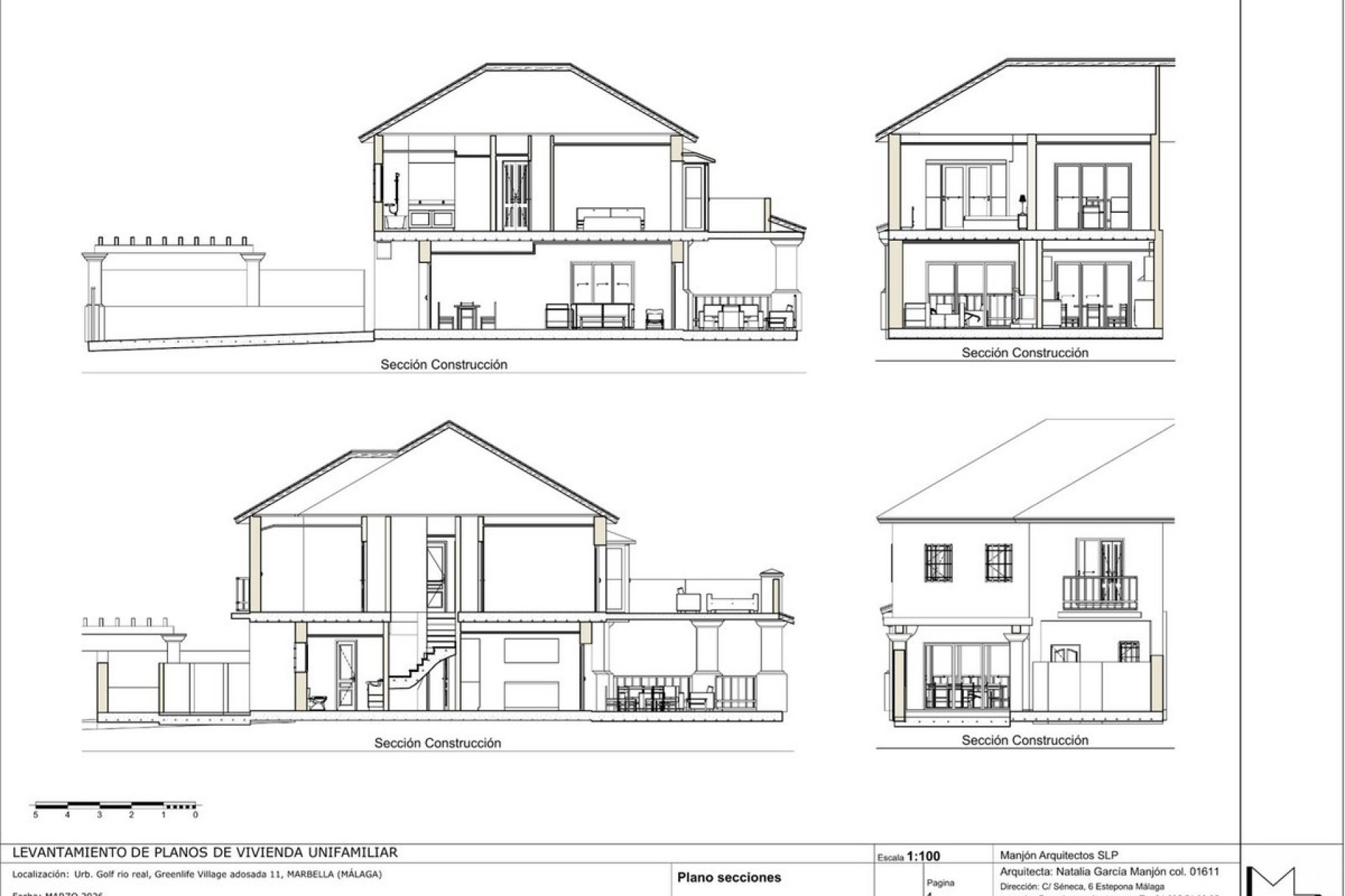
Hall de entrada con escalera, armario bajo escalera, aseo de invitados y acceso al patio. Amplio salón-comedor con chimenea y dos puertas correderas que dan acceso a las terrazas.
La cocina se encuentra en un espacio independiente y está equipada con placa de inducción con extractor, lavavajillas, frigorífico, congelador, horno y microondas.
Se trata de una cocina de diseño a medida de la marca danesa Sønderborg Køkkenet: madera maciza, diseño escandinavo elegante, funcional y de alta calidad.
Exterior planta baja y orientación
Jardín, patio, terrazas y zona de aparcamiento.
La vivienda dispone de una terraza en el lado del jardín del salón, orientada al sureste, y otra terraza en el lado de la calle, orientada al noroeste.
Además, cuenta con un carport con pérgola y portón eléctrico, con espacio para dos coches.
Distribución planta superior
En la planta superior se encuentran un distribuidor, tres amplios dormitorios y dos baños.
Dormitorio principal (1)
Amplio dormitorio con armarios empotrados. Baño en suite con ducha a ras de suelo, mueble con doble lavabo, inodoro y bidé. El baño dispone de calefacción por suelo radiante. Acceso directo a la terraza.
Dormitorio (2)
Amplio dormitorio con armarios empotrados y acceso a la terraza mediante puerta corredera.
Dormitorio (3)
Amplio dormitorio con armarios empotrados y balcón francés.
Segundo baño
Baño independiente accesible desde el distribuidor, con bañera, ducha, bidé, inodoro y mueble con doble lavabo. Equipado con calefacción por infrarrojos en el techo.
La gran terraza de la planta superior ofrece vistas al campo de golf de Río Real y vistas parciales al mar, con sol de tarde hasta las 16:00 horas.
Climatización
Además de la chimenea en el salón, la vivienda dispone de aire acondicionado (frío/calor), regulable por planta.
Suelos
Todos los suelos están acabados en mármol beige claro (mármol Crema Marfil), incluyendo las terrazas exteriores de la planta baja.
La terraza de la planta superior está acabada con baldosas cerámicas con aspecto terracota en tono claro.
Mobiliario
La vivienda se entrega sin mobiliario.
Plaza de garaje opcional con trastero
Opcionalmente se puede adquirir una plaza de aparcamiento con trastero en el bloque 5 (a unos 100 metros) por € 20.000.
Nota: existe derecho de tanteo para los propietarios de los apartamentos del bloque 5.
Información adicional
Entrega preferiblemente a partir del 01-07-2026 (no antes posible).
Doble acristalamiento.
Sistema de alarma.
¡Lista para entrar a vivir!
Urbanización Greenlife Village
Greenlife Village es una urbanización pequeña y muy bien mantenida, compuesta por 26 adosados, rodeada de jardines comunitarios bien cuidados con vegetación madura.
Dispone de zona de piscina con una piscina grande y otra infantil, además de abundantes tumbonas y sombrillas. La piscina suele ser tranquila.
El complejo fue construido en 1999 y entregado en el año 2000, ofreciendo un entorno residencial agradable y bien cuidado.
Muchas viviendas están habitadas de forma permanente. La última venta de un adosado fue hace aproximadamente dos años. El vendedor (danés) es el primer propietario.
Ubicación
La vivienda se encuentra en la tranquila y verde zona de Río Real, al este de Marbella, en una calle sin salida. Río Real es una zona muy demandada, con villas, adosados y apartamentos, en gran parte construidos alrededor del campo de golf.
La vivienda está a unos 50 minutos del aeropuerto de Málaga y a solo 10 minutos en coche del casco antiguo de Marbella y del centro comercial La Cañada. También es accesible en bicicleta o a pie a través del paseo marítimo.
La playa de Río Real, a unos 900 metros a pie, conecta con la conocida playa de Los Monteros. Aquí se pueden practicar actividades como motos acuáticas y surf. En la playa se encuentra el exclusivo beach club con restaurante y bar: Trocadero Arena.
El popular Río Real Golf & Hotel está a poca distancia a pie. Este hermoso campo de golf llega hasta la playa, lo que hace esta ubicación aún más especial.
Además, se espera que la zona aumente su atractivo con el desarrollo previsto del lujoso Four Seasons Resort, lo que dará un impulso positivo a la zona.