Tolle Gelegenheit, eine einzigartige Villa in der berge Mijas Pueblo zu erwerben, die alle Erwartungen übertrifft
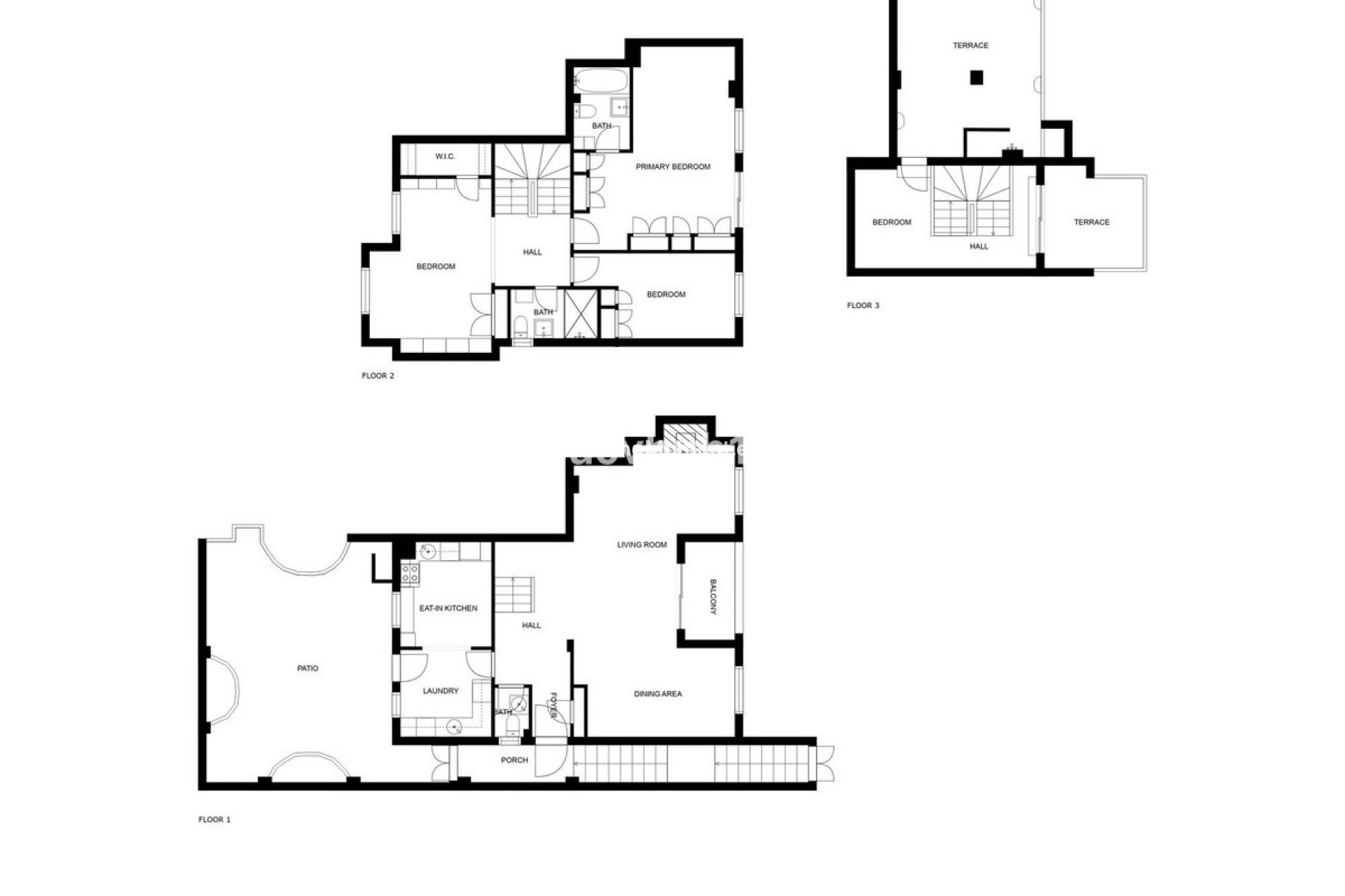
Tauchen Sie in dieser atemberaubenden Villa in die bezaubernde Landschaft von Mijas Pueblo ein, wo die sonnenverwöhnte Küste auf die majestätischen Berge trifft. Dieses Haus bietet eine außergewöhnliche Mischung aus Luxus und Komfort und verfügt über vier Schlafzimmer, drei Badezimmer und einen großen Wohnbereich mit einem gemütlichen Kamin. Der Küchenbereich ist eine perfekte Kombination aus Platz und Funktionalität. Und wenn es Zeit ist, mit Familie und Freunden im Freien zu speisen, gibt es keinen besseren Ort als den malerischen Innenhof mit Zitronen- und Mandarinenbäumen. Betreten Sie die Sonnendachterrasse und Sie werden mit einem atemberaubenden Blick auf das Meer und die Berge begrüßt. Genießen Sie die Wärme der Sonne beim Duschen in der Außendusche oder entspannen Sie sich bei einem guten Buch.
Dieses schöne Anwesen verfügt außerdem über eine Garage für zwei Autos, eine Bodega und viel Stauraum. Dank der Lage in der charmanten Stadt Mijas Pueblo haben Sie einfachen Zugang zu allen Annehmlichkeiten, die Sie sich wünschen, von malerischen Geschäften und Restaurants bis hin zu erstklassigen Golfplätzen und Stränden. Dieses Doppelhaus ist die perfekte Kombination aus Entspannung und Spannung und der ultimative Zufluchtsort.
Das Anwesen bietet einen Hauch von mediterranem Charme, während das moderne Design und die hochwertige Ausstattung einen Hauch von Luxus verleihen. Egal, ob Sie einen ruhigen Rückzugsort oder einen Ort suchen, an dem Sie Freunde und Familie unterhalten können, dieses spektakuläre Anwesen bietet alles.
Lassen Sie sich diese einmalige Gelegenheit nicht entgehen, ein wirklich einzigartiges und außergewöhnliches Haus in einem der schönsten Teile Spaniens zu besitzen. Kontaktieren Sie mich noch heute, um einen Besichtigungstermin zu vereinbaren und Ihr Traumleben in Mijas Pueblo zu leben.
Anne Saarikangas
anne@strand.es +34619278021