Charmantes Reihenhaus in Alhaurín el Grande mit großzügigen Innenräumen und Außenbereichen
In einer ruhigen Straße, nur wenige Schritte von lokalen Annehmlichkeiten entfernt, gelegen, bietet dieses geräumige Reihenhaus den perfekten Rahmen für ein Familienheim und vereint Komfort, Platz und hervorragende Außenbereiche.
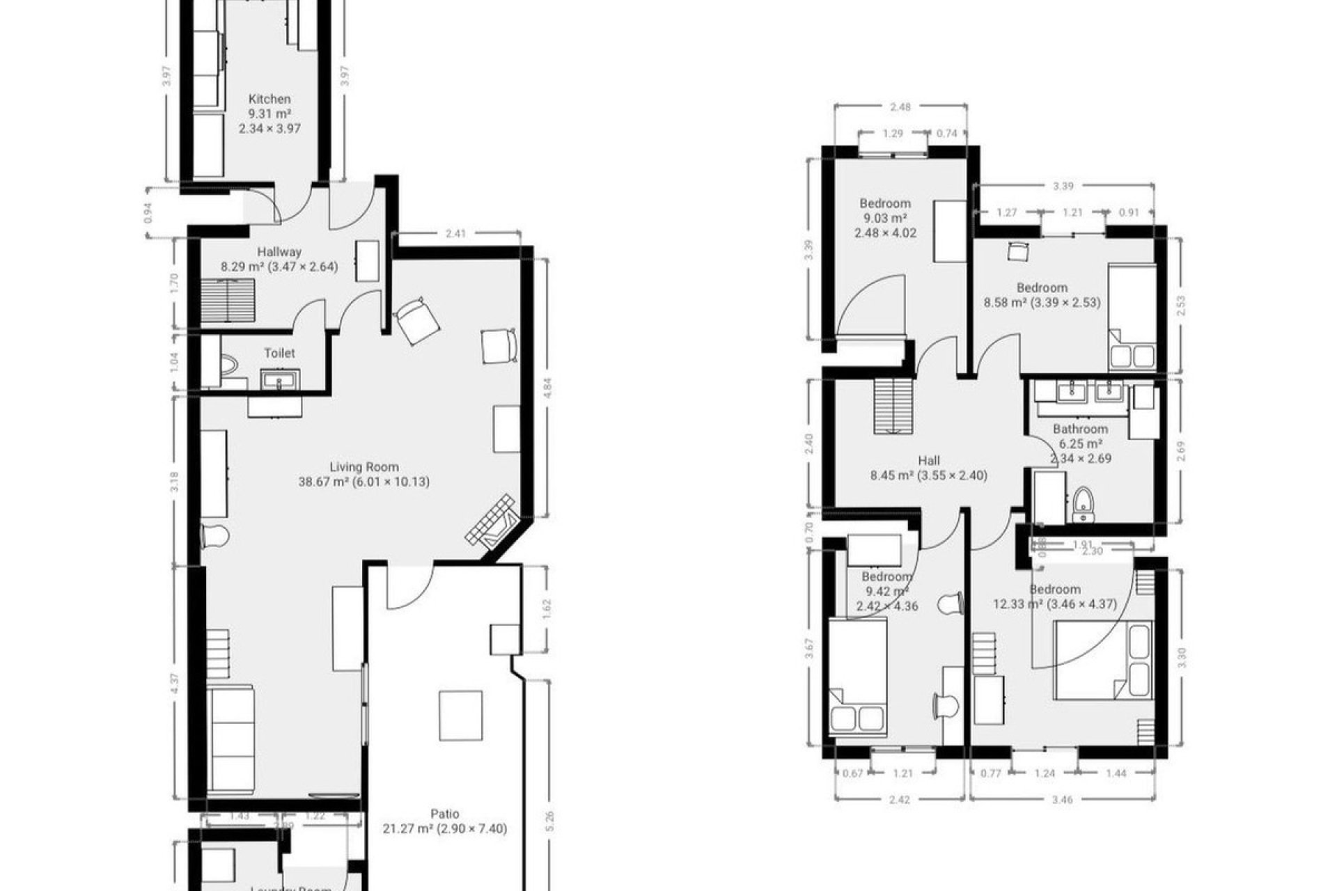
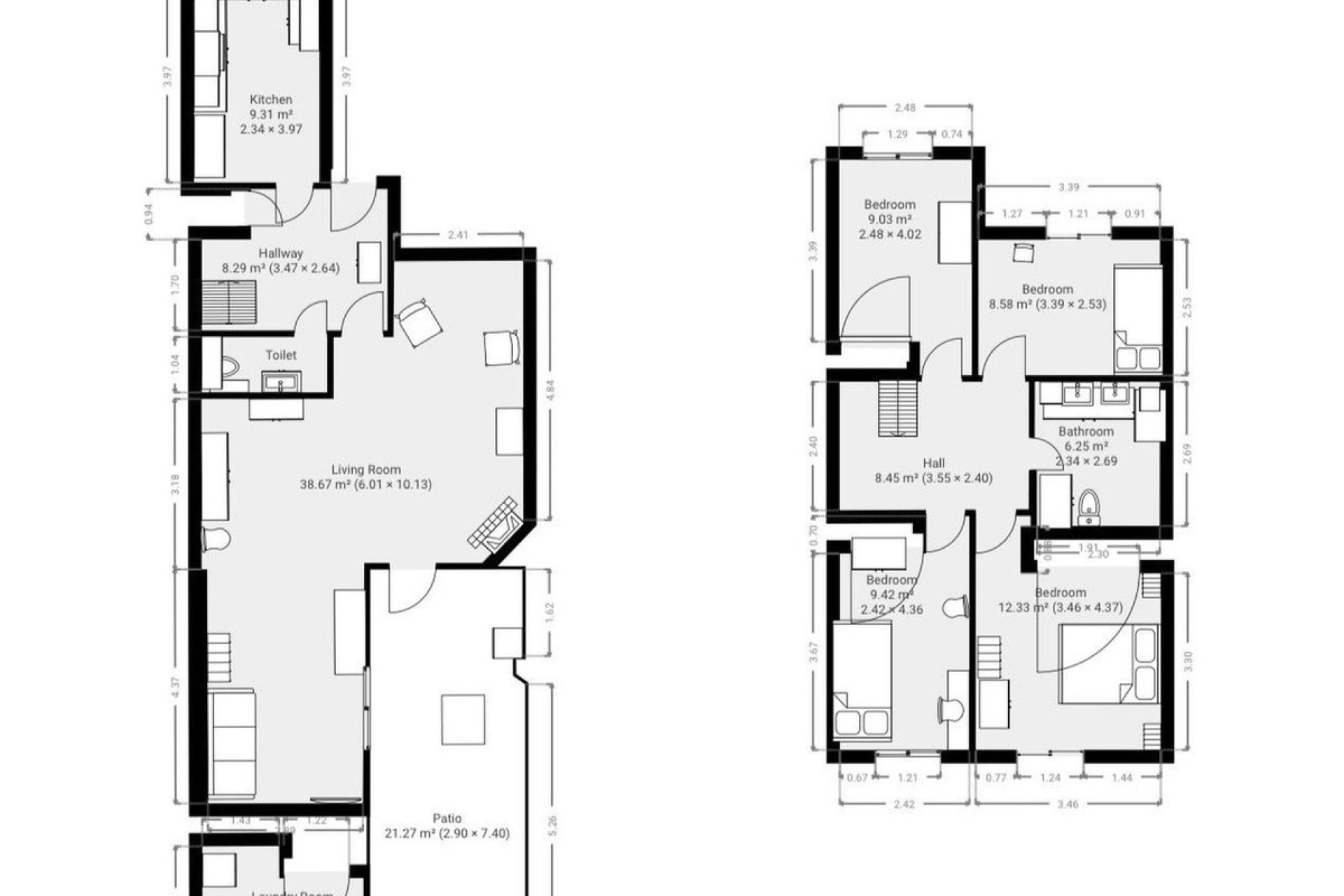
Die Immobilie verfügt über 4 gut geschnittene Schlafzimmer mit Einbauschränken. Zwei Schlafzimmer haben charmante französische Balkone mit schönem Blick auf die Landschaft, während das Hauptschlafzimmer von einer großen privaten Terrasse profitiert, ideal zum Entspannen und Sonnen genießen.
Im Herzen des Hauses befindet sich ein heller und großzügiger Wohn- und Essbereich mit Kamin und Klimaanlage, ideal sowohl für den Alltag als auch zum Empfangen von Gästen. Dieser Bereich führt direkt auf einen privaten Innenhof mit separatem Hauswirtschaftsraum.
Eine gut dimensionierte, voll ausgestattete Küche bietet reichlich Stauraum und Arbeitsfläche, während ein großzügiges Familienbad und ein praktisches Gäste-WC die Funktionalität des Hauses erhöhen. Außen verfügt die Immobilie zudem über einen privaten Stellplatz auf der Auffahrt.
Dies ist eine hervorragende Gelegenheit, ein geräumiges Zuhause in einer begehrten Lage zu erwerben.
Bitte beachten Sie, dass einige Bilder mithilfe von KI digital bearbeitet wurden, um das mögliche Erscheinungsbild der Immobilie zu veranschaulichen.