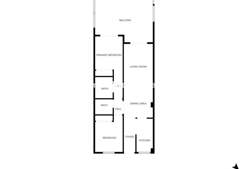
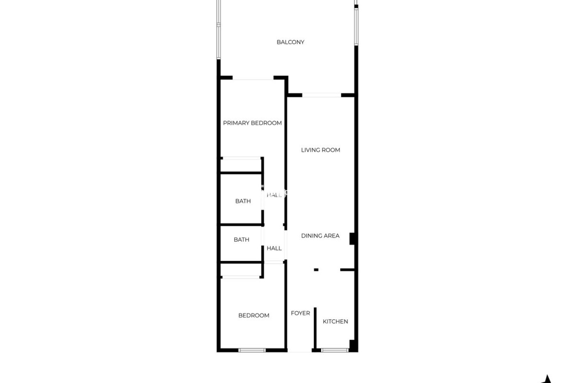
In der begehrten Gegend von Los Pacos gelegen, bietet dieses nach Südwesten ausgerichtete Penthouse einen wunderschönen Meerblick und eine hervorragende Gelegenheit, eine Immobilie in einer der gefragtesten Gegenden der Costa del Sol zu erwerben. Die Wohnung verfügt über zwei Schlafzimmer und zwei Badezimmer sowie komfortable Wohnbereiche, die dank der hervorragenden Ausrichtung den ganzen Tag über viel natürliches Licht erhalten.
Von der Terrasse aus genießen Sie einen herrlichen Meerblick, während die unschlagbare Nähe zu Restaurants wie Bienfrito, indischen Restaurants und Cafés, Lebensmittelgeschäften wie Covirán und weiteren alltäglichen Annehmlichkeiten den Alltag besonders bequem macht. Außerdem können Sie einen Spaziergang zum Mirador de La Cantera Alto unternehmen und dort den schönen Blick über Fuengirola genießen. Die Kombination aus Meerblick und fußläufiger Entfernung zu allen wichtigen Einrichtungen ist ein großer Vorteil und steigert den langfristigen Wert der Immobilie erheblich.
Die Wohnanlage ist gut gepflegt und befindet sich in gutem Zustand und bietet den Bewohnern einen angenehmen Gemeinschaftspool. Im Preis ist zudem ein privater Parkplatz enthalten, mit der Möglichkeit, bei Bedarf einen zweiten Parkplatz zu erwerben.
Eine seltene Gelegenheit, sich ein Penthouse in erstklassiger Lage in Fuengirola zu sichern, das Aussicht, Komfort und einen starken Investitionswert in einer der lebendigsten Küstenstädte der Costa del Sol vereint.
Dieses Penthouse wird vollständig möbliert verkauft. Kurzzeitvermietung ist in dieser Wohnanlage nicht erlaubt.