Villa mit fantastischem Blick über die Salzseen von Torrevieja Herzlich willkommen in dieser gut geplanten Villa in Torreta, etwas außerhalb des Zentrums von Torrevieja und in der Nähe des Mittelmeers und schöner Strände wie Playa del Acequión, Playa de Los Naufragos und Playa Torrevieja. Die geräumige Villa verfügt über sechs Schlafzimmer, fünf Badezimmer, Wohnzimmer und Küche. Außerdem gibt es eine sonnige Dachterrasse und ein großzügiges Grundstück. Auf dem Grundstück ist Platz für den Bau eines Pools, Lizenz und Genehmigung erforderlich.
Die Flächen in der Villa wirken großzügig und hell eingerichtet, es herrscht stets angenehmes Licht und es bietet sich ein fantastischer Ausblick auf die Salzseen von Torrevieja (Lago Rosa de Torrevieja).
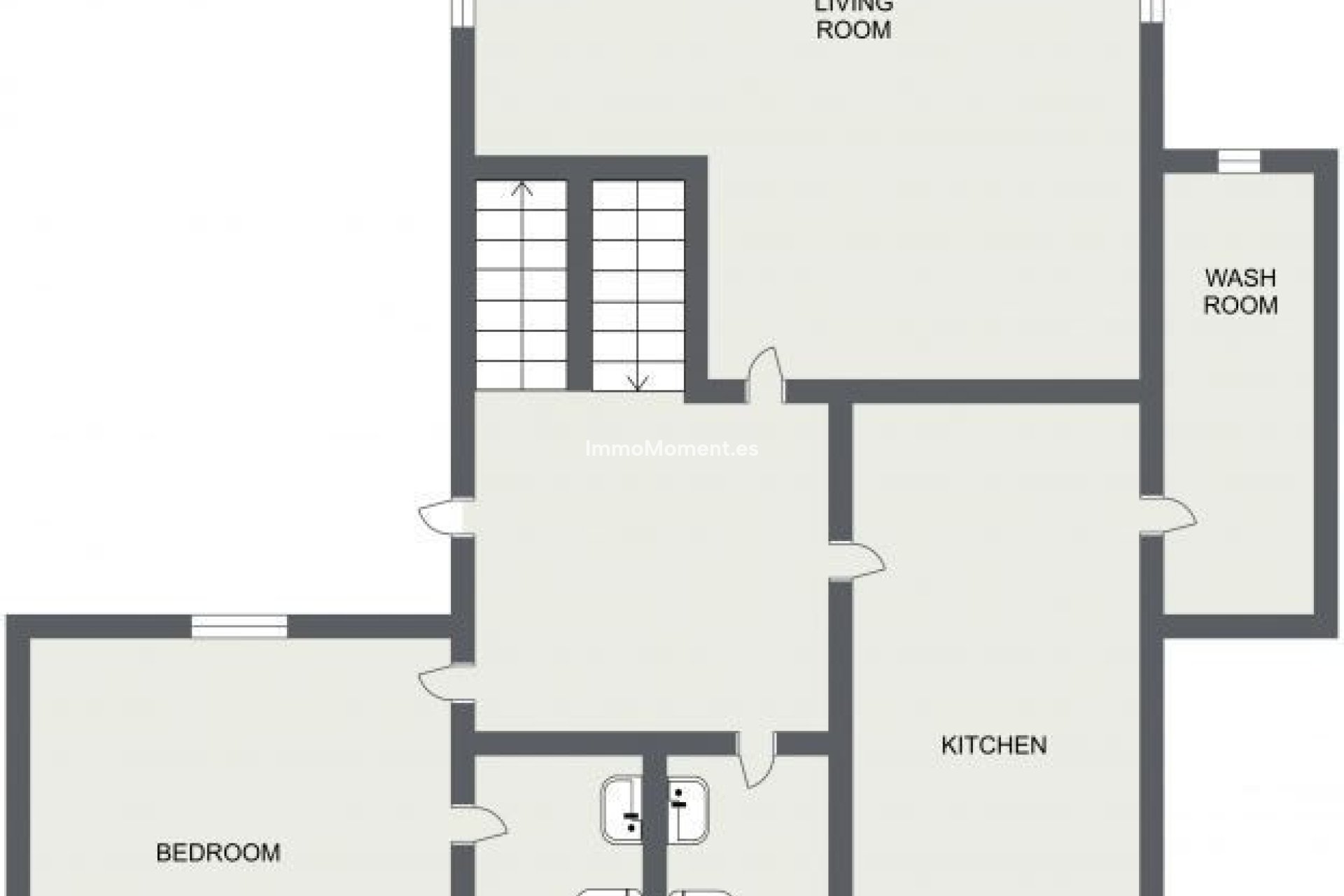
Wohnzimmer mit Platz für eine Sitzecke und einen Essbereich.
Gut proportionierte Küche mit guten Lagermöglichkeiten und Arbeitsflächen, außerdem gibt es Platz für einen Esstisch und Stühle.
Schlafzimmer mit angenehmen Lichtverhältnissen und ruhiger Lage, in den Schlafzimmern ist Platz für Betten und Nachttische.
Fünf Badezimmer, zwei davon mit großen Whirlpool-Badewannen.
Hier wohnen Sie in der Nähe des Einkaufszentrums Habaneras und des Lebensmittelgeschäfts Carrefour und etwa acht Autominuten vom Zentrum von Torrevieja entfernt. Für diejenigen, die gerne Golf spielen, gibt es mehrere Golfplätze in der Nähe, darunter La Marquesa Golf, La Finca Golf und Villamartin Golf. Für Padel-Interessierte gibt es viele beliebte Padel-Plätze.
Gerne können Sie uns für weitere Informationen kontaktieren oder eine Besichtigung buchen. Selbstverständlich führen wir auch digitale Vorführungen durch, wenn Sie nicht vor Ort sein können.