Einzigartige Strandvilla in erster Reihe in La Perla de la Bahía, Casares
Diese außergewöhnliche, halb freistehende Villa ist ein seltenes Juwel in der prestigeträchtigen Strandwohnanlage La Perla de la Bahía, direkt neben dem exklusiven Finca Cortesin Beach Club gelegen. Als eine von nur drei Villen in der gesamten Anlage – die übrigen Einheiten sind Apartments – bietet dieses Haus das einzigartige Gefühl einer privaten Villa mit direktem Zugang zum Strand und zur Promenade, wo stilvolle Strandrestaurants nur einen kurzen Spaziergang entfernt sind.
Die Villa verfügt über einen eigenen, umlaufenden Garten von fast 300 m² mit privatem Swimmingpool und vereint Privatsphäre und Exklusivität mit den Vorteilen einer gesicherten Wohnanlage, die zudem einen wunderschönen Gemeinschaftspool bietet.
Die Villa erstreckt sich über drei Ebenen:
Erdgeschoss: Eleganter Eingangsbereich, großzügige Familienküche, helles Wohnzimmer mit Zugang zu einer überdachten Terrasse für ganzjähriges Wohnen im Freien sowie ein Gästeschlafzimmer mit Bad en Suite.
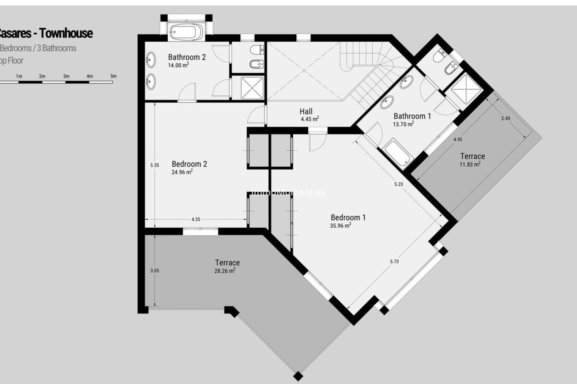
Obergeschoss: Eine herrliche Master-Suite und ein weiteres Gästeschlafzimmer, beide mit Zugang zu einer großen Terrasse mit atemberaubendem Meerblick.
Untergeschoss: Zwei vielseitig nutzbare Räume, ein großer Hauswirtschaftsbereich (mit Potenzial für ein weiteres Badezimmer) und eine private Garage mit Platz für mindestens drei Autos.
Das Anwesen ist im charakteristischen, farbenfrohen und rustikalen andalusischen Stil gehalten, für den La Perla de la Bahía bekannt ist, und verfügt über hochwertige Materialien, einschließlich Fußbodenheizung im Erdgeschoss und in allen Bädern, was ganzjährigen Komfort garantiert.
Diese Villa stellt eine seltene Investitionsmöglichkeit dar – Strandhäuser in erster Reihe mit dieser Größe und Privatsphäre sind in dieser Preisklasse kaum verfügbar. Sie vereint den Charme und die Unabhängigkeit einer privaten Villa mit der Sicherheit und den Annehmlichkeiten einer exklusiven, geschlossenen Wohnanlage und ist somit die perfekte Wahl für alle, die eine erstklassige Strandresidenz an der Costa del Sol suchen.