Diese wunderschön renovierte 3-Zimmer-Wohnung zum Verkauf im Eagles Village, La Quinta, bietet eine perfekte Kombination aus modernem Komfort und natürlicher Umgebung im äußerst gefragten Gebiet von Benahavís. Die Immobilie befindet sich in idealer Lage nahe dem renommierten Golfplatz La Quinta. Eagles Village ist bekannt für sein ruhiges und gepflegtes Umfeld, das den Bewohnern Privatsphäre bietet und gleichzeitig nur eine kurze Autofahrt von Golfplätzen, Annehmlichkeiten und einigen der besten Restaurants an der Costa del Sol entfernt ist.
Die Bewohner von Eagles Village in La Quinta können einen Gemeinschaftspool sowie ein separates Kinderbecken genießen, was die Wohnanlage sowohl für Familien als auch für den Urlaubsaufenthalt ideal macht.
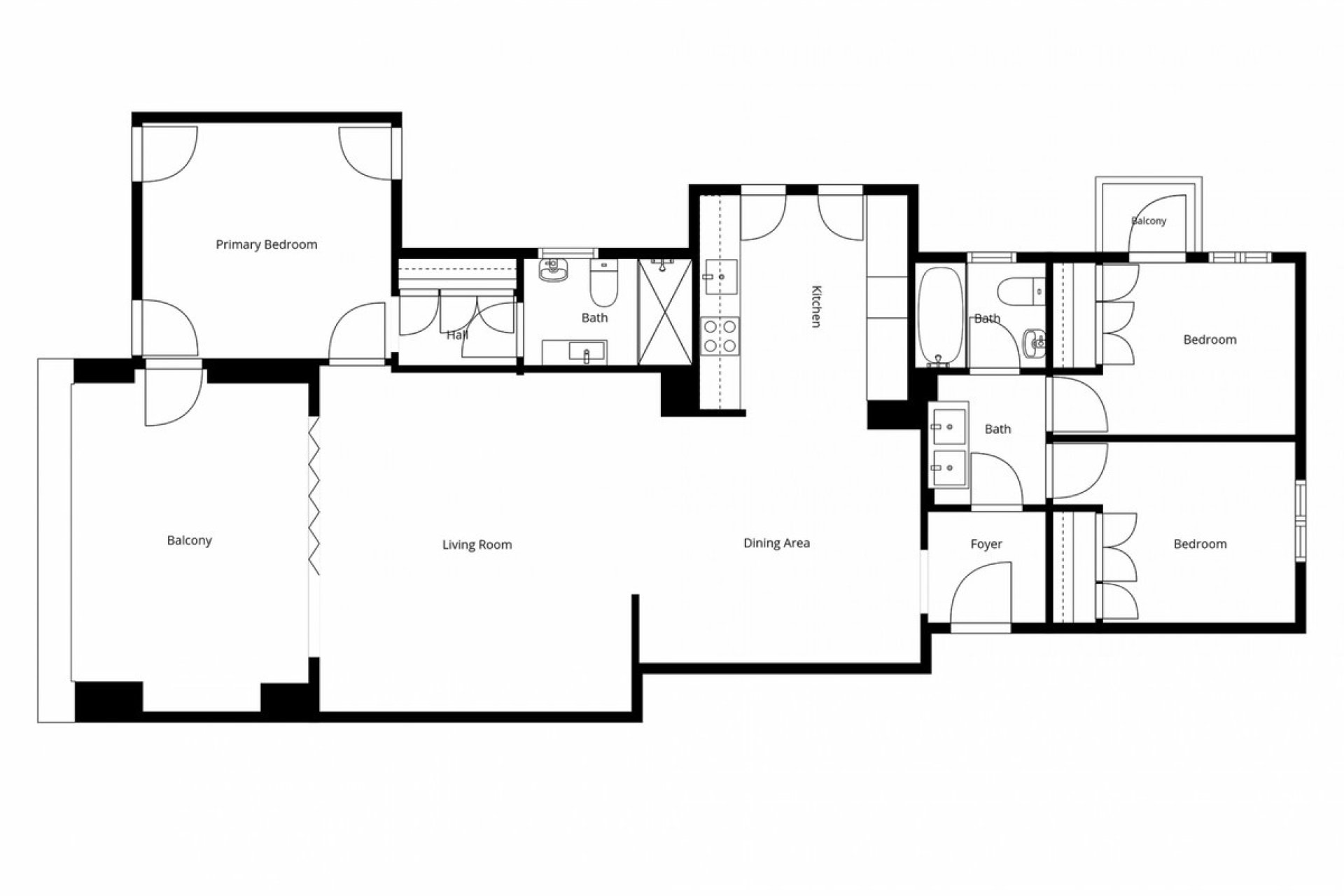
Die Wohnung verfügt über einen hellen, offenen Grundriss, in dem der Ess- und Wohnbereich harmonisch miteinander verbunden sind und so eine großzügige und einladende Atmosphäre schaffen – perfekt für den Alltag und das Unterhalten von Gästen. Große Schiebetüren führen auf eine überdachte Terrasse, von der aus Sie einen wunderschönen Blick auf den Golfplatz La Quinta, die umliegenden Berge und einen teilweisen Meerblick genießen können – der perfekte Ort zum Entspannen das ganze Jahr über.
Die offene Küche ist durchdacht gestaltet, mit Fenstern, die viel Tageslicht hereinlassen und beim Kochen einen friedlichen Blick auf die Berge bieten.
Das Hauptschlafzimmer ist großzügig geschnitten und verfügt über einen direkten Zugang zur Terrasse sowie ein stilvolles Badezimmer en suite. Zwei weitere Gästezimmer teilen sich ein modernes Badezimmer, was die Wohnung ideal für Familien oder Gäste macht.
Im Preis inbegriffen ist ein Carport-Stellplatz an der Straße, der diese attraktive Immobilie noch komfortabler und wertvoller macht.
Diese Immobilie stellt eine ausgezeichnete Gelegenheit dar, eine renovierte Wohnung im Eagles Village, La Quinta, zu erwerben – mit zeitgemäßem Design, herrlicher Aussicht und in unmittelbarer Nähe zum Golfplatz La Quinta, einer der begehrtesten Gegenden in Benahavís.