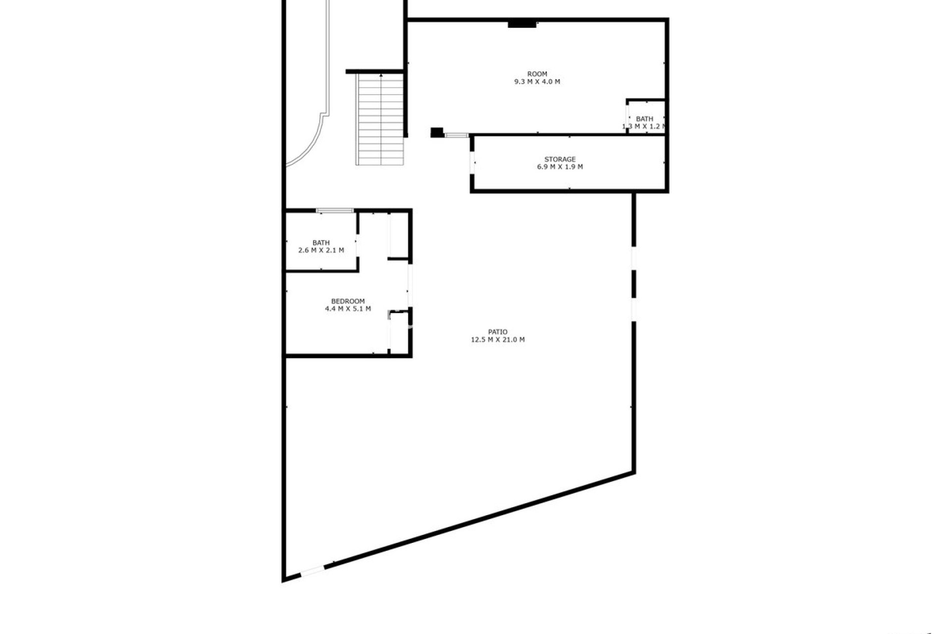
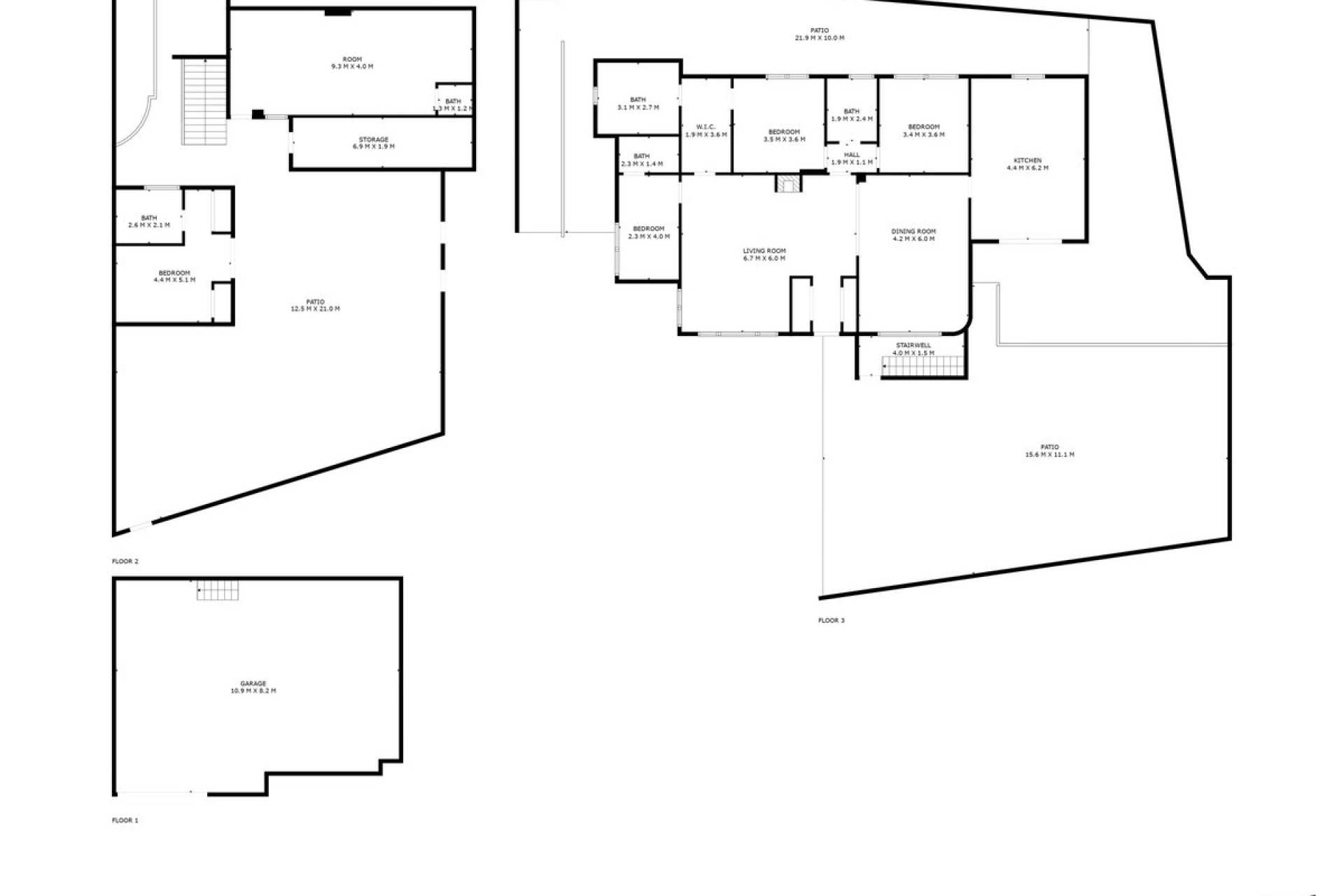
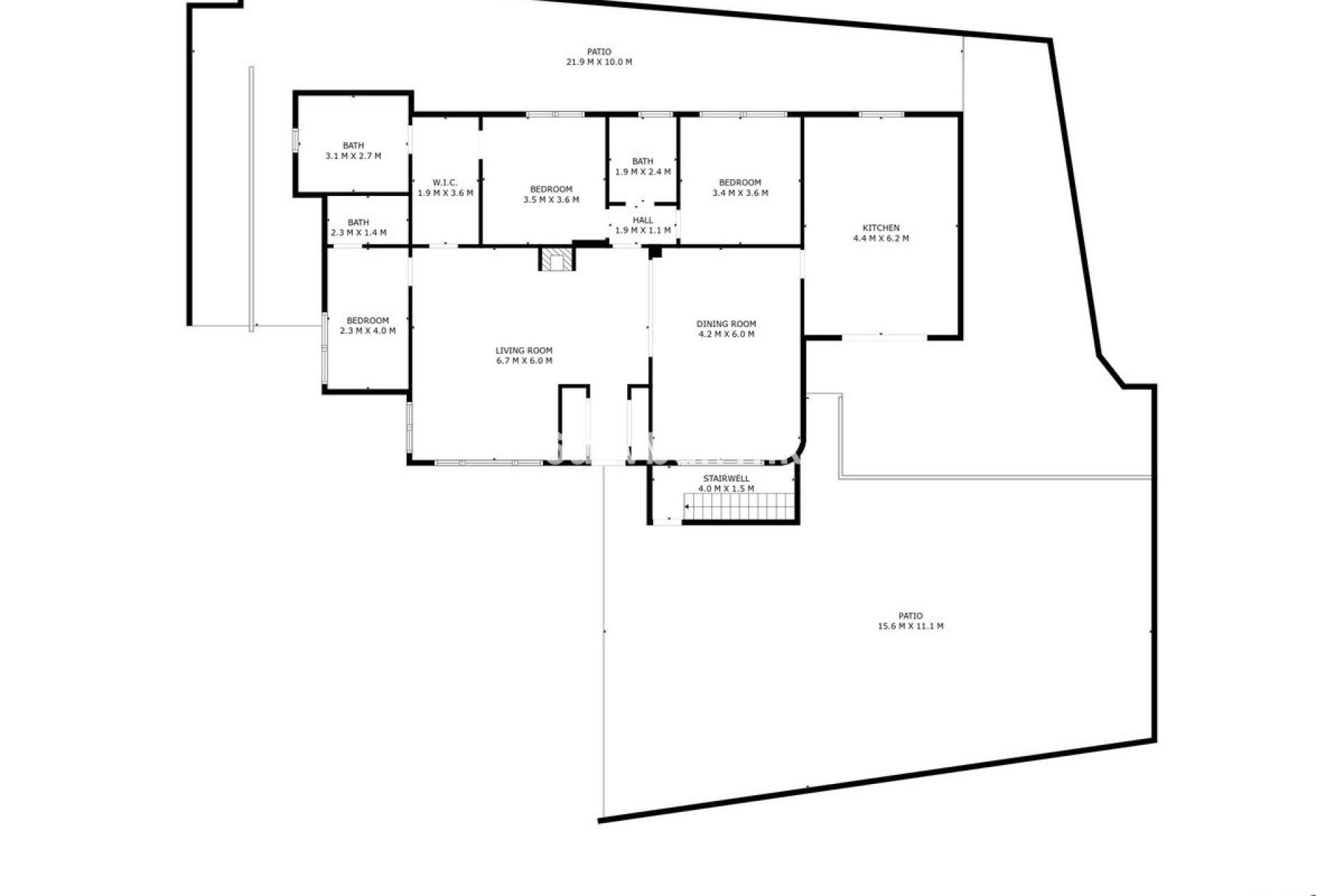
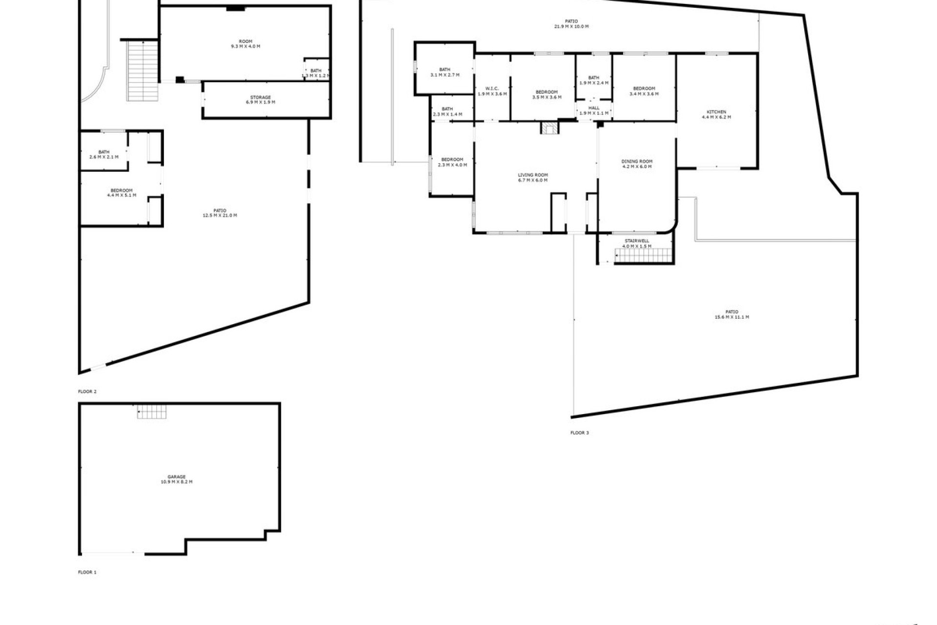
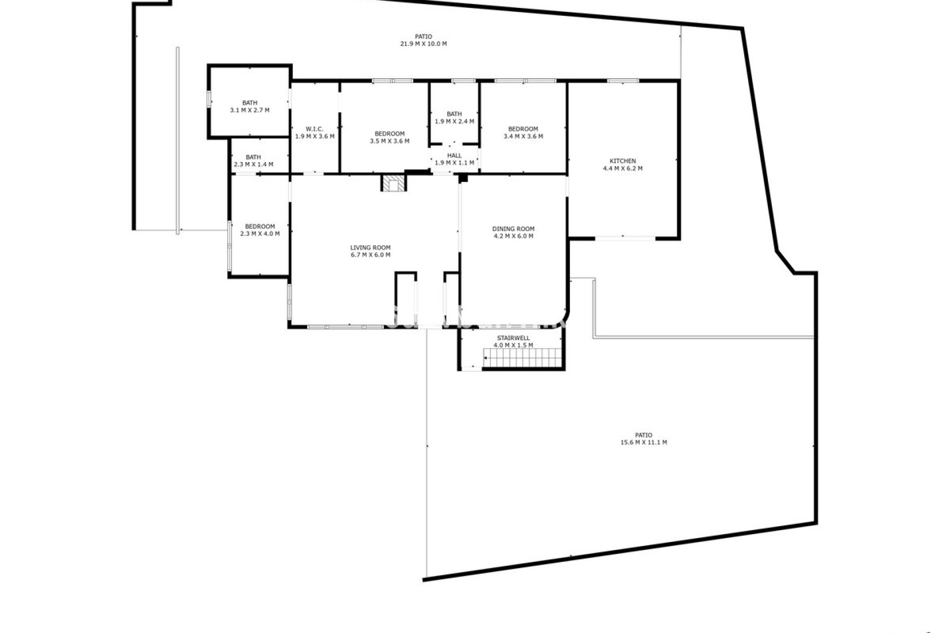
In Capellanía, einer ruhigen und sehr gut angebundenen Gegend von Benalmádena, bietet diese Immobilie ein Grundstück von 658 m² und eine bebaute Fläche von 168 m².
Im Haupthaus befinden sich 3 Schlafzimmer, jeweils mit eigenem voll ausgestatteten Badezimmer. Die Hauptsuite mit ihrem großzügigen begehbaren Kleiderschrank ist das absolute Highlight.
Außerdem verfügt das Haus über eine große, voll ausgestattete Küche und ein Wohn-Esszimmer mit viel natürlichem Lichteinfall.
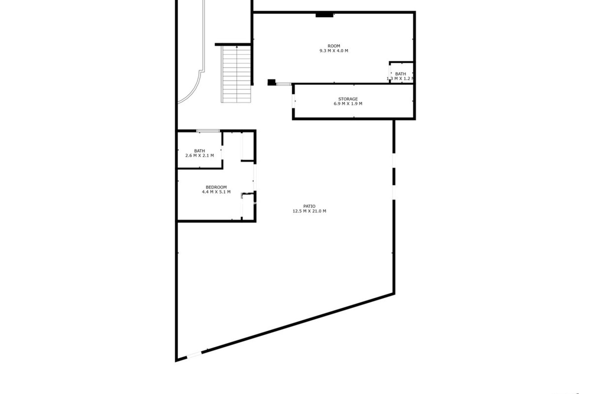
Das separate Gästehaus (1 Schlafzimmer + 1 Badezimmer) bietet zusätzliche Flexibilität und vielfältige Nutzungsmöglichkeiten.
Im Außenbereich erwartet Sie ein erhöhtes Holzschwimmbecken – ideal für den Sommer und pflegeleicht – sowie ein privater Parkplatz mit Platz für mehrere Fahrzeuge.
Ausstattung: PVC-Fenster mit Doppelverglasung, Klimaanlage in beiden Häusern, Solarpaneele mit Speicher im Haupthaus und ein 100-Liter-Elektroboiler im Gästehaus.
Sehr gute Lage, nur wenige Minuten von der Autobahn entfernt und in der Nähe der Strandpromenade.
Einer der großen Mehrwerte dieser Immobilie ist, dass die Eigentümergemeinschaft in der Versammlung die Möglichkeit genehmigt hat, eine Ferienvermietungslizenz zu beantragen und zu erhalten. Dadurch eröffnet sich sowohl für die Eigennutzung als auch für Investitionszwecke eine hervorragende Gelegenheit. Das bedeutet, dass die Immobilie unter Einhaltung der geltenden Vorschriften und nach Durchführung der entsprechenden Verwaltungsverfahren für die touristische Vermietung genutzt werden kann und somit ein attraktives Renditepotenzial in einer stark nachgefragten Lage bietet.
Kontaktieren Sie mich, und wir vereinbaren einen Besichtigungstermin!