Starke Preissenkung! Wir präsentieren Ihnen unser neues exklusives Angebot: eine moderne Luxusvilla in der begehrten Lage von Seghers in Estepona. Dieses beeindruckende Anwesen, erbaut mit hochwertigsten Materialien, ist der ideale Rückzugsort für alle, die einen gehobenen Lebensstil an der Küste suchen.
Genießen Sie von jedem Winkel dieser spektakulären Villa aus den Panoramablick auf das Mittelmeer, die afrikanische Küste und Gibraltar. Mit fünf Schlafzimmern, vier Badezimmern und einem Gäste-WC bietet das Haus großzügigen und eleganten Wohnraum. Zwei der Schlafzimmer verfügen über ein eigenes Bad und einen privaten Ankleideraum – eine Oase der Ruhe und Privatsphäre. Alle Zimmer öffnen sich zur Terrasse, durchfluten die Räume mit Tageslicht und bieten einen atemberaubenden Blick auf Garten, Meer und Berge. Die Schlafzimmer sind mit elektrischen Jalousien und die Badezimmer mit Fußbodenheizung ausgestattet.
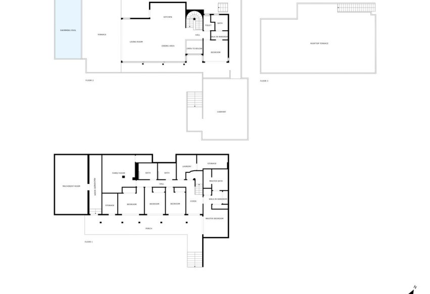
Die Villa erstreckt sich über zwei Etagen plus ein Solarium, die funktional und harmonisch miteinander verbunden sind. Sie ist sowohl vom Erdgeschoss als auch vom ersten Stock aus zugänglich. Im Erdgeschoss befinden sich vier gemütliche Schlafzimmer, drei Badezimmer, ein Fernsehzimmer, eine Waschküche und ein praktischer Abstellraum. Eines der Schlafzimmer verfügt über ein eigenes Bad und einen geräumigen begehbaren Kleiderschrank.
Im ersten Stock erwartet Sie ein großzügiger und heller Wohn- und Essbereich, der fließend in eine offene Küche übergeht. Diese wurde von Decodan Studios entworfen und ist mit Miele-Geräten ausgestattet. Der Raum eignet sich perfekt für den Alltag und zum Bewirten von Gästen und bietet Zugang zur Terrasse und zum Chill-out-Bereich. Draußen lädt ein beheizter Infinity-Pool mit Gegenstromanlage zum Entspannen und Trainieren in der Sonne ein. Ebenfalls auf dieser Etage befindet sich ein weiteres Schlafzimmer mit eigenem Bad und Ankleidebereich sowie ein zusätzliches Gäste-WC. Das über eine Außentreppe erreichbare Solarium bietet einen privaten Rückzugsort mit unvergleichlichem Ausblick – ideal zum Entspannen oder um unvergessliche Sonnenuntergänge zu genießen. Die Gestaltung ermöglicht den Einbau eines Whirlpools oder einer Außenküche und erweitert so Ihr Outdoor-Erlebnis.
Die Villa ist von einem pflegeleichten Garten mit automatischer Bewässerungsanlage umgeben, der eine friedliche, grüne Oase schafft. Vom Garten über den Pool bis zur Dachterrasse lädt jeder Winkel zum Verweilen im Freien ein. Zu den weiteren Annehmlichkeiten gehören ein privater Parkplatz mit automatischem Tor und zusätzliche Abstellräume für Fahrräder und Ausrüstung.
Die Villa liegt in einer ruhigen, sicheren Wohngegend, nur fünf Gehminuten vom Strand und der Promenade entfernt. Auch der Yachthafen von Estepona und die Altstadt sind bequem zu Fuß erreichbar. Dank der nahegelegenen Schulen, Restaurants, Supermärkte, Fitnessstudios sowie Padel-, Tennis- und Golfplätze ist die Gegend ideal zum dauerhaften Wohnen oder für Ferienaufenthalte.
Lassen Sie sich diese Gelegenheit nicht entgehen – vereinbaren Sie noch heute einen Besichtigungstermin und machen Sie dieses einzigartige mediterrane Juwel zu Ihrem neuen Zuhause.