Este impresionante chalet independiente de 4 dormitorios y 4 baños se encuentra en una urbanización tranquila y popular a solo 5 minutos de Coín y a menos de 30 minutos de las playas de La Cala de Mijas y Marbella. Esta casa ofrece espacio, comodidad y una ubicación privilegiada.
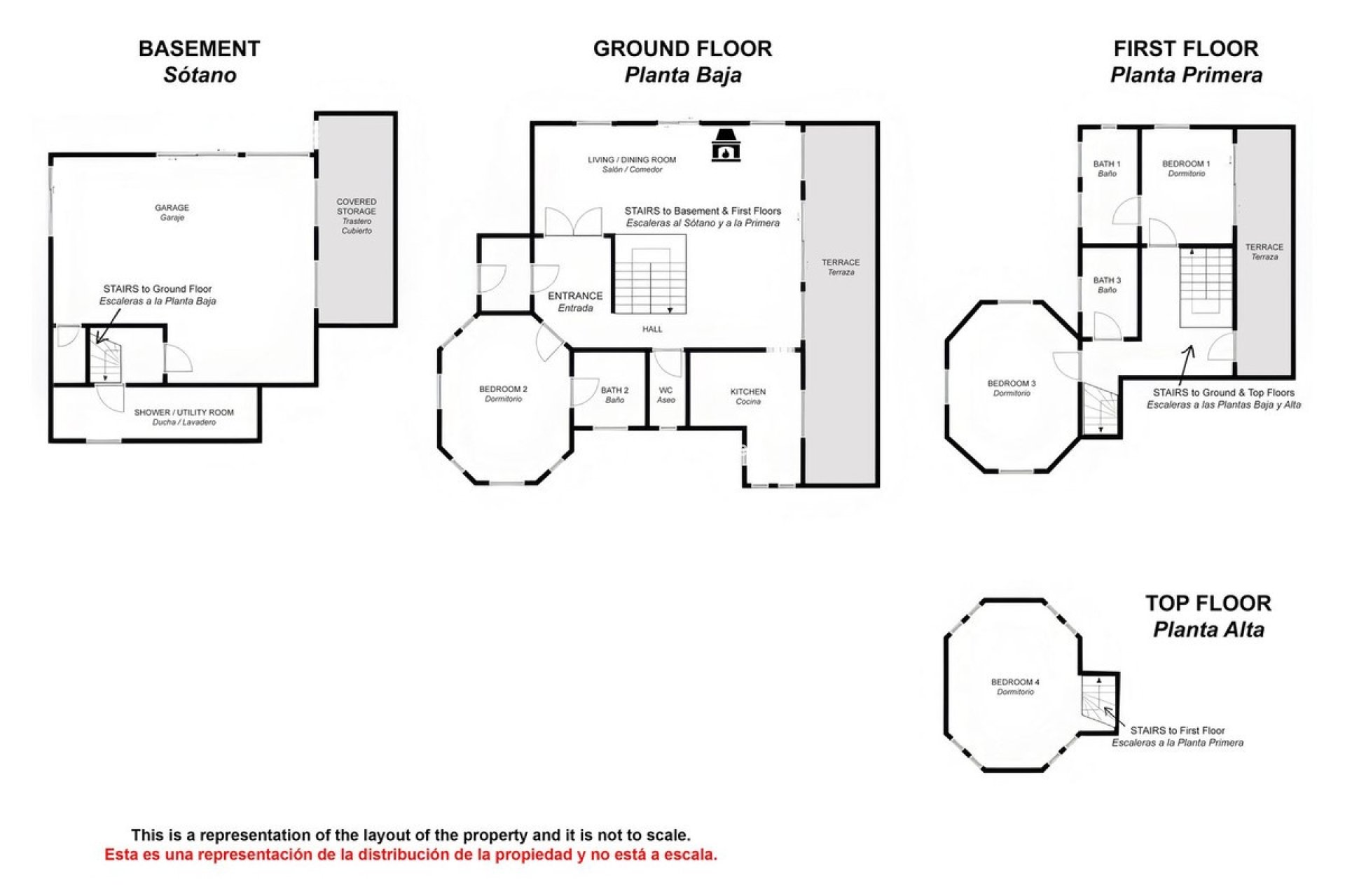
Construido sobre tres plantas, la propiedad ofrece opciones de vida flexibles, con la planta baja que alberga un garaje, un trastero y un cuarto de baño con ducha que podría convertirse fácilmente en un apartamento independiente para invitados, familiares o para obtener ingresos por alquiler.
La planta principal es luminosa y acogedora, con un amplio salón-comedor con una acogedora chimenea. Desde aquí, las puertas dan directamente a una fabulosa terraza con vistas a la piscina y los jardines, un entorno ideal para cenar al aire libre o simplemente relajarse al sol. La cocina moderna, totalmente equipada, es elegante y práctica, y esta planta también incluye un aseo para invitados y un cómodo dormitorio con su propio cuarto de baño, perfecto para visitantes o familiares que prefieren vivir en una sola planta.
En la planta superior, la generosa suite principal cuenta con un balcón privado con impresionantes vistas abiertas, además de su propio cuarto de baño. Otro dormitorio doble y un elegante cuarto de baño familiar completan esta planta. La planta superior alberga el cuarto dormitorio, que ofrece una sensación de privacidad y unas impresionantes vistas panorámicas de los alrededores.
El espacio exterior es tan atractivo como el interior. El jardín, muy bien cuidado, cuenta con varias zonas de descanso donde se puede disfrutar del sol durante todo el día, mientras que la piscina privada y las terrazas circundantes son el lugar perfecto para refrescarse y recibir a amigos y familiares.