**Apartamento con vista al mar en Costafiore Gardens - Una Joya Mediterránea**
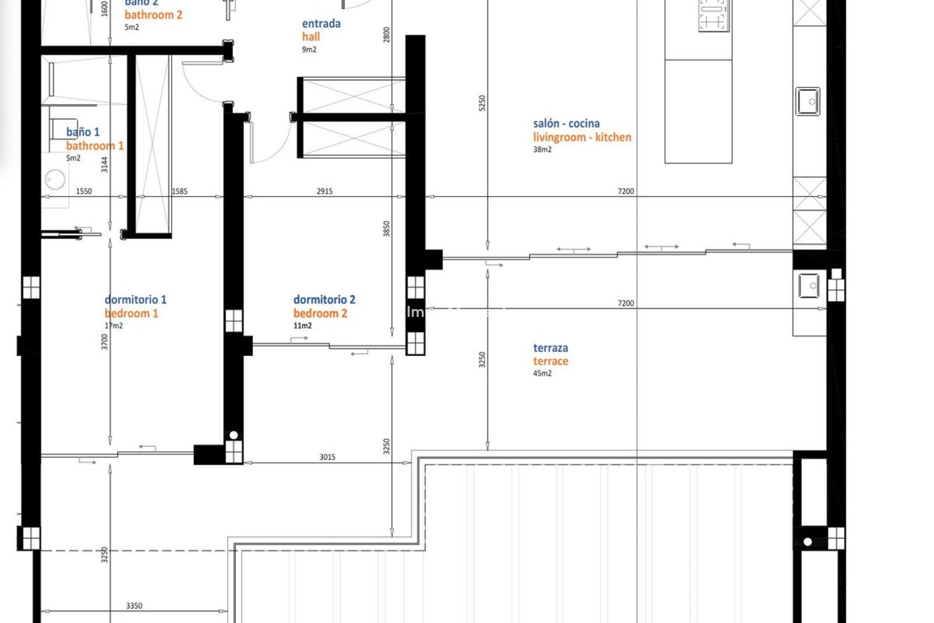
Descubre el lujo de vivir en la prestigiosa urbanización Costafiore Gardens, donde la modernidad se encuentra con el estilo de vida mediterráneo. Este espectacular apartamento de 144 m², ubicado en una promoción boutique de solo 35 apartamentos, ofrece un diseño nórdico que maximiza la luz natural y el confort. Con 2 amplios dormitorios y 2 baños, cada rincón está pensado para tu bienestar. Amplios espacios, una cocina abierta de un tamaño majestuoso. Amplios armarios empotrados, y una terraza con unas espectaculares vistas y equipada para instalar una cocina exterior con barbacoa. Todo un lujo!
Disfruta de una amplia terraza con vistas al mar, perfecta para relajarte o compartir momentos inolvidables con amigos y familiares. La comunidad cuenta con jardines tipo parque, piscinas y áreas verdes rodeadas de palmeras, creando un ambiente idílico para el ocio y la tranquilidad. Además, tendrás acceso a un gimnasio y sauna dentro del complejo, ideal para mantenerte activo y relajado.
Las lujosas cocinas Siemens y los armarios empotrados son solo algunas de las características que destacan en este hogar. Con dos plazas de aparcamiento en el garaje subterráneo y trasteros privados, cada detalle ha sido pensado para tu comodidad. A poca distancia de la playa y con exclusivos campos de golf cercanos, la ubicación es inmejorable.
No dejes pasar la oportunidad de vivir en este maravilloso piso en Costafiore Gardens. ¡Contáctanos para más información y ven a verlo!