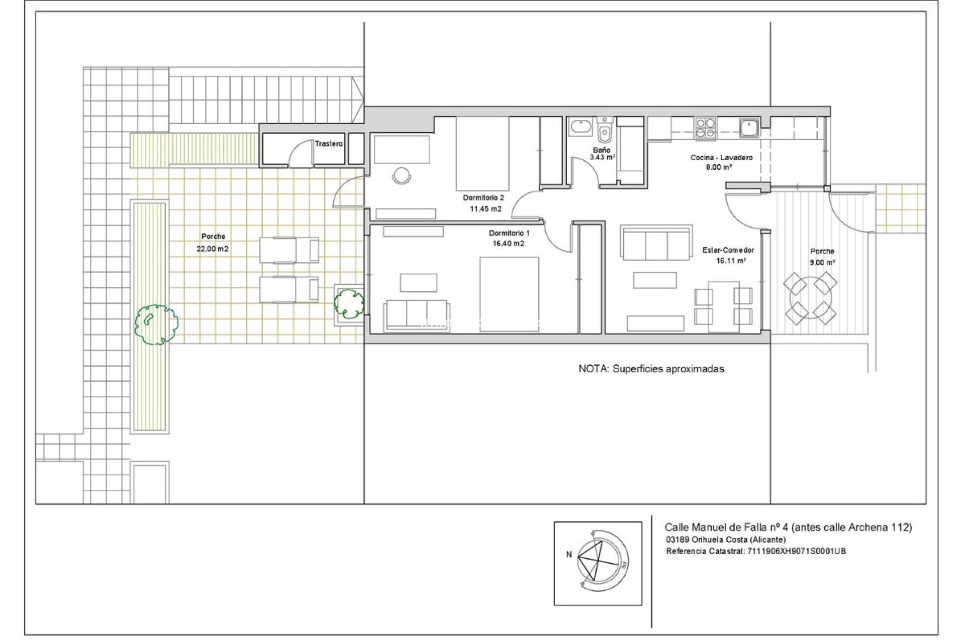
Descubre una vivienda donde la amplitud y el diseño moderno se encuentran en cada rincón. Este bungalow cuenta con dos grandes dormitorios, equipados con armarios empotrados de máxima capacidad, y un baño contemporáneo que incluye plato de ducha. La cocina a estrenar está totalmente equipada y conecta perfectamente con un acogedor porche frontal y una amplia terraza trasera ideal para tus momentos de relax o cenas al aire libre. Los interiores destacan por sus suelos laminados cálidos imitación madera natural, instalaciones completamente nuevas (fontanería y electricidad) además del práctico trastero exterior incluido.~~En cuanto a los exteriores, disfrutarás de un espacio privado equipado con toldo perfecto para leer o tomar café al aire libre; mientras que la gran terraza posterior ofrece versatilidad total para eventos sociales bajo las estrellas rodeado por exuberantes jardines comunitarios meticulosamente cuidados durante todo el año – brindando paz absoluta e intimidad constante.~~Ubicado estratégicamente: A solo minutos caminando encontrarás CC La Rioja (restaurantes), farmacia e incluso supermercados como Dialprix; sin olvidar estar justo frente a prestigiosos campos de golf! En coche llegarás rápidamente a Zenia Boulevard -el centro comercial más grande- así como Vilamartín Plaza lleno servicios médicos extraordinarios junto opciones gastronómicas variadas entre otras maravillas locales dentro del Paraíso Costero - accediendo rapido hacia playas galardonadas tales como La Zenia o Cabo Roig.~~El precio de venta no incluye el impuesto (ITP- tipo vigente según comunidad autónoma)