Ubicada en un entorno tranquilo con preciosas vistas despejadas al pueblo de Alhaurín el Grande, esta acogedora casa de campo en una sola planta ofrece privacidad, comodidad y auténtico encanto andaluz.
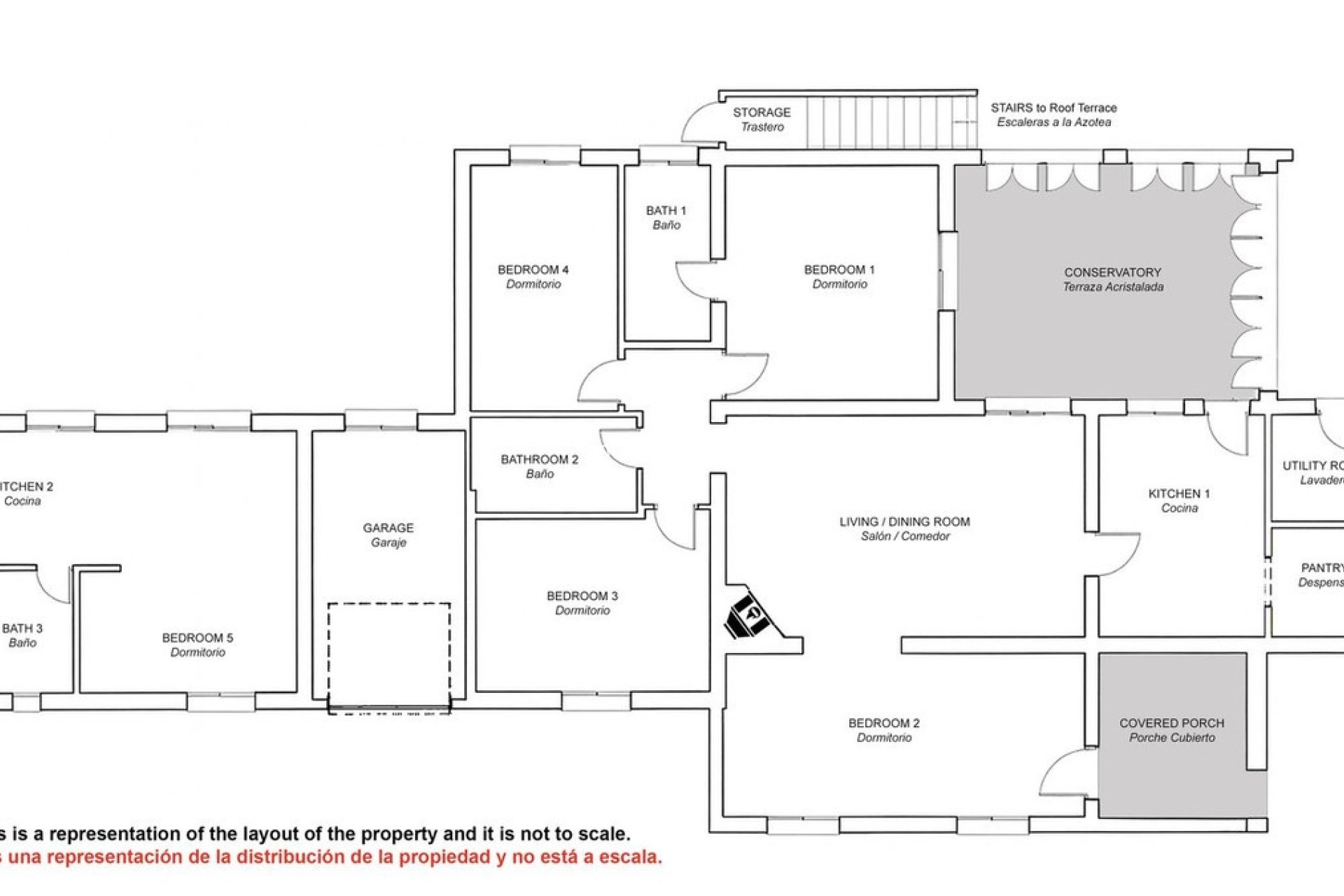
La vivienda principal se distribuye en:
• Cocina totalmente equipada con acceso directo a una amplia terraza
• Despensa independiente
• Luminoso salón
• Comedor con chimenea, ideal para reuniones acogedoras
• 3 dormitorios confortables
• 2 baños completos, uno de ellos en suite en el dormitorio principal
• Lavadero independiente
✨ Un gran valor añadido: la terraza acristalada
La cocina se abre a una espaciosa terraza cerrada tipo veranda que funciona como una estancia adicional. Actualmente utilizada como comedor, puede abrirse completamente en verano, permitiendo su disfrute durante todo el año.
Sus grandes ventanales ofrecen magníficas vistas a la piscina, al jardín y al campo.
???? Apartamento independiente para invitados
La propiedad cuenta además con un pequeño apartamento independiente con kitchenette y baño — perfecto para recibir invitados con total privacidad o como oportunidad de alquiler.
???? Posibilidad de ampliación
En la parte trasera de la vivienda hay un amplio trastero, muy práctico para herramientas de jardín, que podría incorporarse fácilmente a la casa para ampliar la superficie habitable.
Originalmente, la vivienda disponía de 3 dormitorios, salón y comedor separados, por lo que se puede recuperar la distribución original si se desea.
???? Ubicación ideal:
• A 4,5 km del Centro Comercial La Trocha
• A 6 km del centro de Alhaurín el Grande
• Aprox. 1 km de la A355
• 30 minutos del Aeropuerto de Málaga
Una propiedad que combina la tranquilidad del campo con la cercanía a todos los servicios — perfecta como residencia habitual o casa vacacional en el corazón de Andalucía.