Esta luminosa y acogedora casa adosada de 3 dormitorios combina a la perfección el encanto del diseño tradicional andaluz con un estilo moderno y actualizado. Ubicada idealmente cerca de todos los servicios y a solo unos pasos del renombrado Puente Romano, La Milla de Oro, Marbella esta hermosa vivienda ofrece la combinación perfecta de comodidad y estilo.
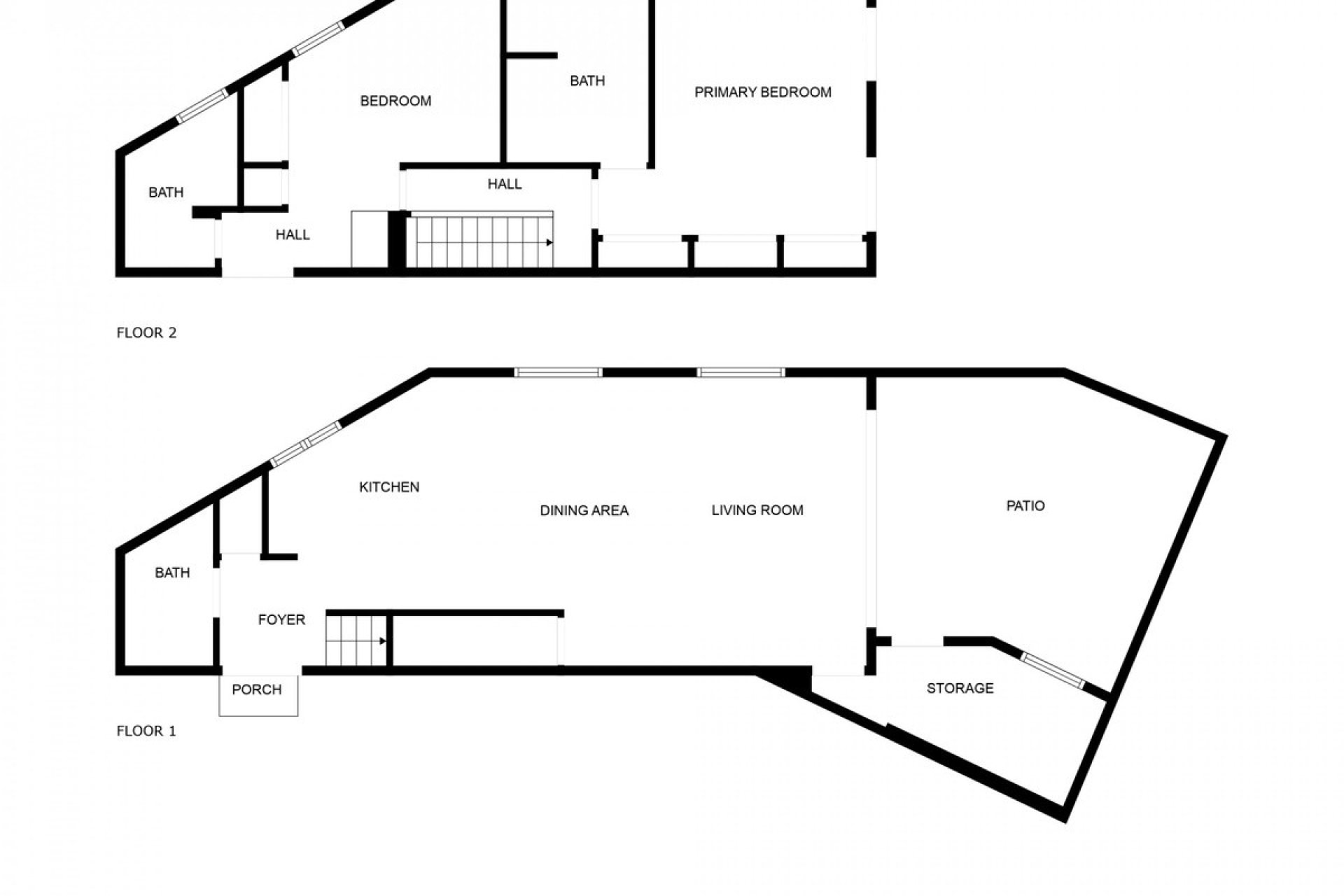
La sala de estar y el comedor de concepto abierto están bañados de luz natural, proporcionando un espacio lujoso pero cómodo para relajarse o entretenerse. Las amplias puertas de vidrio conducen a un patio privado de estilo andaluz, que ofrece un tranquilo refugio para disfrutar al aire libre.
La cocina cuenta con electrodomésticos de alta gama, elegantes encimeras y un diseño contemporáneo, siendo un verdadero paraíso para los amantes de la cocina.
La primera planta conserva sus suelos originales, realzando el carácter y el encanto de la vivienda. La amplia suite principal incluye un encantador balcón tipo Juliet con vistas pintorescas y un baño ensuite elegantemente diseñado. Un segundo dormitorio ensuite ofrece su propia área de estar acogedora, mientras que un tercer dormitorio convertido brinda flexibilidad para usarse como habitación de invitados, espacio de almacenamiento o despacho en casa.
Con una atención meticulosa a cada detalle, esta propiedad es una visita obligada para quienes buscan un hogar que combine estilo atemporal con comodidad moderna.