Apartamento Ultra Prime con Vistas Panorámicas, 285 m² de Terraza y Piscina Privada (Apartamento 5.2.1)
Marbella – Ojén (junto a El Soto Golf Club)
Una oportunidad verdaderamente excepcional en el enclave elevado más exclusivo de Ojén. Esta extraordinaria vivienda en planta media redefine el concepto de vida en apartamento, ofreciendo la escala, privacidad y presencia de un ático o una villa privada.
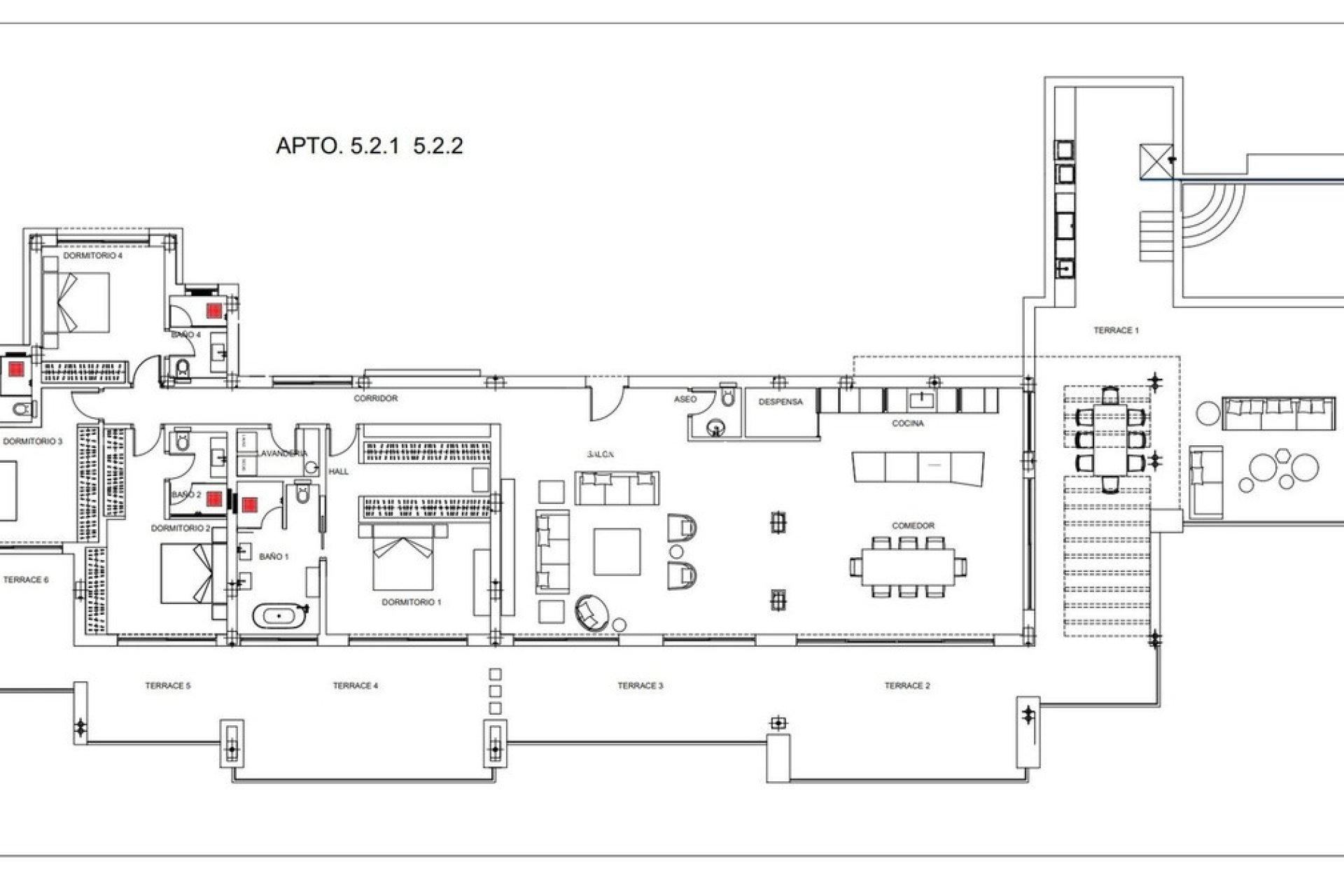
Con unos impresionantes 288 m² de superficie interior y 285 m² de terrazas exteriores, la propiedad alcanza casi 600 m² de espacio total habitable, convirtiéndose en una residencia emblemática diseñada para quienes no aceptan compromisos en cuanto a amplitud, vistas o refinamiento arquitectónico.
Orientada para capturar panorámicas abiertas del Mediterráneo y horizontes infinitos, la vivienda disfruta de una luminosidad extraordinaria y está enmarcada por un entorno natural protegido, generando una sensación de amplitud poco habitual en la Costa del Sol.
Las proporciones interiores son sencillamente excepcionales: amplias, elegantes y cuidadosamente diseñadas para ofrecer grandeza y confort en perfecta armonía. La distribución incluye:
- 4 generosas suites de dormitorio, concebidas para máxima privacidad y comodidad
- 4 baños de lujo terminados con estándares excepcionales
- Un espectacular salón-comedor de concepto abierto con proporciones imponentes
- Cocina de diseño totalmente integrada
- Grandes ventanales correderos de suelo a techo que eliminan la frontera entre interior y exterior
- Alturas de techo extraordinarias que potencian la sensación de volumen
Cada espacio ha sido concebido para maximizar la luz, la fluidez y las vistas panorámicas, creando un ambiente refinado y acogedor, ideal tanto para la vida privada como para el entretenimiento sofisticado.
Pocas residencias ofrecen una huella exterior tan extraordinaria. Los 285 m² de terrazas crean una auténtica finca al aire libre, envolviendo la propiedad en vistas panorámicas al Mediterráneo y cielos abiertos. Aquí se pueden diseñar múltiples ambientes:
- Elegantes zonas de comedor al atardecer
- Amplias áreas lounge y de relax
- Espacios privados de bienestar o chill-out
- Zonas de entretenimiento exterior de escala excepcional
La piscina privada eleva aún más la experiencia, aportando un nivel de exclusividad reservado a las propiedades más selectas del mercado.
Se trata de un estilo de vida exterior a nivel de villa, pero elevado, seguro y completamente privado.
Desarrollada por un prestigioso promotor alemán, la residencia refleja una ingeniería meticulosa, precisión estructural y estándares de construcción sin concesiones. El compromiso con la calidad se percibe en cada detalle arquitectónico y acabado, garantizando durabilidad, excelencia técnica y un nivel de artesanía que supera claramente los referentes tradicionales del lujo.
Integrada en aproximadamente 230 hectáreas de paisaje natural protegido, la comunidad garantiza vistas preservadas, privacidad y exclusividad a largo plazo.
Los residentes disfrutan de:
- Club social privado
- Zonas comunes ajardinadas
- Aparcamiento subterráneo seguro
- Entorno tranquilo y de baja densidad
- Y mucho más!
La propiedad incluye:
- 2 plaza de aparcamiento subterráneo
- 1 trastero privado
Precio: 2.950.000 €