Chalet pareado en esquina en urbanización cerrada con piscina en Nueva Andalucía
Excelente oportunidad para adquirir un magnífico chalet adosado de esquina ubicado en una urbanización cerrada con piscinas comunitarias, en una de las zonas más cotizadas de la Costa del Sol. El complejo cuenta con acceso directo a la carretera principal y está a pocos minutos de Nueva Andalucía, Puerto Banús, playas, campos de golf y todos los servicios.
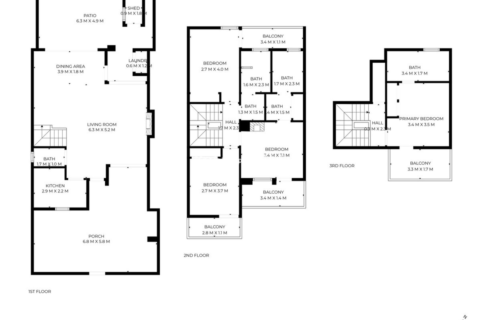
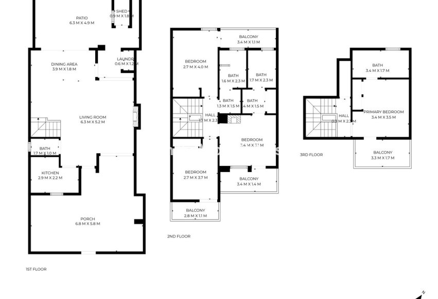
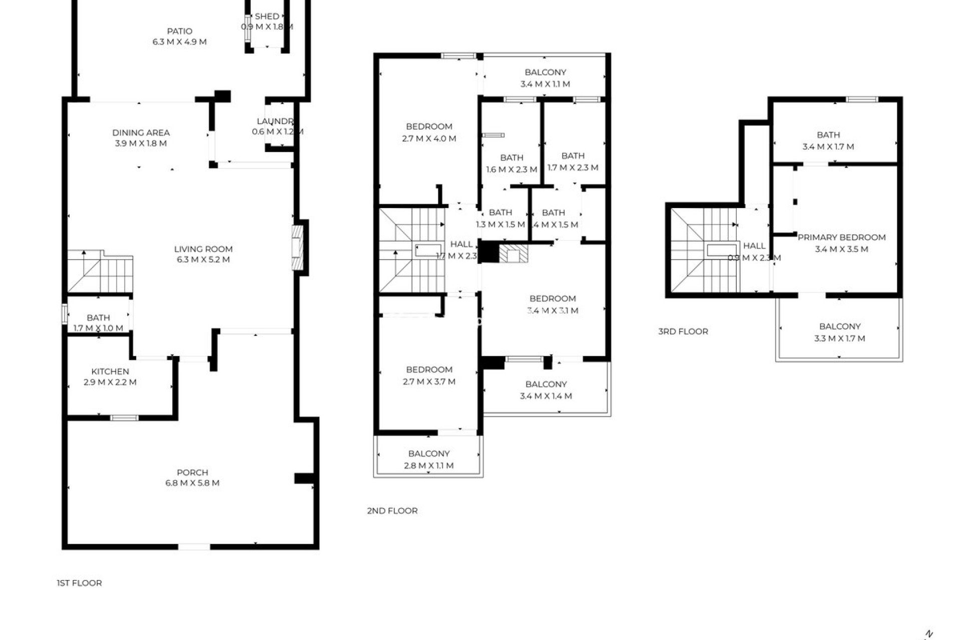
La propiedad, con orientación sudeste, se distribuye en tres plantas: En la planta principal, se accede a través de una amplia terraza delantera de 40 m², ideal como zona de relax. Cuenta con un luminoso salón, aseo de invitados, cocina independiente y acceso a una agradable terraza trasera de 18 m². La primera planta consta de tres dormitorios y dos baños, uno de ellos en suite. Todas las habitaciones tienen acceso a terrazas independientes. La planta superior cuenta con un cuarto dormitorio con terraza y un baño completo.
Todos los dormitorios tienen acceso directo a una terraza, proporcionando abundante luz natural y una excelente conexión interior-exterior. Cuenta con 3 baños completos y un aseo