Ubicada en un apacible entorno rural, con suaves colinas y amplias vistas sobre el valle hacia el encantador pueblo de Álora, esta hermosa propiedad de campo ofrece la combinación perfecta de tranquilidad, amplitud y potencial de ingresos.
A solo 10 minutos en coche del pueblo y de la estación de tren —con conexión directa a Málaga— la finca disfruta de una privacidad excepcional sin renunciar a la comodidad de tener servicios y transporte cerca.
La propiedad se asienta sobre casi 18.000 m² de terreno llano y totalmente utilizable, ideal para una gran variedad de estilos de vida rurales. Tanto si sueña con tener caballos, cultivar, crear jardines o simplemente disfrutar de la libertad del campo abierto, este terreno ofrece posibilidades infinitas.
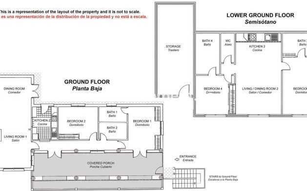
La vivienda ha sido diseñada con cuidado y está dividida en dos apartamentos independientes, lo que la hace ideal para familias extensas o para generar ingresos por alquiler manteniendo la privacidad.
El apartamento superior cuenta con dos cómodos dormitorios y dos baños, además de una cocina totalmente equipada y un luminoso salón-comedor centrado en una acogedora chimenea de leña. Desde aquí, las puertas se abren a una veranda cubierta, el lugar perfecto para relajarse y disfrutar de las impresionantes vistas panorámicas del campo y de Álora.
El apartamento inferior ofrece un amplio espacio diáfano que integra salón, comedor y cocina, junto con dos dormitorios —cada uno con su propio baño ensuite— y un aseo adicional para invitados. Grandes puertas dobles, tanto en la zona de estar como en los dormitorios, dan acceso directo a la terraza privada de la piscina, creando una experiencia de vida interior-exterior totalmente fluida.
En este nivel también hay un gran trastero, que podría convertirse fácilmente en un dormitorio adicional con baño ensuite, así como un garaje, lo que añade aún más versatilidad a la propiedad.
Construida con altos estándares, la vivienda dispone de suministro de agua municipal, electricidad de red y, lo que es especialmente importante, cuenta con Licencia de Primera Ocupación, lo que aporta tranquilidad tanto para uso residencial como para posibles alquileres.
Con sus espectaculares vistas, su extenso terreno utilizable, su distribución flexible y su excelente acceso a Málaga, esta es una oportunidad excepcional para quienes buscan un auténtico estilo de vida rural andaluz con el valor añadido de un potencial de ingresos por alquiler.