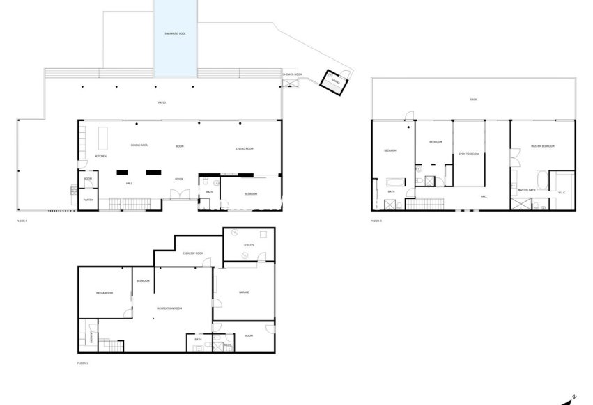
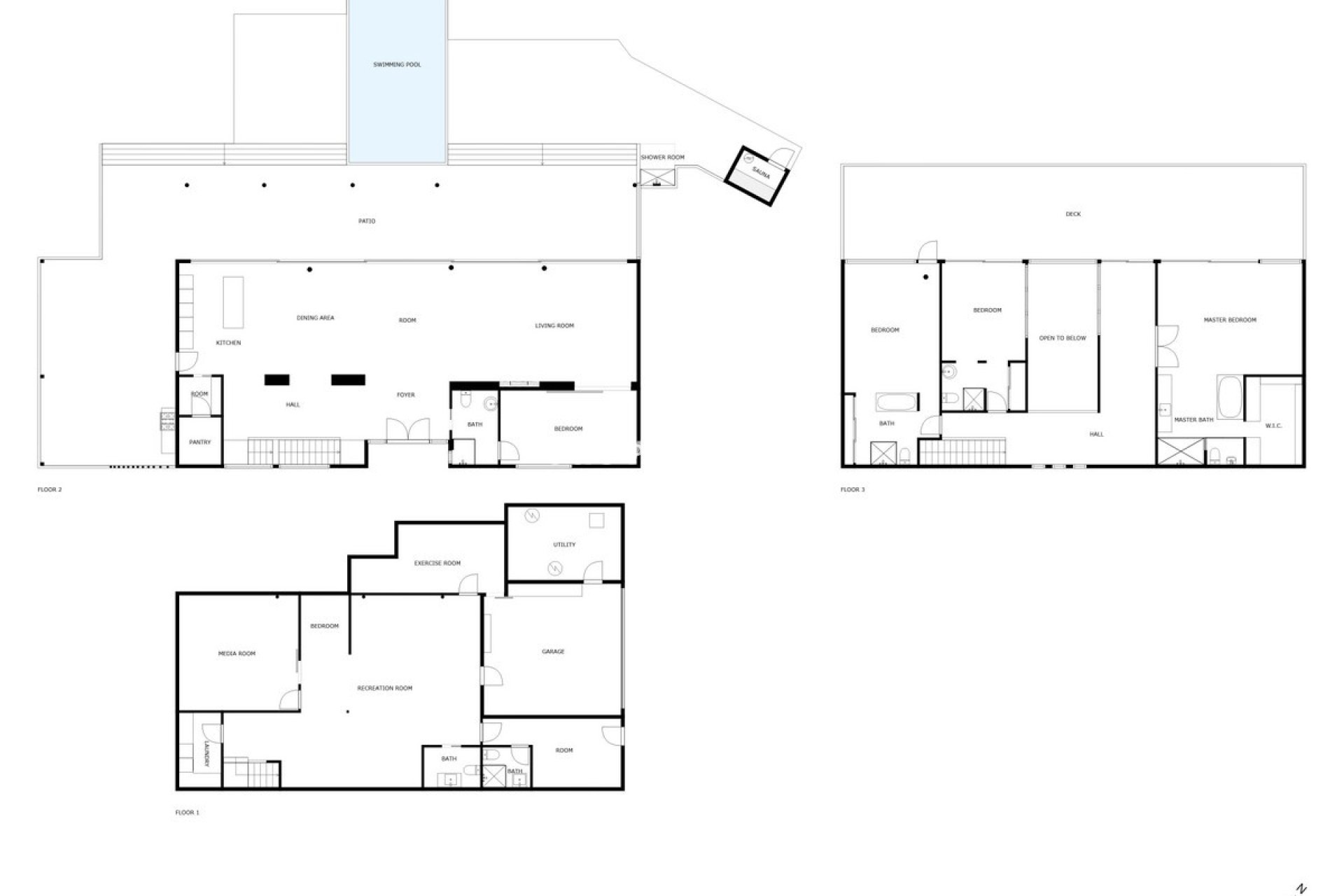
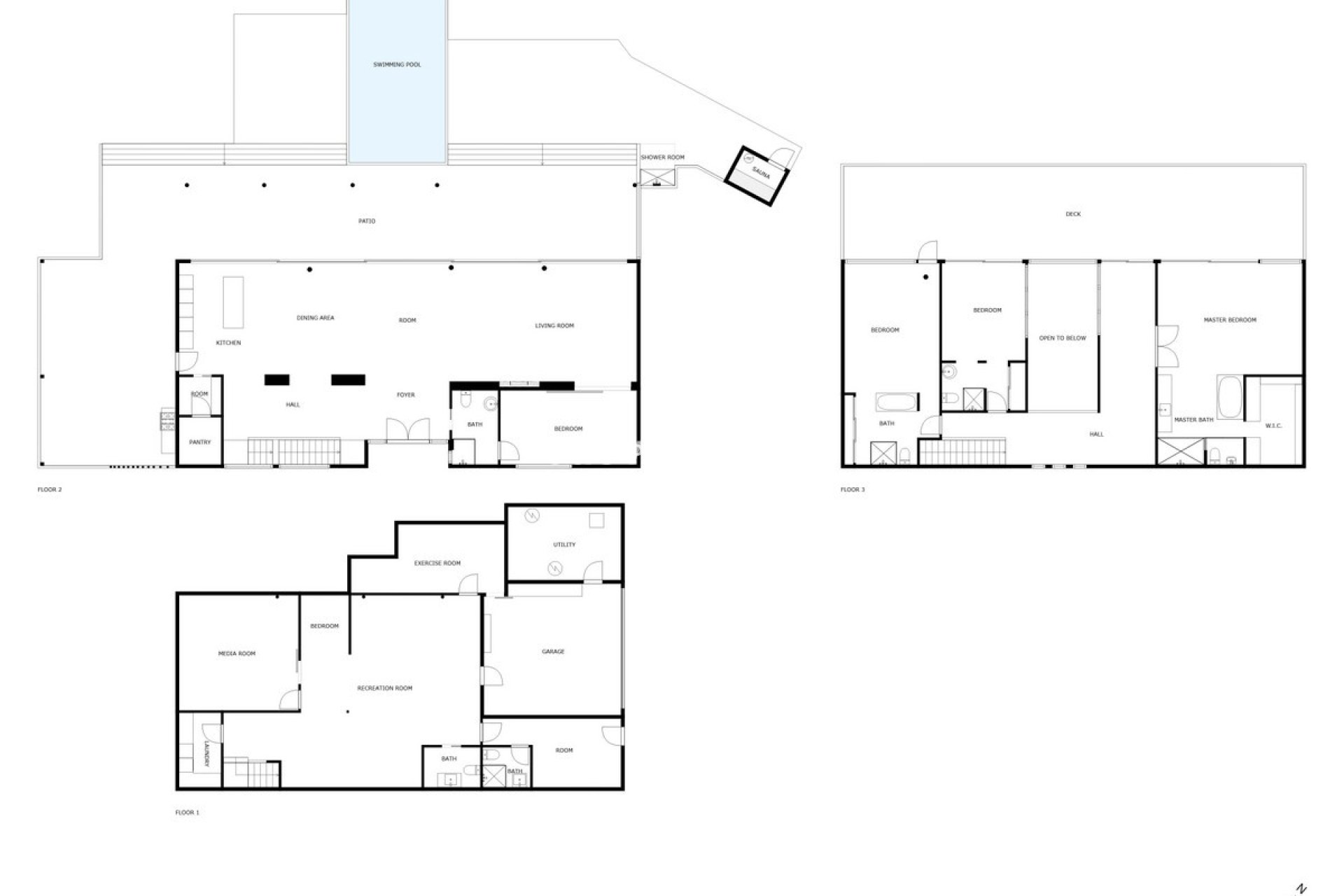
Ubicada en los pintorescos paisajes de El Higuerón, esta incomparable villa de 5 dormitorios y 5 baños es el epítome de la elegancia moderna y el diseño atemporal. Con una variedad de características espléndidas y vistas impresionantes, esta propiedad redefine el lujo moderno en el corazón de la Costa del Sol.
Con su arquitectura elegante y contemporánea, esta villa combina perfectamente con la belleza natural que la rodea. El diseño enfatiza el uso de la luz natural, creando una atmósfera luminosa y aireada en todos los espacios interiores.
Ingrese y será recibido por amplias áreas de estar que rezuman sofisticación y comodidad. El diseño de concepto abierto permite transiciones perfectas de una habitación a otra, proporcionando el entorno ideal tanto para la relajación como para el entretenimiento.
Una de las características más llamativas de la villa es la piscina infinita que aparentemente se funde con el horizonte mediterráneo. Ya sea que esté tomando un refrescante chapuzón o descansando en la amplia terraza, las vistas panorámicas del Mediterráneo y Fuengirola son simplemente impresionantes.
Cada una de las cinco habitaciones es un santuario en sí mismo. Espaciosas, elegantemente diseñadas y con baño privado, ofrecen la máxima comodidad y privacidad para usted y sus invitados.
Esta villa no es sólo un hogar; es un santuario. Relájese en la sauna, mire sus películas favoritas en la sala de cine o desafíe a amigos y familiares a jugar en la sala de juegos exclusiva. Cada servicio ha sido cuidadosamente diseñado para satisfacer todas sus necesidades. Sus vehículos estarán bien cuidados con un garaje espacioso y seguro para dos automóviles.
Esta exclusiva villa en El Higuerón es más que una simple propiedad; es un estilo de vida. Experimente el pináculo de la vida de lujo en la Reserva del Higuerón, donde el diseño moderno, la luz natural, la decoración escandinava y las comodidades incomparables se combinan en perfecta armonía. Haga de esta villa su refugio y disfrute de una vida de tranquilidad, sofisticación y absoluto confort.