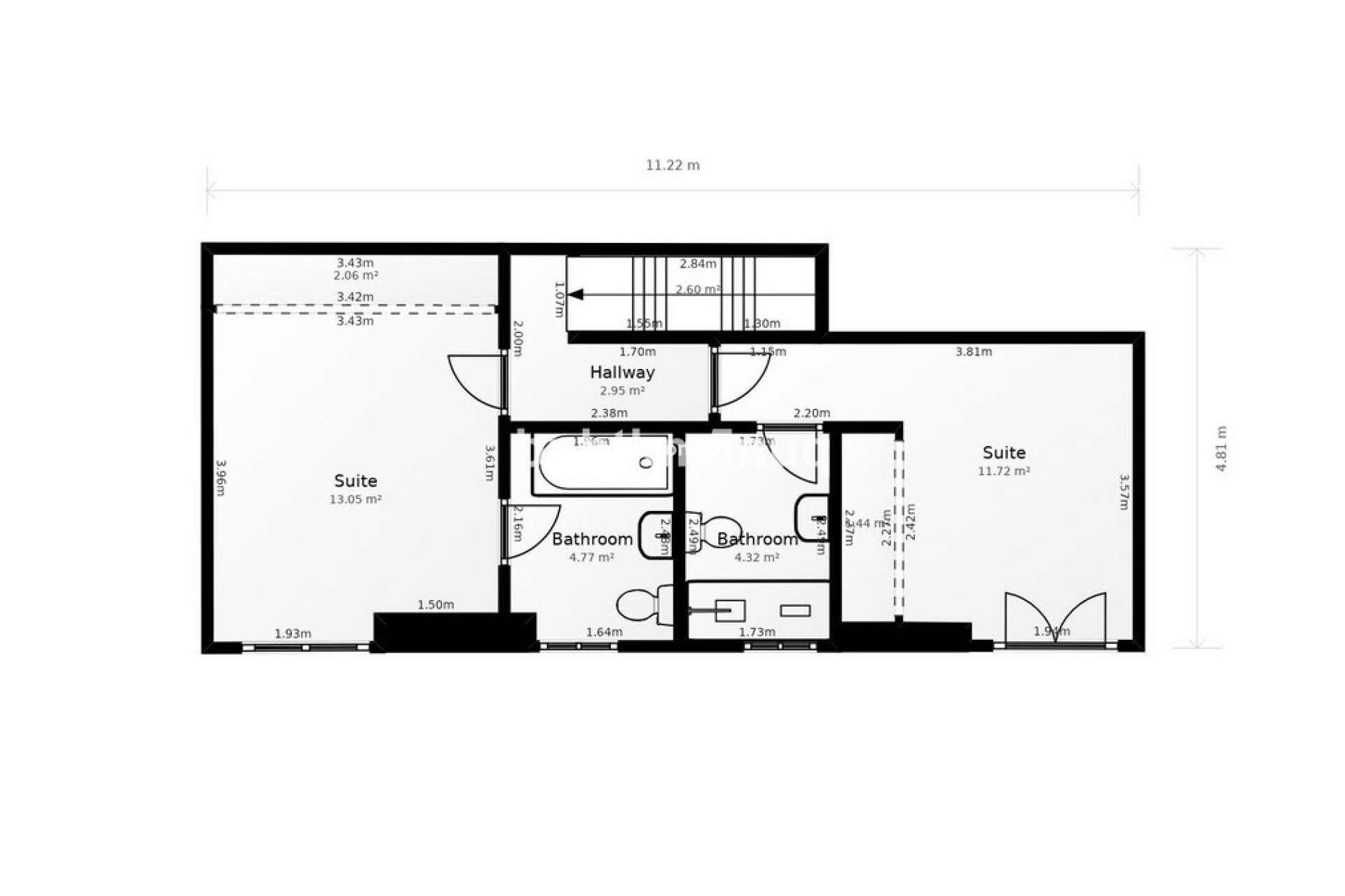
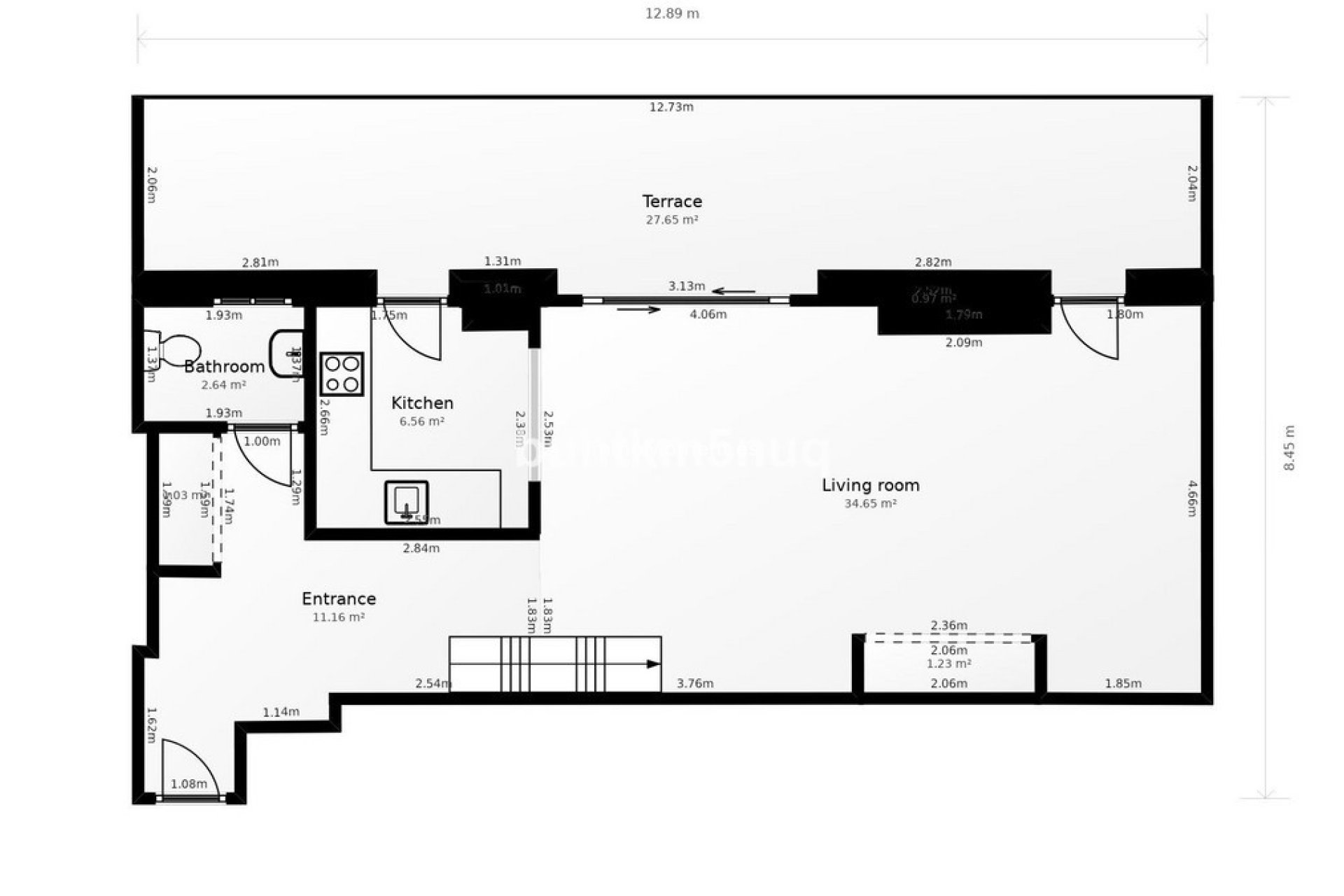
Descubra este impresionante apartamento dúplex en la 7ª planta situado en la hermosa zona Playa Arenal-Bol, Calpe. Esta vivienda, construida en 2023, ofrece una amplia superficie habitable de 117 m2 y es perfecta para quienes buscan comodidad y lujo. El apartamento cuenta con dos amplias habitaciones dobles y dos baños modernos, lo que es ideal para familias o huéspedes.~~Esta propiedad especial viene completa con servicios adicionales como aparcamiento privado, acceso a una refrescante piscina y una acogedora terraza donde podrá disfrutar de la impresionante vista al mar.~~La ubicación habla por sí misma: a solo 500 metros de la hermosa playa Arenal, donde podrá relajarse bajo el sol; además, el animado centro está a solo 650 metros de distancia, lo que hace que todo esté al alcance de la mano: tiendas, restaurantes, cafés, etcétera. ¡Esto hace que esta propiedad no solo sea atractiva como residencia permanente, sino también excelente para alquiler vacacional! ¡No pierda esta oportunidad de invertir en su vivienda de ensueño en la Costa Blanca!