UBICACIÓN: Localizamos esta hermosa villa de lujo en la población de Calpe en la provincia de Alicante, en una zona tranquila y consolidada.
El centro de Calpe con sus playas está a unos 5400 metros de distancia.
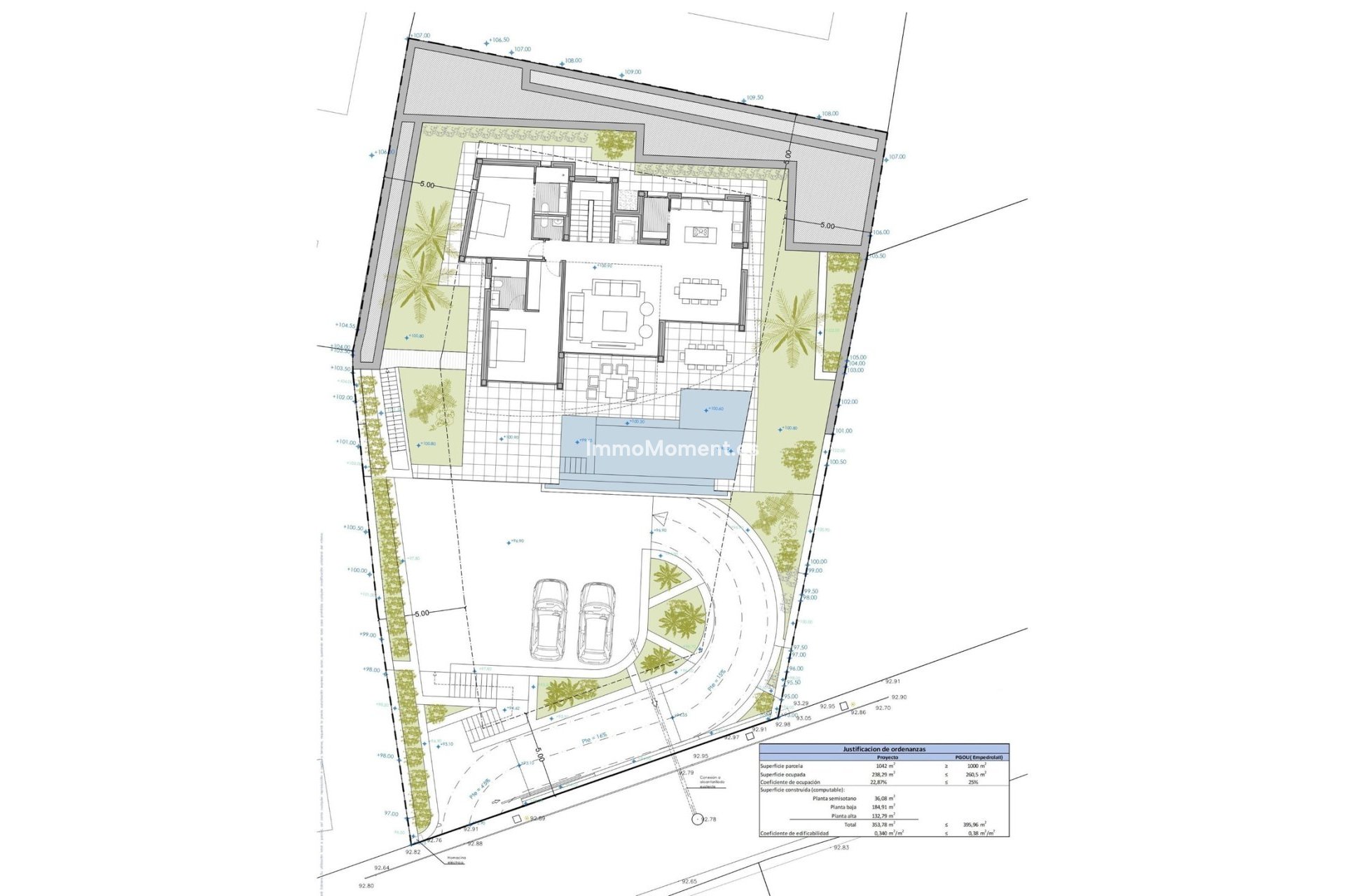
VIVIENDA: Esta villa con una superficie construida de 898 m2, construida sobre una parcela de 1042 m, ofrece vistas espectacular al mar, el Peñón de Ifach y Calpe
Se distribuye en 3 plantas, comunicadas entre sí con escaleras interiores y ascensor.
Desde la entrada al jardín a través de puertas automáticas, accedemos directamente a la entrada del garaje en la planta semisótano donde encontramos en el exterior una amplia zona de aparcamiento con capacidad para varios coches.
PLANTA SEMISÓTANO: desde la calle se accede a la parcela y al acceso del garaje de 52m2. Aquí también encontramos un lavadero y una bodega.
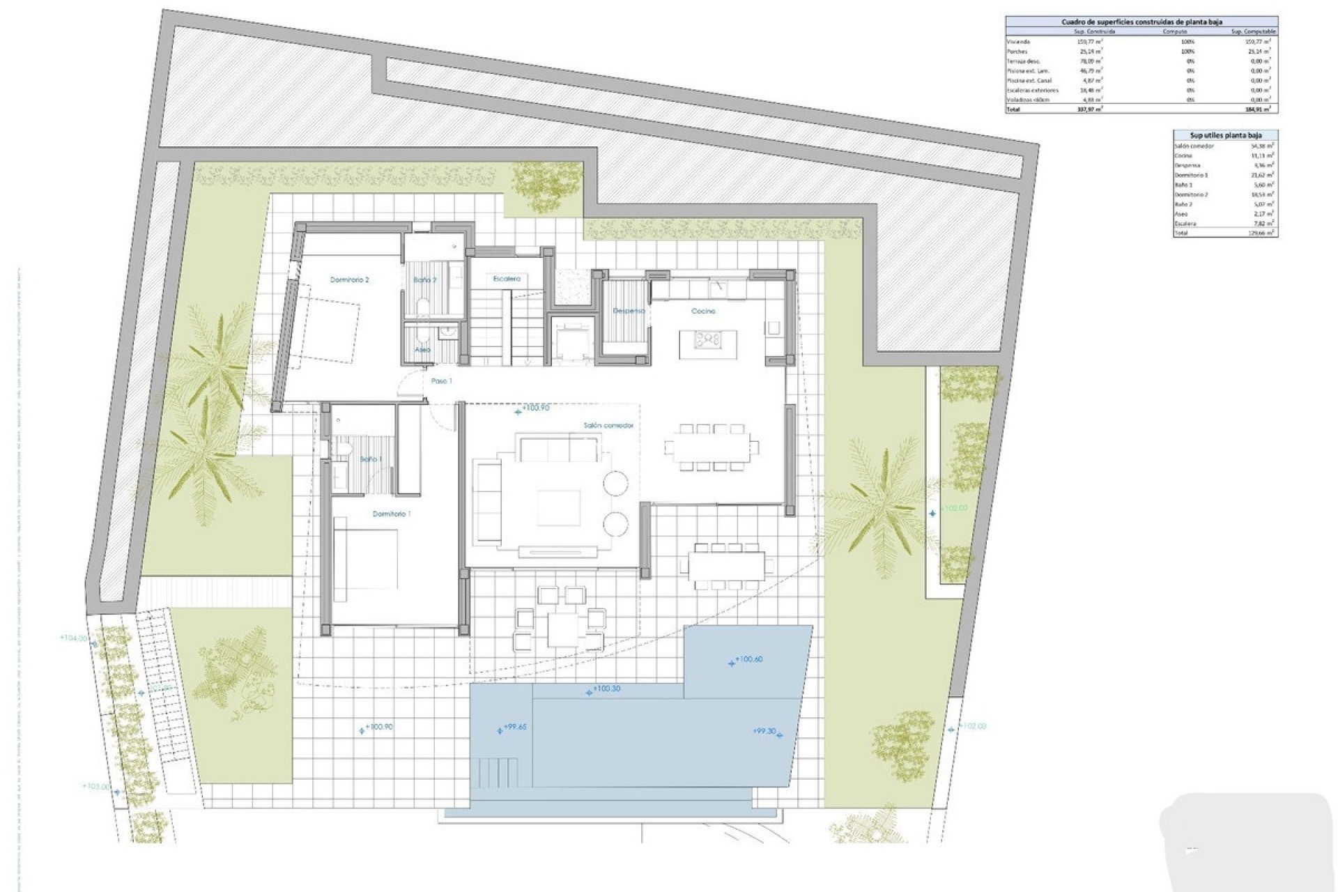
PLANTA PRINCIPAL: subimos a través de escaleras internas o ascensor, y accedemos directamente a la vivienda donde encontramos un amplio salón comedor con acceso a un porche de 25 m2 y a la zona de la piscina con su amplia terraza de 78m2. También encontramos aquí una cocina de concepto abierta hacia el salón/comedor, completamente equipada, aparte 2 dormitorios con su baño en suite y un aseo de invitados
PLANTA ALTA: 2 dormitorios dobles cada uno con su cuarto de baño incorporado y dos terrazas descubiertas.
EQUIPAMIENTO: carpintería Technal con cristal de seguridad, cocina completa con electrodomésticos Siemens. Iluminación LED.
Sistema de aerotermia para el agua caliente y para la calefacción del suelo radiante, aire acondicionado por conductos (frío y calor) en toda la vivienda.
Armarios empotrados, persianas eléctricas, alarma interior, preinstalación de alarma exterior y cámaras de seguridad.
Piscina rectangular con sistema desbordante de 10x3,3 metros, zona de barbacoa, lavadero, jardín, bodega. Orientación sur.
Puertas de acceso automática.
Clasificación energética A.
Llámenos para una visita o más información.
Trabajamos para que encuentre la casa de sus sueños.
Le enseñaremos esta propiedad si le interesa, o buscaremos para usted hasta encontrar lo que busca.
¡Después, nos encargaremos de todo el papeleo necesario hasta la entrega de las llaves!