Primera imagen con IA.
Descubre este acogedor estudio/apartamento con gran potencial de 103 m2, moderno y versátil, a estrenar.
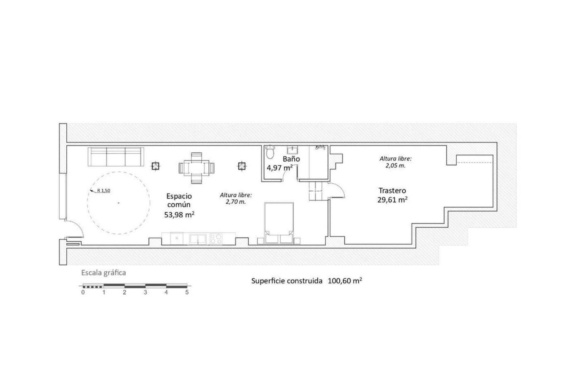
Este inmueble completamente nuevo destaca por su amplitud, luminosidad y gran versatilidad. Con 103 m2 y orientación sur, la propiedad se beneficia de una excelente entrada de luz natural, creando un ambiente cálido y acogedor durante todo el día.
Nada más acceder, encontramos un amplio salón principal, perfecto para crear diferentes ambientes o distribuciones según tus necesidades. Gracias a sus dimensiones, también ofrece la posibilidad de reorganizar el espacio y generar áreas independientes si se desea.
La vivienda cuenta con un baño completo moderno y totalmente equipado, aire acondicionado y suelo de tarima de alta calidad, destacando por su estilo contemporáneo y confort.
A continuación del salón se encuentra una segunda zona interior de gran amplitud, un espacio especialmente versátil que puede adaptarse fácilmente como zona de descanso, despacho, estudio o sala multifuncional. Además, dispone de tomas de agua, lo que permite la incorporación de un segundo baño y una zona de vestidor, aumentando aún más las posibilidades de distribución y comodidad.
Actualmente, la propiedad no dispone de cocina instalada, lo que representa una oportunidad de diseñarla y adaptarla completamente a tu estilo y necesidades, aumentando la flexibilidad del espacio.
Al encontrarse completamente a estrenar, la propiedad permite personalizar y adaptar los espacios a distintos estilos de vida o proyectos.
Ubicación
Situada en Arroyo de la Miel, Benalmádena, la propiedad goza de una ubicación muy conveniente, rodeada de numerosos comercios, restaurantes, supermercados y servicios esenciales.
Además, cuenta con excelentes comunicaciones, con la estación de Cercanías Málaga C‑1 a poca distancia, conectando fácilmente con Málaga y su aeropuerto .
Para los amantes del mar, la propiedad se encuentra a unos 14 minutos caminando de la playa, ofreciendo un fácil acceso al paseo marítimo y al entorno costero.
Una propiedad ideal para quienes buscan amplitud, luminosidad, flexibilidad y acabados modernos, perfecta tanto como vivienda principal como inversión con gran potencial.
No dudes en contactarnos para más información o para concertar una visita.
Tiene a su disposición el Documento Informativo Abreviado.
Gastos (ITP o IVA+AJD) + gastos notariales y registrales. NBC.
Estimación de gastos a cargo del comprador: La compra está sujeta al Impuesto de Transmisiones Patrimoniales (ITP), (Ley 5/2021 de Tributos Cedidos), cuyo tipo general máximo es del 7%. La base imponible será el mayor valor entre el precio escriturado y el valor de referencia catastral (art. 10 TRLITPAJD). Podrían resultar aplicables tipos reducidos según las circunstancias personales del comprador. Los gastos de escritura pública y de inscripción en el Registro de la Propiedad están regulados por arancel oficial (RD 1426/1989) y (RD 1427/1989) respectivamente. Estimación orientativa entre 500€ y 2.000€ para gastos notariales y entre 250€ y 1.500€ para los registrales. Gestoría (si se contrata de forma voluntaria, honorarios libres): Estimación entre 300€ y 500€. Los gastos de plusvalía municipal (IIVTNU) son a cargo del vendedor (art. 104 TRLRHL). Coste total estimado para el comprador: [XXX.XXX]€. (+10%)Esta estimación es orientativa y se facilita conforme al art. 20.1.c) TRLGDCU. El importe definitivo dependerá de las circunstancias concretas de la operación y del comprador. Los honorarios de intermediación corren a cargo del vendedor