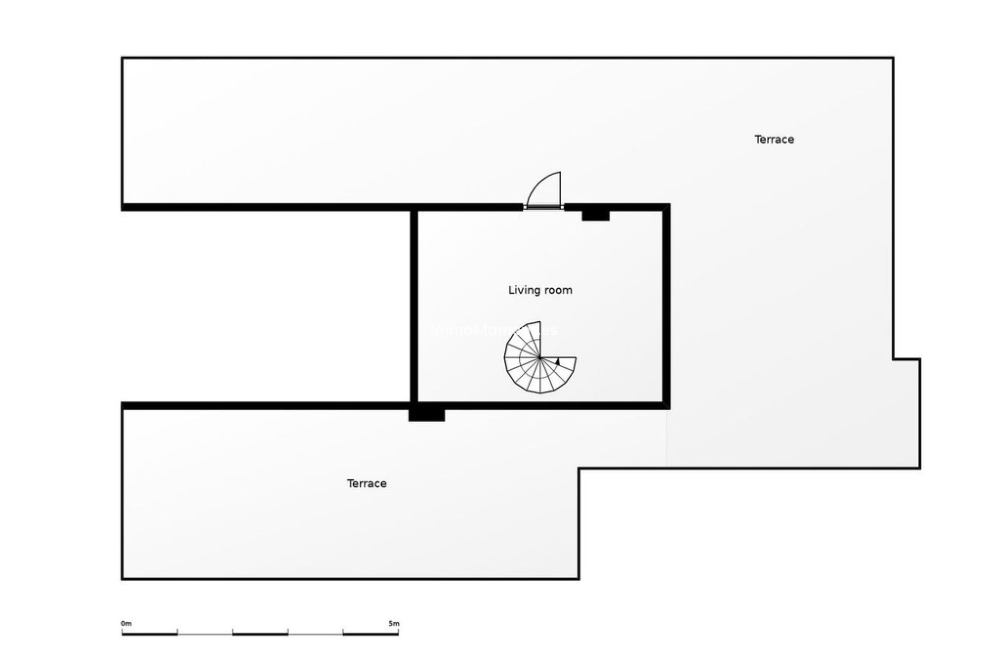
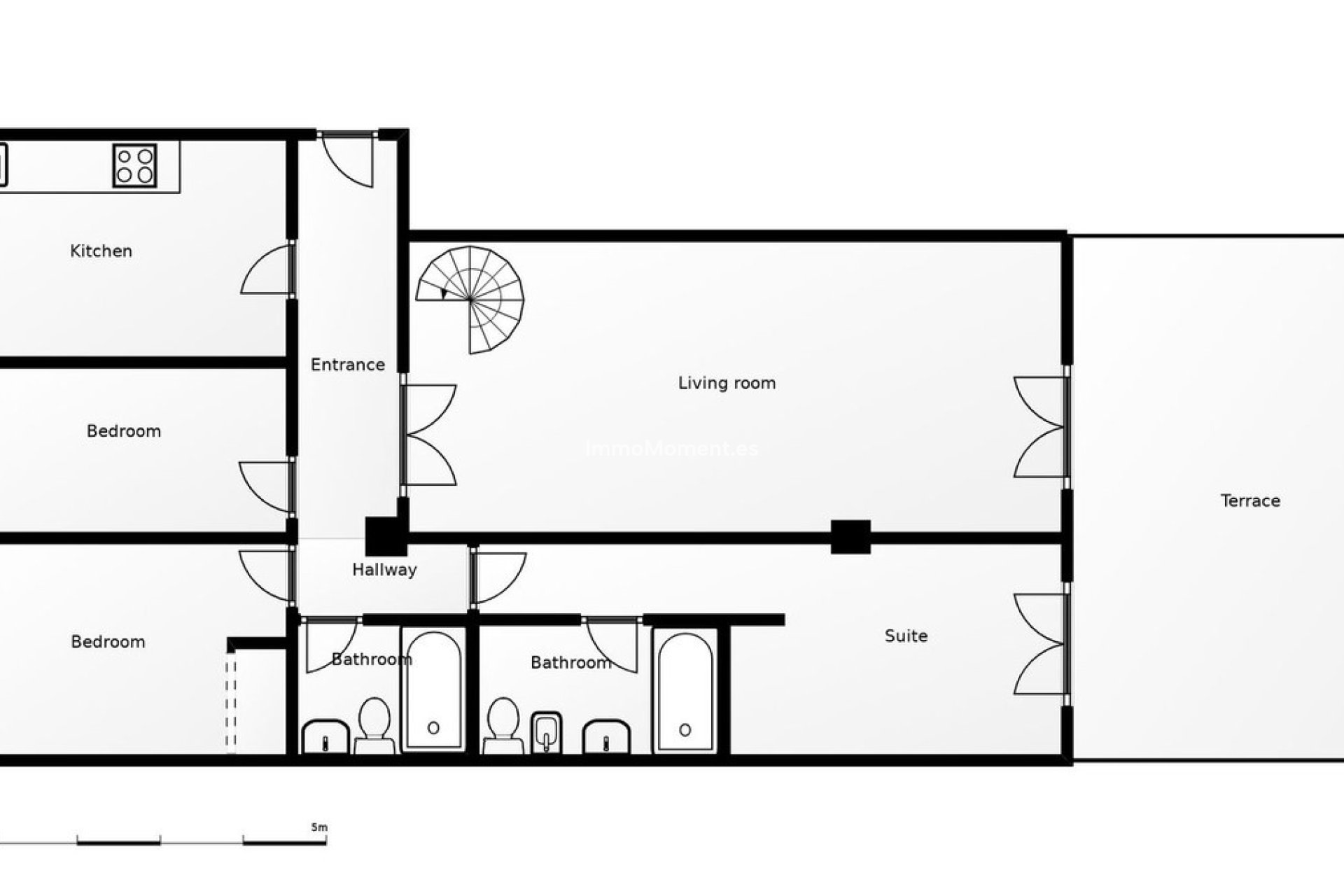
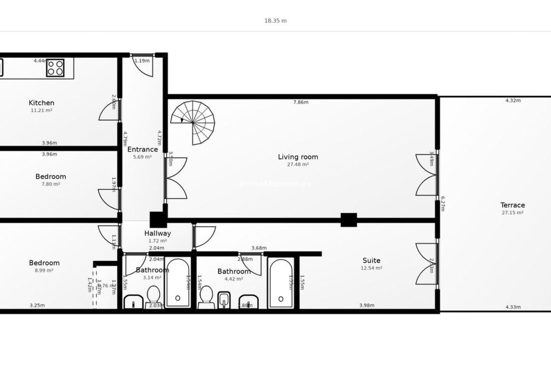
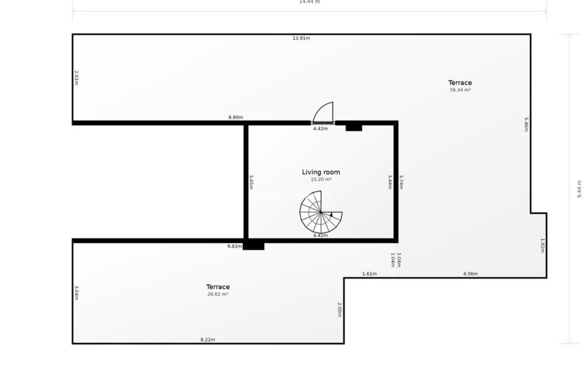
Un impresionante ático dúplex de 3 dormitorios y 2 baños, a un paso de todos los servicios de Benalmádena Pueblo. La propiedad ofrece unas vistas panorámicas espectaculares, desde Sierra Nevada hasta el Mediterráneo y África en días claros. El inmueble se presenta en impecables condiciones y cuenta con terrazas en ambas plantas: una de 25 m² con acceso desde el salón y el dormitorio principal, y otra de 76 m² con acceso desde la entreplanta sobre el salón. El apartamento también incluye una plaza de garaje y un amplio trastero.
Ático, Benalmadena, Costa del Sol.
3 Dormitorios, 2 Baños, Construidos 126 m², Terraza 101 m².
Posición : Cerca de Tiendas, Cerca de Colegios, Urbanización.
Orientación : Sur.
Estado : Excelente.
Piscina : Comunitaria.
Climatización : Aire Acondicionado.
Vistas : Mar, Montaña, Panorámicas, Jardín.
Caracteristicas : Ascensor, Armarios Empotrados, Cerca de Transporte, Terraza Privada, WiFi, Trastero, Baño En-Suite, Doble acristalamiento, Cerca de una Iglesia.
Muebles : Opcionales.
Cocina : Equipada.
Jardin : Comunitario.
Seguridad : Recinto Cerrado, Portero Automático.
Aparcamiento : Garaje, Privado.
Servicios Públicos : Electricidad.
Categoría : Lujo, Reventa.