Moderno apartamento en el corazón de Estepona
Ubicado en pleno centro de Estepona, a solo unos pasos de todo lo que esta encantadora ciudad costera tiene para ofrecer y muy cerca del hermoso paseo marítimo y del mar Mediterráneo, se encuentra este exclusivo hogar en el moderno complejo residencial Ventura Estepona. El edificio, con tan solo unos pocos años de antigüedad, destaca por su arquitectura contemporánea y sus elegantes acabados de alta calidad.
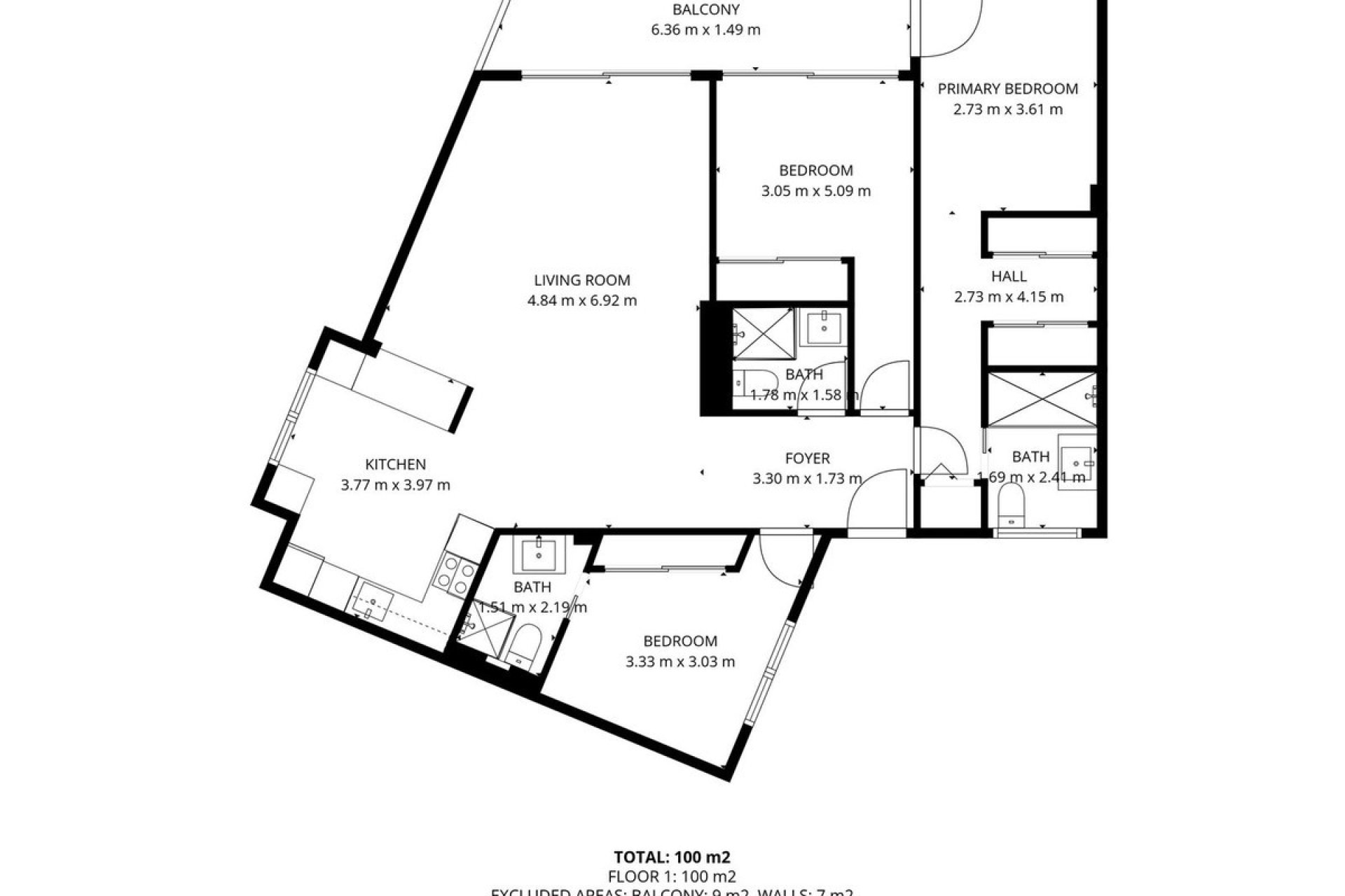
El apartamento se sitúa en la primera planta y cuenta con una luminosa terraza orientada al sur con vistas a la calle, ideal para disfrutar del ambiente urbano y sentir el auténtico ritmo de la vida cotidiana de Estepona. La distribución de planta abierta conecta el amplio salón con la moderna cocina, creando un espacio fluido, acogedor y perfecto para compartir. Con tres dormitorios y tres baños, hay espacio más que suficiente para familia y amigos, todo diseñado con un gran sentido de estilo y confort.
Ventura Estepona ofrece el equilibrio perfecto entre la vida urbana y la tranquilidad, con acceso a piscina comunitaria, garaje y trastero para mayor comodidad. Aquí podrás disfrutar de un estilo de vida moderno y confortable, con restaurantes, tiendas, cultura y playas a tu alcance, sin renunciar a tu propio refugio privado en el corazón de la ciudad.
Este es un hogar que combina realmente lo mejor de ambos mundos: la energía vibrante de la ciudad y el ritmo relajado de la costa mediterránea.