Luminoso y espacioso apartamento con vistas panorámicas, incluyendo vistas parciales al mar y preciosas vistas abiertas a la montaña sobre el campo de golf y a los naranjales, con el río como límite natural. Ubicado en una urbanización cerrada y muy bien cuidada en Guadalmina Alta, esta propiedad ofrece una combinación perfecta de tranquilidad y comodidad, a poca distancia de todos los servicios, el golf y la playa.
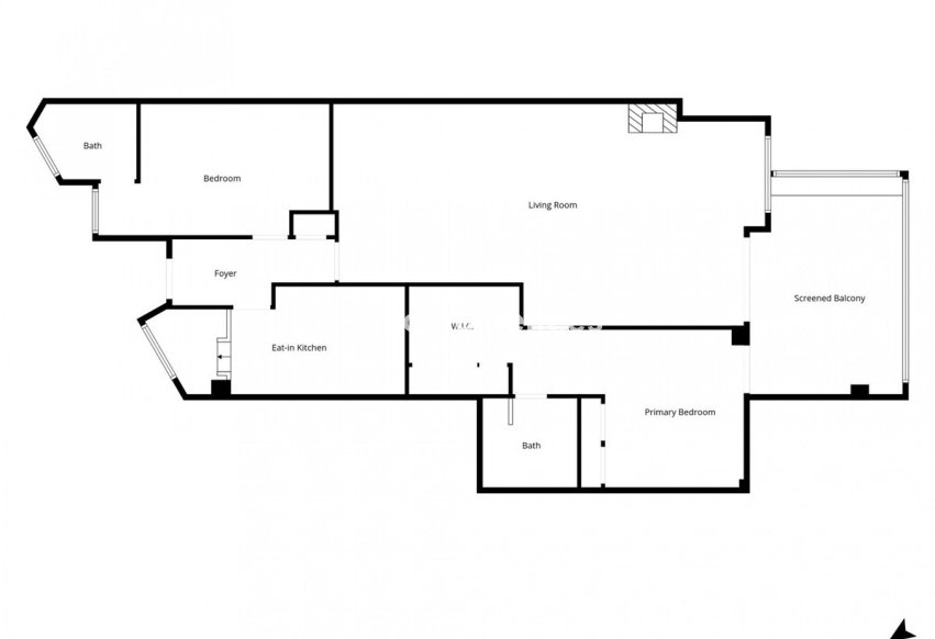
Dispone de 2 dormitorios y 2 baños, una amplia cocina y un salón muy espacioso con salida a una gran terraza cubierta orientada al sol de la tarde, ideal para disfrutar del clima o relajarse al aire libre.
El apartamento ofrece un gran potencial: puede disfrutarse tal y como está, modernizándolo a su gusto, o bien aprovechar su amplitud para crear un tercer dormitorio con una moderna cocina abierta y una isla.
La comunidad ofrece bonitos jardines maduros, piscina comunitaria, garaje subterráneo y amplias zonas de aparcamiento exterior.
Situado junto al campo de golf y en un entorno tranquilo y verde, este apartamento es una magnífica oportunidad tanto como vivienda habitual, segunda residencia o inversión en una de las zonas más exclusivas de Guadalmina Alta.