VILLA CONTEMPORAINE ÉCOLOGIQUE SUR PLAN - CLÉ EN MAIN à Monte Mayor avec vue sur la vallée verdoyante, cette propriété a tout pour plaire, ce sera un véritable joyau pour ceux qui aiment l'espace, le luxe et la qualité !
Cette villa de luxe sera construite sur un terrain de 7 250,00 m2 et se composera de 3 étages, tous les matériaux comme la cuisine, les sols et les murs de la salle de bain proviendront de la célèbre société Grespania.
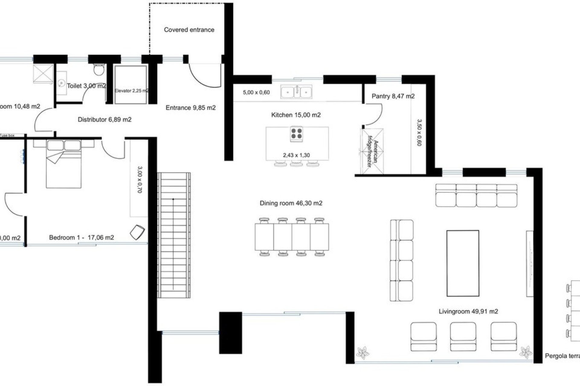
Rez-de-chaussée : abri voiture pergola avec portail d'entrée motorisé, hall d'entrée avec plafond double hauteur, ascenseur, un distributeur qui mène aux toilettes invités, local technique et une chambre avec une grande salle de bain en suite et terrasse privée. De plus, à cet étage, vous disposez d'une immense salle à manger avec une cuisine américaine sur mesure entièrement équipée d'appareils Bosch, un cellier et un grand salon. La salle à manger et le salon donnent tous deux sur d'immenses terrasses couvertes et, pour ceux qui aiment nager ou barboter, une immense piscine de 80 m2 avec bassin pour enfants, espace de bronzage avec plan d'eau et espace chill-out. Il y a un trottoir autour de toute la villa pour faciliter l'accès aux différentes parties du jardin et de la villa. Le jardin sera facile à entretenir et entièrement clôturé avec une solide clôture galvanisée de 2 mètres de haut.
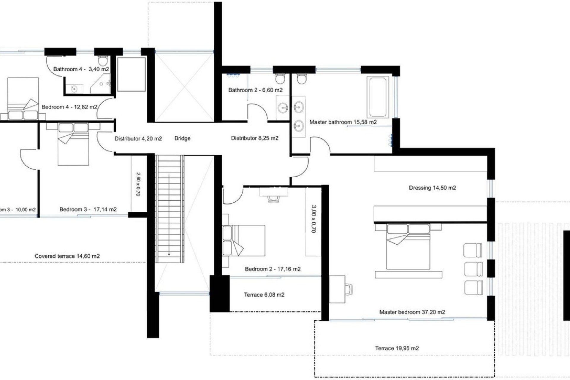
Premier étage : L'escalier ou l'ascenseur vous mène à un palier qui divise le premier étage en 2 parties. D'un côté vous disposez de 2 chambres avec chacune une salle de bain en suite et l'une des chambres dispose d'une terrasse privée. De l'autre côté, vous disposez d'une chambre avec une salle de bain et une terrasse privative. Et bien sûr, à cet étage, vous avez la chambre principale avec un immense dressing, une salle de bain en suite et une grande terrasse.
Sous-sol/Garage : Le garage peut accueillir 4 grandes voitures, vous disposez en outre du local technique de piscine, de toilettes et d'un ascenseur pour voitures. Le débarras pourrait être aménagé en salle de jeux ou salle de cinéma
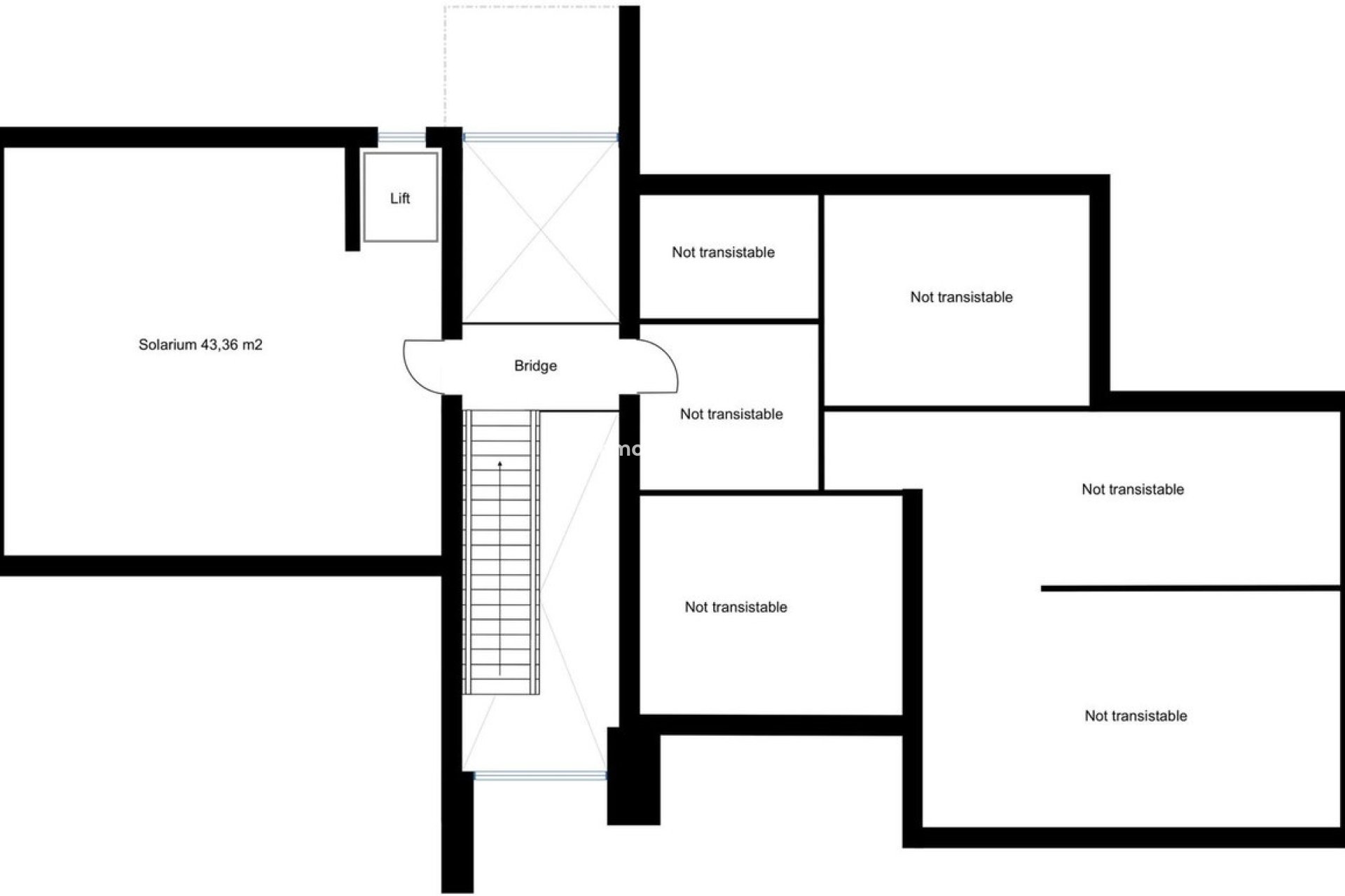
Solarium de 45 m2 entouré de verre pour vous donner de l'intimité
LES PHOTOS DE CUISINES ET SALLES DE BAINS NE SONT QUE DES EXEMPLES, LE CHOIX FINAL SERA CELUI DU CLIENT !
Exemple de quelques spécifications,
- Carrelage sol intérieur et extérieur de GRESPANIA 600x600 – 800x800 - 1200x1200 (Couleur et dimension au choix)
- Murs de salle de bain avec plaques COVERLAM (GRESPANIA) 2700X1200 (Couleur au choix)
- Salles de bains ROCA – DURAVIT – VILLEROY BOCH – GEBERIT – HANSGROHE OU SIMILAIRE
- Aérothermie/climatisation
- Ascenseur de Schindler ou similaire
- Chauffage au sol dans toute la villa
- Fenêtres jusqu'au plafond avec rail encastré, 5+5/chambre/4+4
- Portes intérieures à hauteur de plafond et 1 mètre de largeur
- Cuisine entièrement équipée avec portes à cadre aluminium et recouverte de COVERLAM (Couleur au choix)
- Ilot avec COVERLAM 3600X1600 sans joints visibles (Couleur au choix)
- Appareils électroménagers Bosch ou AEG
- Piscine chaufee
- 30 panneaux solaires
- 3 batteries au lithium de 10 kW chacune
- Chargeur de voiture
- Domotica
Nous sommes une entreprise de construction, Key-in-Hand, qui peut concevoir et construire toutes les possibilités auxquelles vous pouvez penser. Si vous ne trouvez pas chez nous un projet qui vous plaît, nous concevons une villa totalement nouvelle pour vous, en fonction de vos idées et de vos suggestions.
Bien que nous préférions construire des bâtiments écologiques, nous pouvons construire des bâtiments traditionnels ou écologiques, tout dépend de vous.