Villa individuelle de luxe à Roldán
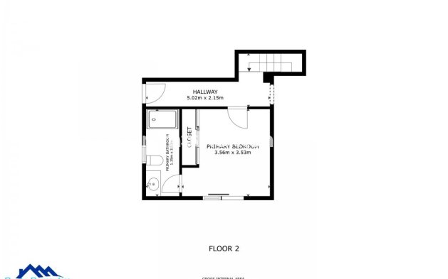
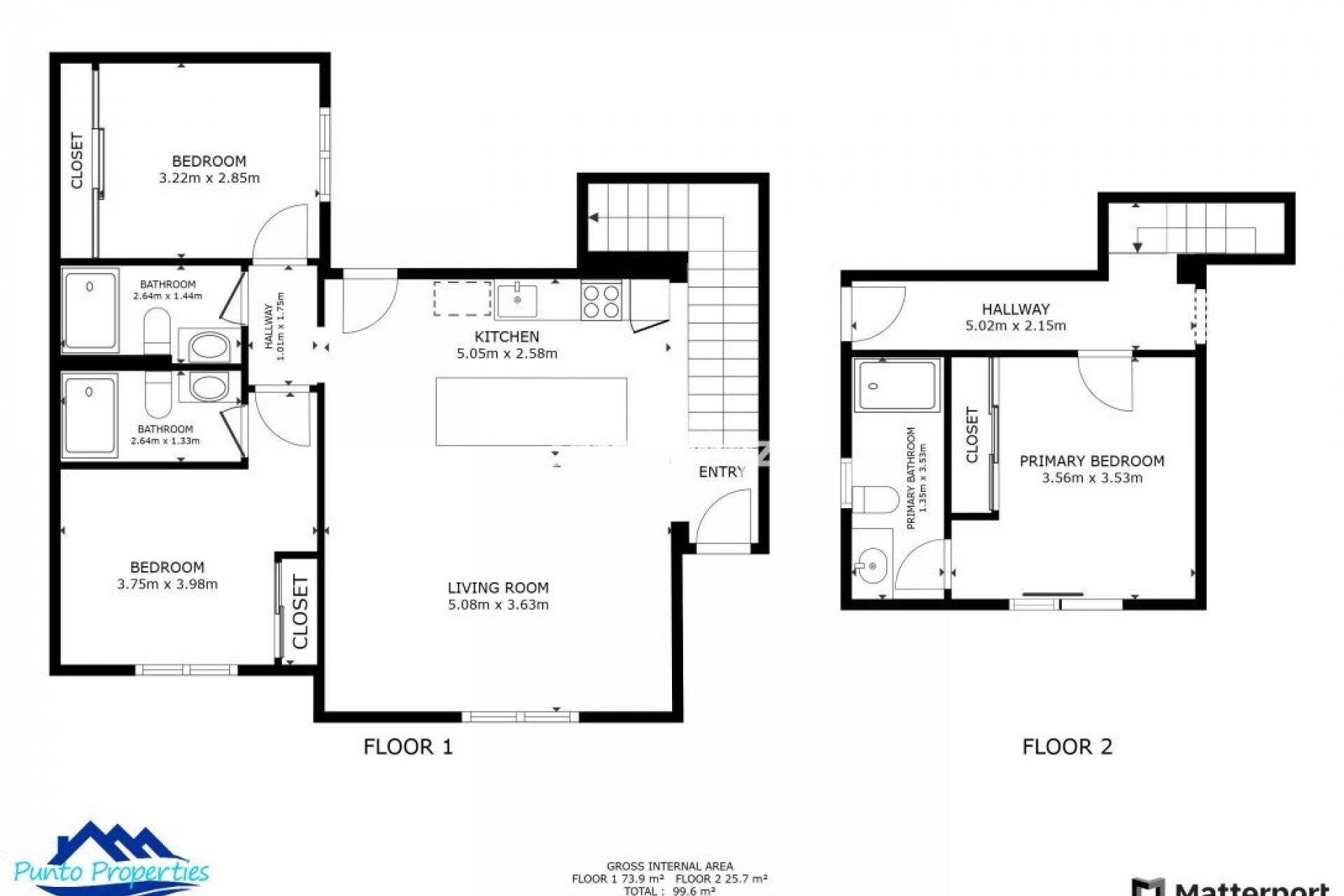
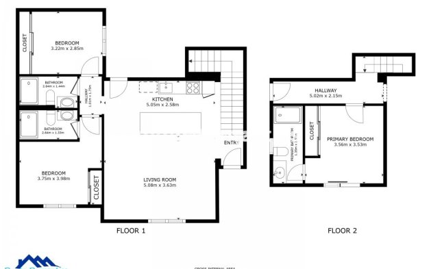
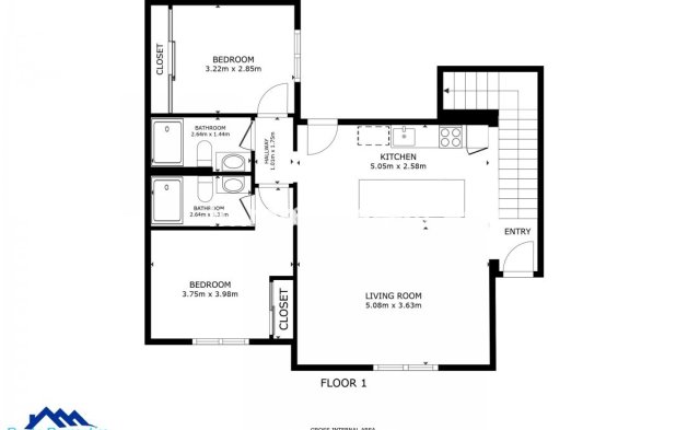
Découvrez cette superbe villa individuelle à Roldán, un havre de paix et de confort, idéale pour y vivre en permanence ou comme maison de vacances. Construite en 2024, cette propriété moderne dispose de 3 chambres spacieuses et de 3 salles de bains entièrement équipées, toutes finies avec des matériaux de haute qualité et une attention aux détails.
La villa dispose d'un espace extérieur généreux avec plusieurs terrasses, une piscine privée chauffée et un jardin magnifiquement aménagé. Pour plus de durabilité et d'efficacité énergétique, 3 panneaux solaires sont installés. La cuisine ouverte, avec un îlot central, des rangements supplémentaires et des appareils intégrés, offre un maximum de confort. Tous les meubles d'intérieur sont inclus, à l'exception du mobilier de jardin sur la terrasse sur le toit.
Située dans un quartier résidentiel familial, la propriété offre d'excellentes commodités telles qu'une école et des aires de jeux pour enfants. De plus, une grande piscine commune de 450 m² avec plage et restaurant sera bientôt disponible, ajoutant encore plus d'attrait à votre environnement.
La villa se trouve à seulement 15-20 minutes en voiture des superbes plages de la Mar Menor, ce qui la rend parfaite pour ceux qui aiment le soleil et la mer. Vous avez également la possibilité d'agrandir la propriété de 100 m² supplémentaires, offrant encore plus d'espace et de confort.