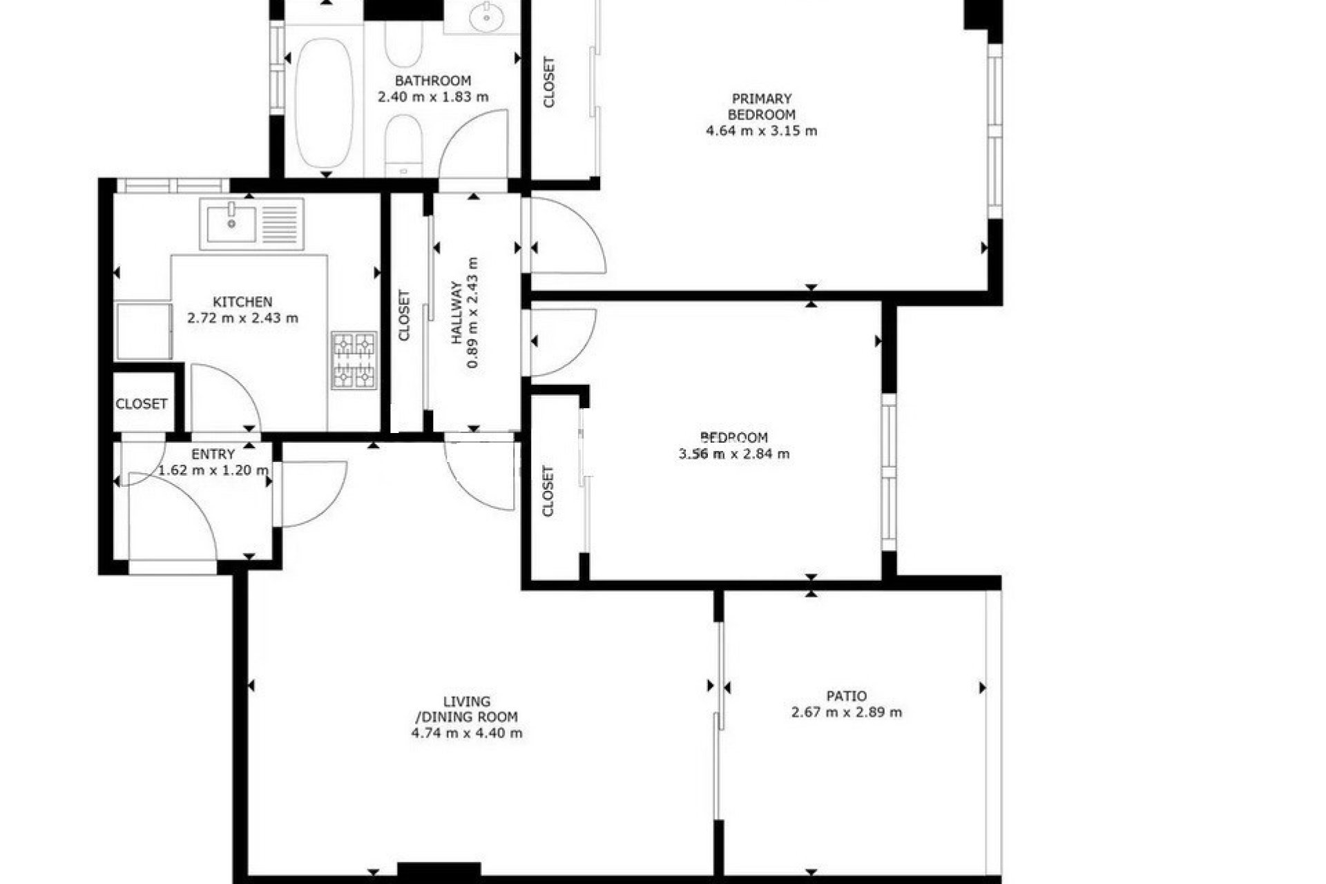
Cet appartement récemment rénové est situé dans le complexe Lorcrisur à San Pedro de Alcantara. Il offre un emplacement privilégié au bord de la plage, la propriété offre un accès facile aux commodités locales, la plage avec restaurateurs et bars, les liaisons de transport, et est commodément proche des supermarchés, écoles, centre-ville de São Pedro, des terrains de golf et le célèbre Porto Banus. L'appartement avec une surface construite de 68m2, offre magnifiquement pour des séjours et des vacances faciles à vivre.
L'appartement dispose de 2 chambres bien meublées avec une salle de bains familiale moderne. Le salon et la salle à manger de plantes ouvertes sont complétés par des sols en marbre et un double accostage, assurant une atmosphère confortable et élégante tout au long de l'année. La climatisation est installée pour le contrôle climatique, et la cuisine et la chambre d'hôtes sont entièrement équipées et sont équipées à un niveau élevé. Les placards intégrés offrent un grand espace de rangement, tandis que la terrasse couverte privée offre des espaces agréables pour la détente, les deux bénéficiant d'une vue sur les jardins.
Les résidents de la collectivité fermée bénéficient d'une gamme de services in situ, y compris un ascenseur, une entrée fermée sécuritaire, une piscine communautaire et des jardins bien entretenus. Pour ceux qui recherchent un style de vie actif, une piste de pagaie est disponible dans le complexe, et la propriété est idéalement située près des terrains de jeux et de la mer.
L'appartement comprend sur sa vente, 1 place de parking privé, améliorant la sécurité et le confort.
Cette propriété est idéalement située pour ceux qui veulent profiter du style de vie dynamique de Saint-Pierre d'Alcantara, avec tout, de la plage aux installations de loisirs et services essentiels à quelques minutes. Sa combinaison de caractéristiques modernes, d'excellentes installations communautaires et d'un emplacement privilégié en font une option convaincante.