Costa Blanca Sud
C/ San Luis 48, esq. C/ Orihuela 03181, TORREVIEJACosta Blanca Nord
Carrer de Colombia, 4, 03509, FINESTRAT€3.439.897 *
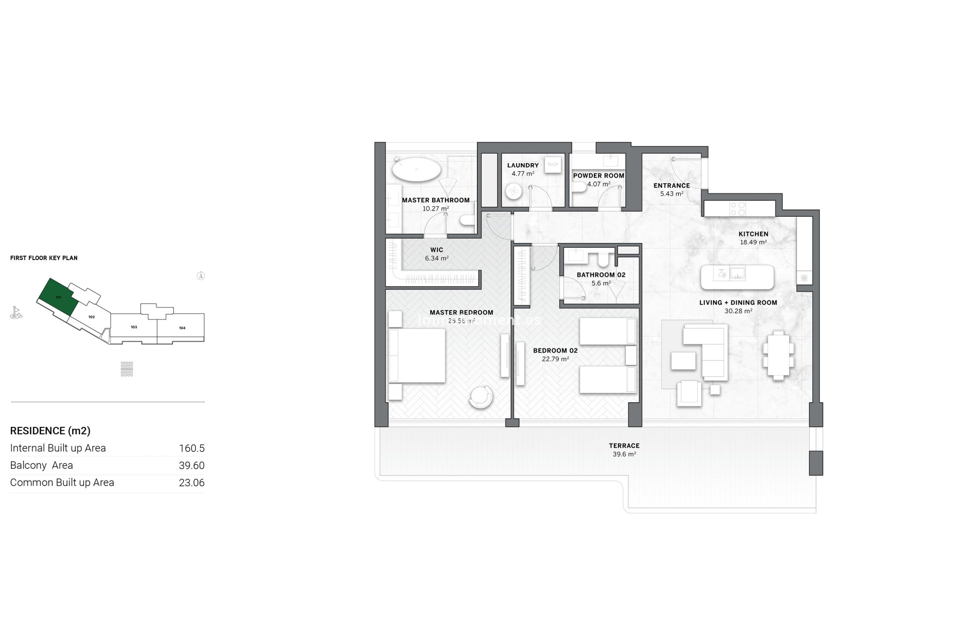
Chambres.
4Salles de bain.
4Piscine.
Oui01-12-2026
4
4
Piscine communautaire
3 Km.
38 Km.
7.8 Km.
4.6 Km.
Voir toutes les propriétés de ce développement
Tout voirSituée dans la prestigieuse zone de Buenas Noches, cette résidence offre une expérience de vie unique avec vue sur la mer. Composée de 24 propriétés, elle se présente comme une option idéale pour ceux qui recherchent un environnement calme et exclusif. Les typologies disponibles incluent des appartements et des options en rez-de-chaussée, s'adaptant à divers besoins familiaux. La proximité de la mer, à seulement 3 km, permet de profiter de la brise marine et de promenades côtières. De plus, l'aéroport se trouve à 38 km, facilitant l'accès aux connexions internationales. Cet emplacement combine la tranquillité d'un environnement naturel avec le confort d'être bien connecté.
EXTÉRIEURS
Les extérieurs de cette résidence à Buenas Noches sont conçus pour maximiser le plaisir de l'environnement naturel. Chaque propriété dispose d'un jardin privé, idéal pour des moments de détente en plein air. Les terrasses, spacieuses et avec vue sur la mer, offrent un lieu parfait pour profiter des couchers de soleil impressionnants. L'architecture de l'ensemble est pensée pour s'intégrer harmonieusement au paysage, offrant une ambiance sereine et accueillante. La proximité de la mer, à seulement 3 km, permet de profiter d'activités aquatiques et de la beauté du littoral.
INTÉRIEURS
L'intérieur des propriétés de cette résidence à Buenas Noches est conçu avec un accent sur le confort et la modernité. Les sols en marbre ajoutent une touche d'élégance, tandis que le système domotique facilite le contrôle de diverses fonctions de la maison. Les cuisines sont équipées d'appareils haut de gamme, garantissant fonctionnalité et style. Les placards intégrés offrent un vaste espace de rangement, maintenant l'ordre et l'esthétique. La distribution inclut des options de 2, 3 et 4 chambres, ainsi que 2, 3 et 4 salles de bains, s'adaptant à différents besoins familiaux. De plus, chaque propriété dispose d'un garage, assurant confort et sécurité.
ESPACES COMMUNS
Les espaces communs de cette résidence à Buenas Noches sont conçus pour offrir un style de vie actif et social. Les résidents peuvent profiter de vastes espaces paysagers, parfaits pour des promenades tranquilles ou des activités en plein air. La piscine communautaire est idéale pour se rafraîchir lors des journées chaudes, tandis que la salle de sport équipée permet de maintenir une routine d'exercice sans quitter la maison. De plus, le court de tennis offre une option sportive supplémentaire, favorisant un style de vie sain et actif.
m². 569m2
Chambres. 4
Salles de bain. 2
€3.450.000
m². 457m2
Terrain. 648m2
Chambres. 4
Salles de bain. 4
€3.400.000
m². 1.300m2
Terrain. 2.335m2
Chambres. 7
Salles de bain. 9
€3.500.000
m². 964m2
Terrain. 1.600m2
Chambres. 5
Salles de bain. 5
€3.500.000
m². 261m2
Terrain. 905m2
Chambres. 4
Salles de bain. 4
€3.200.000
m². 262m2
Terrain. 1.006m2
Chambres. 4
Salles de bain. 4
€3.100.000
m². 1.210m2
Terrain. 2.000m2
Chambres. 7
Salles de bain. 8
€3.900.000
Téléphone:
(+34) 951 550 565Email:
Info@ImmoMoment.esCosta Blanca Sud: C/ San Luis 48, esq. C/ Orihuela 03181, TORREVIEJA
Costa Blanca Nord: Carrer de Colombia, 4, 03509, FINESTRAT
Registro de Agentes de Intermediación Inmobiliaria de la Comunitat Valenciana
Registry of Real Estate Brokerage Agents of the Valencian Community
(obligatorio / mandatory)
Registro de Agentes de Intermediación Inmobiliaria de la Comunitat Valenciana
Registry of Real Estate Brokerage Agents of the Valencian Community
(obligatorio / mandatory)
© 2026 ImmoMoment · Mentions légales · Intimité · Cookies · Plan du site · Conception & CRM: Mediaelx
Tout d’abord, merci de nous contacter.
Nous avons reçu votre demande concernant la référence du bien:HCS-98061. Un de nos agents vous contactera dans les meilleurs délais.
m². 569m2
Chambres. 4
Salles de bain. 2
€3.450.000
m². 457m2
Terrain. 648m2
Chambres. 4
Salles de bain. 4
€3.400.000
m². 1.300m2
Terrain. 2.335m2
Chambres. 7
Salles de bain. 9
€3.500.000
m². 964m2
Terrain. 1.600m2
Chambres. 5
Salles de bain. 5
€3.500.000
m². 261m2
Terrain. 905m2
Chambres. 4
Salles de bain. 4
€3.200.000
m². 262m2
Terrain. 1.006m2
Chambres. 4
Salles de bain. 4
€3.100.000
m². 1.210m2
Terrain. 2.000m2
Chambres. 7
Salles de bain. 8
€3.900.000
Tout d’abord, merci de nous contacter.
Nous avons reçu une demande de rapport si vous abaissez le prix de la propriété avec la référence: HCS-98061
En attendant, jetez un œil à cette sélection de propriétés similaires qui pourraient vous intéresser:
m². 569m2
Chambres. 4
Salles de bain. 2
€3.450.000
m². 457m2
Terrain. 648m2
Chambres. 4
Salles de bain. 4
€3.400.000
m². 1.300m2
Terrain. 2.335m2
Chambres. 7
Salles de bain. 9
€3.500.000
m². 964m2
Terrain. 1.600m2
Chambres. 5
Salles de bain. 5
€3.500.000
m². 261m2
Terrain. 905m2
Chambres. 4
Salles de bain. 4
€3.200.000
m². 262m2
Terrain. 1.006m2
Chambres. 4
Salles de bain. 4
€3.100.000
m². 1.210m2
Terrain. 2.000m2
Chambres. 7
Salles de bain. 8
€3.900.000
Trouvez votre maison de rêve en enregistrant vos propriétés et en recevant des alertes sur les nouvelles propriétés disponibles.
S'identifier