Au cœur même du centre historique de Málaga, où chaque rue respire l'histoire et chaque place vibre de vie, se trouve ce logement unique. Situé au dernier étage d'un immeuble moderne avec ascenseur, construit en 2005, il offre un refuge lumineux et chaleureux qui marie le confort contemporain au charme de l'authentique.
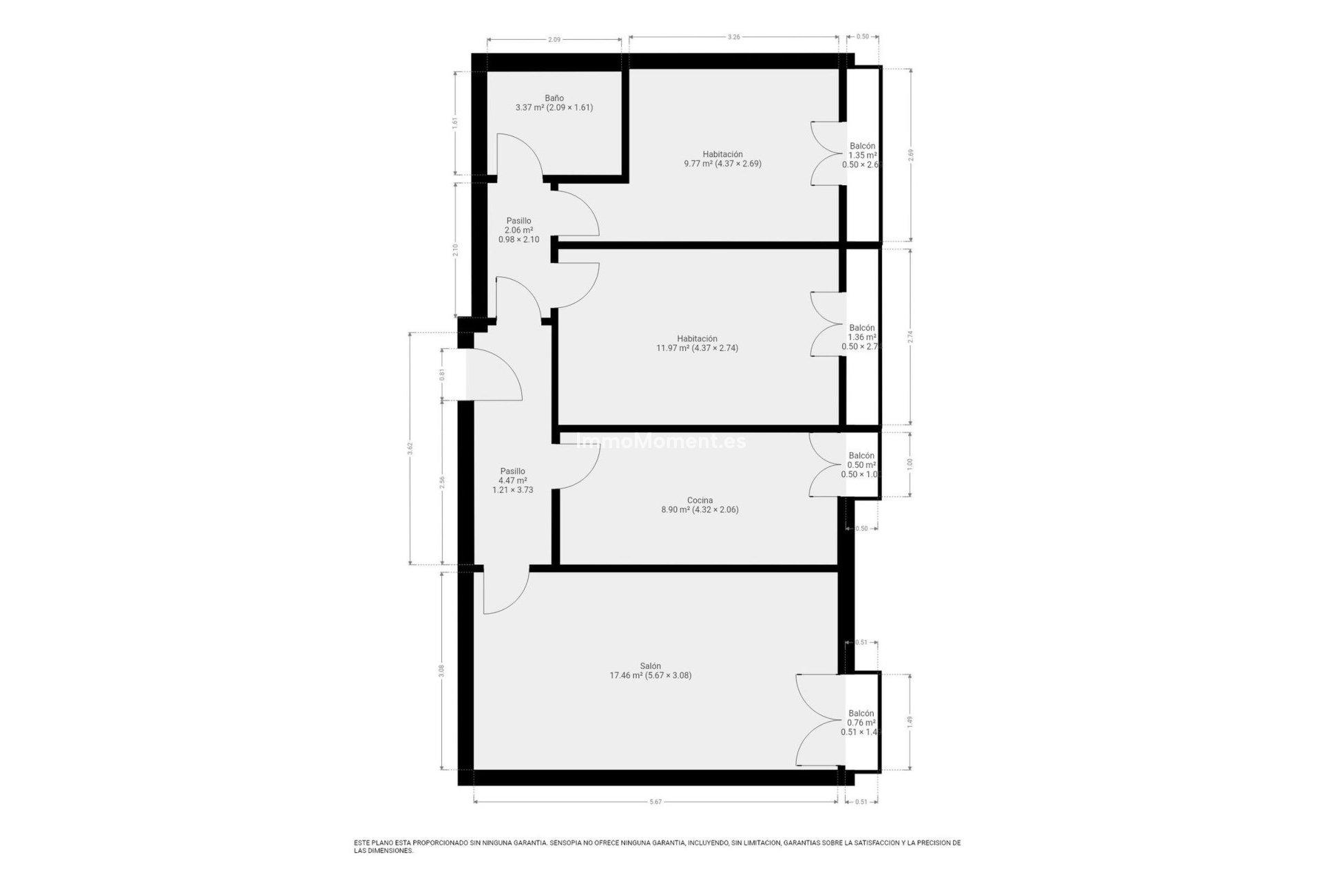
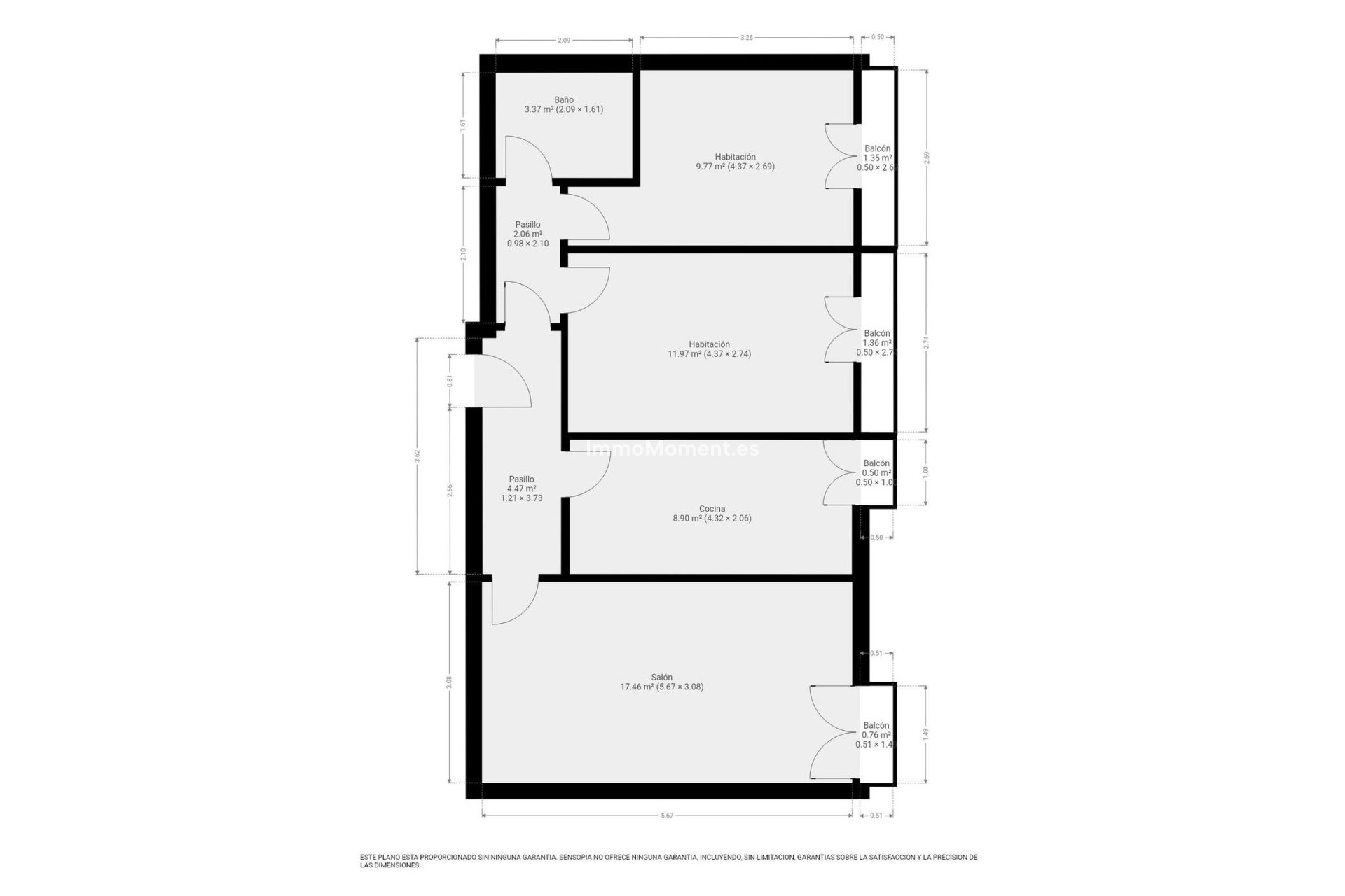
Dès l'entrée, l'espace se ressent. Les hauts plafonds et la lumière naturelle emplissent chaque recoin. Les pièces s'enchaînent avec harmonie, créant un lieu de vie pensé pour être savouré sans hâte : des chambres paisibles, une cuisine conviviale, un salon qui s'ouvre sur la ville. Quatre balcons apportent l'air frais et offrent des vues qui captent Málaga dans sa plus pure expression.
L'emplacement est un privilège. À deux pas de la Plaza de Uncibay, entouré de musées, de théâtres, de restaurants et de boutiques, l'appartement permet de vivre chaque journée intensément, de sentir l'énergie de la ville tout en retrouvant la sérénité d'un espace à soi. Un lieu où tradition et modernité cohabitent en parfaite harmonie.
Les charges sont particulièrement réduites : la copropriété s'élève à seulement 45 € par mois et la taxe foncière annuelle à 182 €. Un détail qui rend ce logement non seulement séduisant, mais aussi judicieux.
Cet appartement n'est pas seulement un lieu où vivre. C'est une manière de vivre Málaga de l'intérieur, de se réveiller avec sa lumière et de se laisser envelopper par le rythme de son centre historique. Une opportunité pour ceux qui recherchent plus qu'un toit : pour ceux qui veulent un foyer avec une âme, dans l'un des quartiers les plus dynamiques et charmants de la ville.