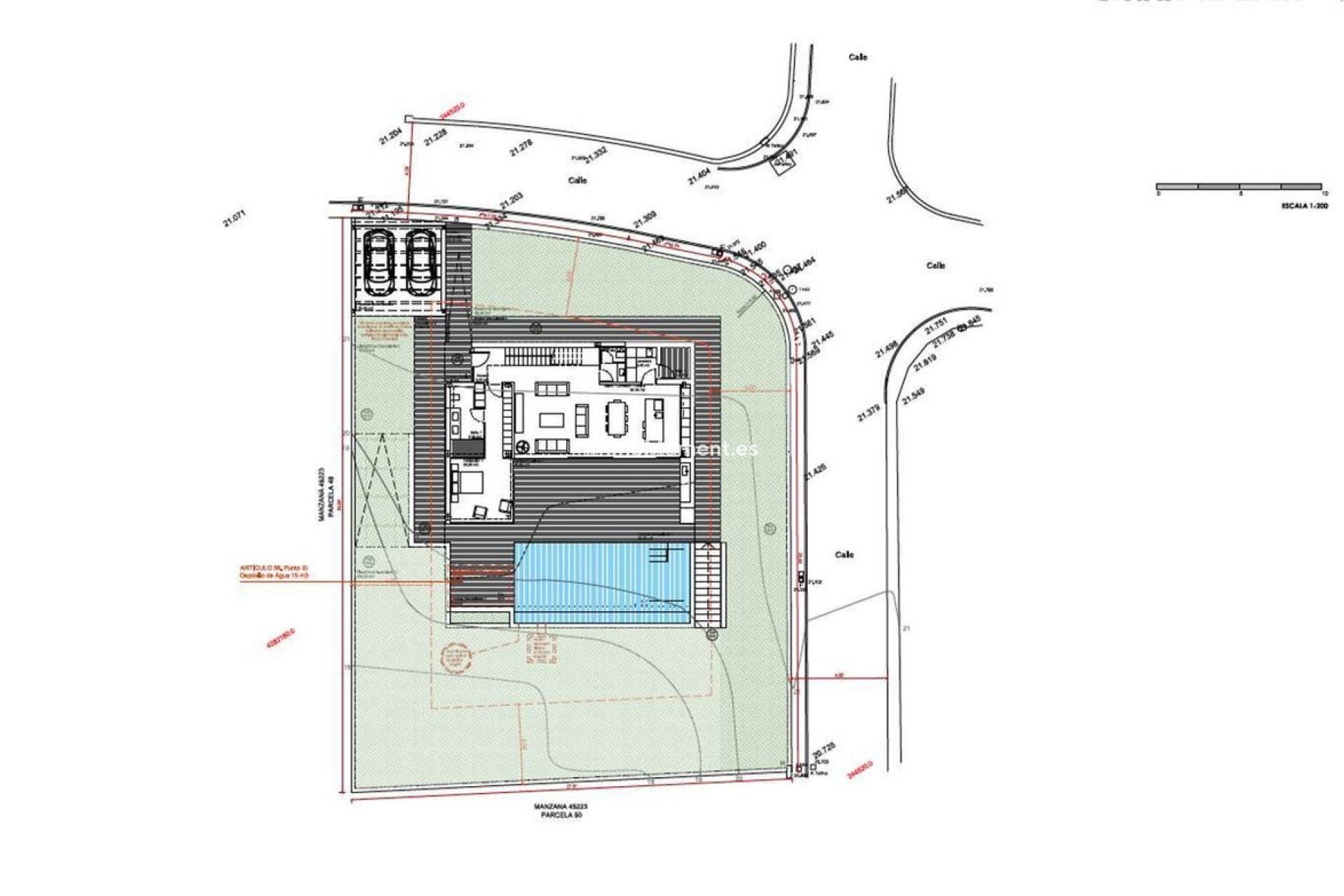
Cette villa moderne est située dans un quartier privilégié de Calpe, à seulement 15 minutes à pied de la belle plage de sable blanc Poniente Arenal Bol et de toutes les commodités. La propriété est sur un terrain d'angle de 920m2 et a 303m2 distribués sur 2 étages. Cette fabuleuse propriété se distingue par ses excellentes qualités et finitions et sa conception fonctionnelle.
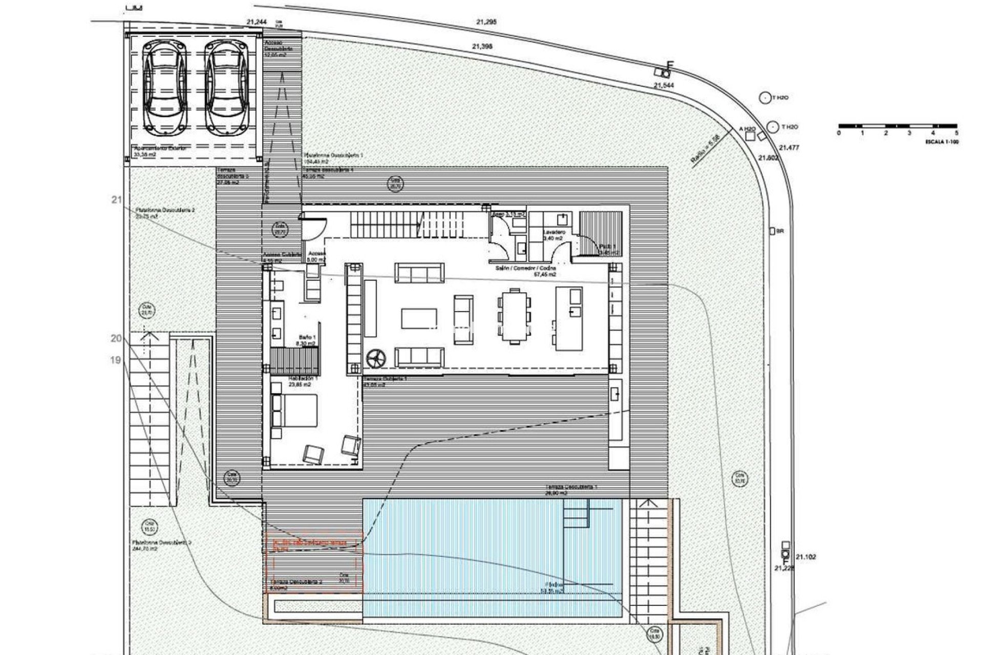
Le rez-de-chaussée abrite un grand espace ouvert (57,45m2) comprenant le salon-salle à manger et la cuisine moderne entièrement équipée. À cet étage, il y a également une chambre spacieuse (24m2) avec salle de bain attenante, des toilettes pour les invités et une buanderie adjacente à la cuisine. L'espace extérieur bénéficie d'une magnifique piscine à débordement de 59,55m2, d'un porche avec barbecue intégré et d'une terrasse ouverte pour profiter du soleil.
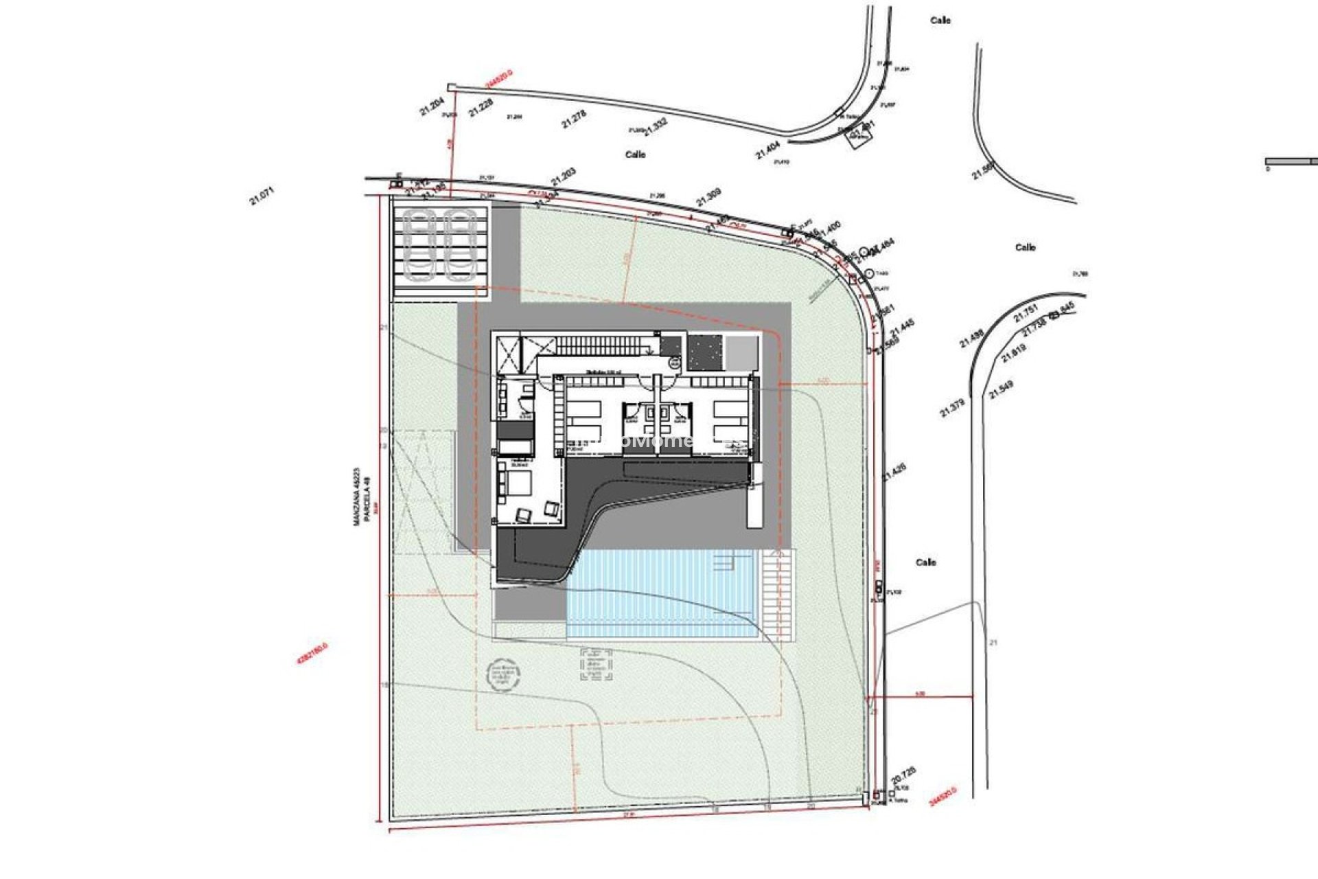
L'étage supérieur comprend 3 chambres avec salles de bains attenantes et accès à une terrasse ensoleillée. La villa est équipée d'un chauffage par le sol, d'un système de climatisation par conduits et de carreaux de sol en porcelaine de grand format. Il dispose d'un parking couvert de 33,35m2.