Située dans l'un des quartiers les plus centraux et recherchés de La Duquesa, cette maison mitoyenne bien positionnée avec vues panoramiques sur la mer offre un équilibre parfait entre confort quotidien et douceur de vivre en bord de mer. La plage, la marina, les restaurants, cafés et commodités locales sont accessibles à pied, vous permettant de profiter pleinement de la Costa del Sol sans dépendre de la voiture.
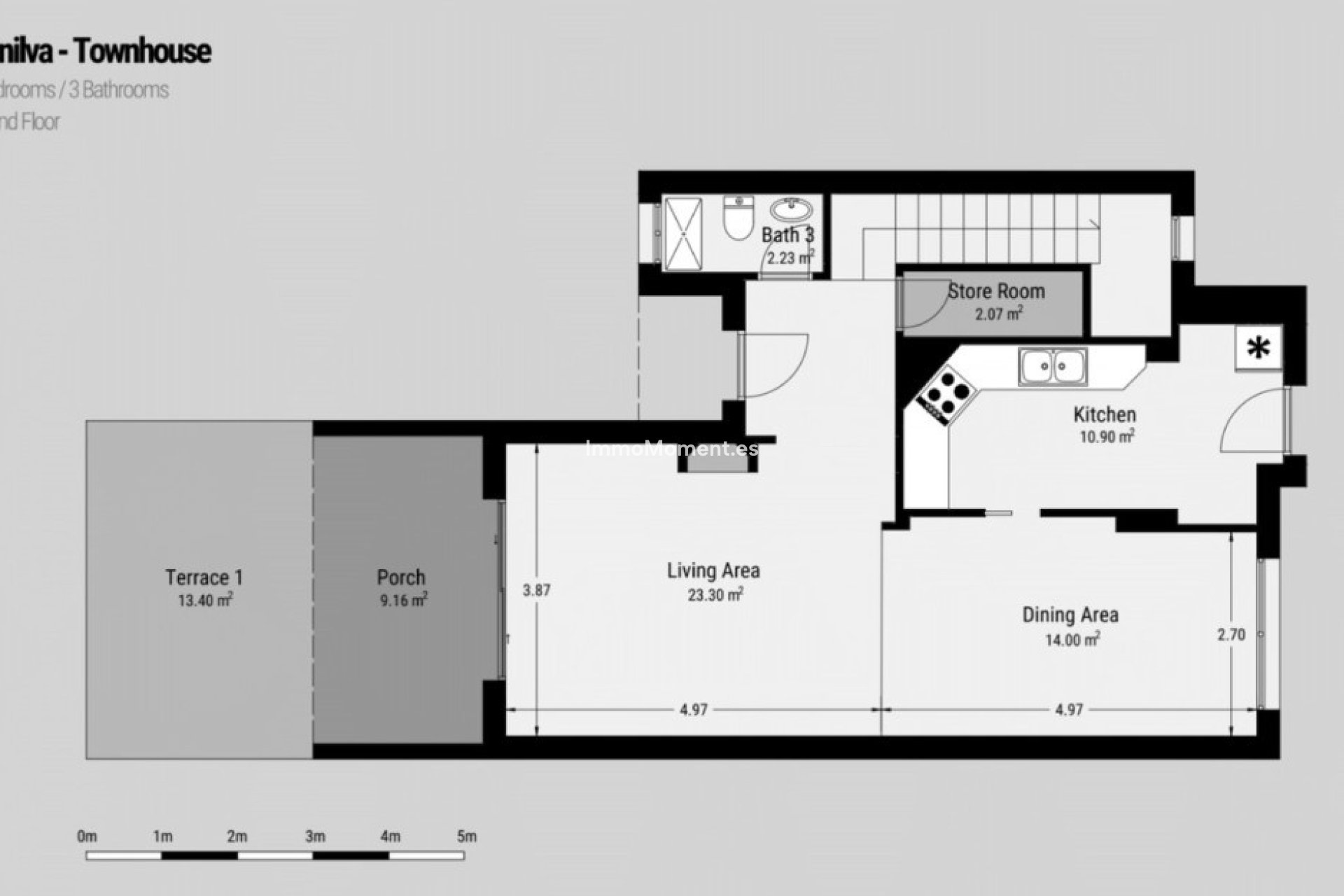
Répartie sur deux niveaux, la propriété propose un agencement pratique et confortable avec trois chambres et trois salles de bains, idéal pour les familles, les invités ou une utilisation flexible en résidence secondaire. L'espace de vie principal s'ouvre naturellement sur les extérieurs, où les vues dégagées sur la mer font partie du quotidien — que ce soit pour un café le matin ou pour admirer la pleine lune au-dessus de la Méditerranée le soir.
Les résidents bénéficient de deux piscines communes bien entretenues et de jardins paysagers, créant une atmosphère conviviale tout au long de l'année. La maison dispose également d'une licence touristique , offrant une flexibilité supplémentaire pour des locations saisonnières occasionnelles.
Alliant espace, vues et emplacement privilégié, cette maison de ville à La Duquesa est un excellent choix pour y vivre toute l'année ou pour des vacances au bord de la mer.
L'aéroport de Málaga se trouve à environ 1 heure, tandis que l'aéroport de Gibraltar est accessible en 30 minutes.