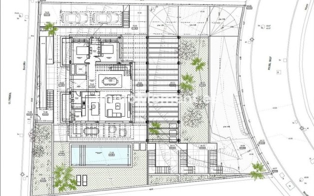
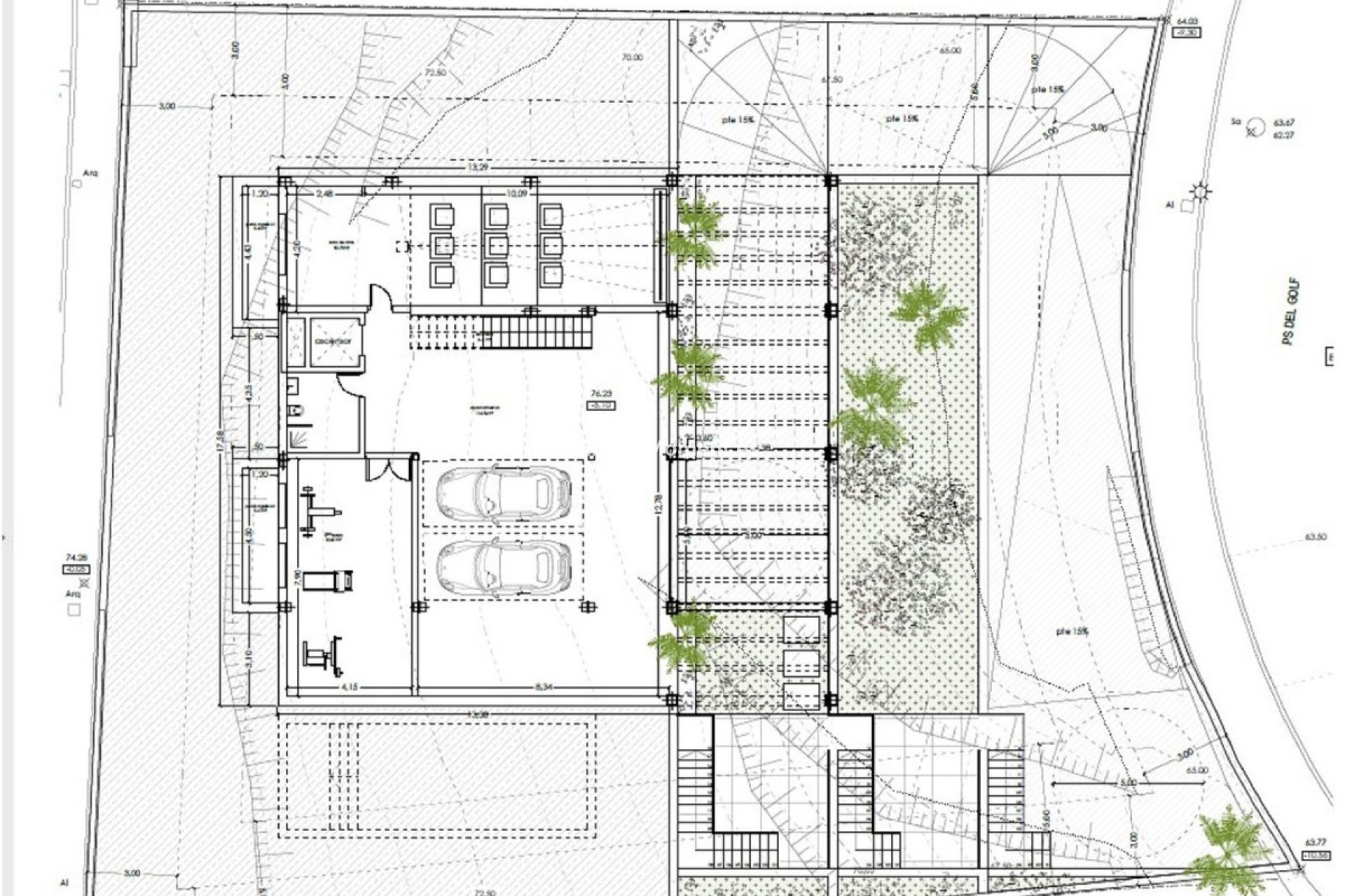
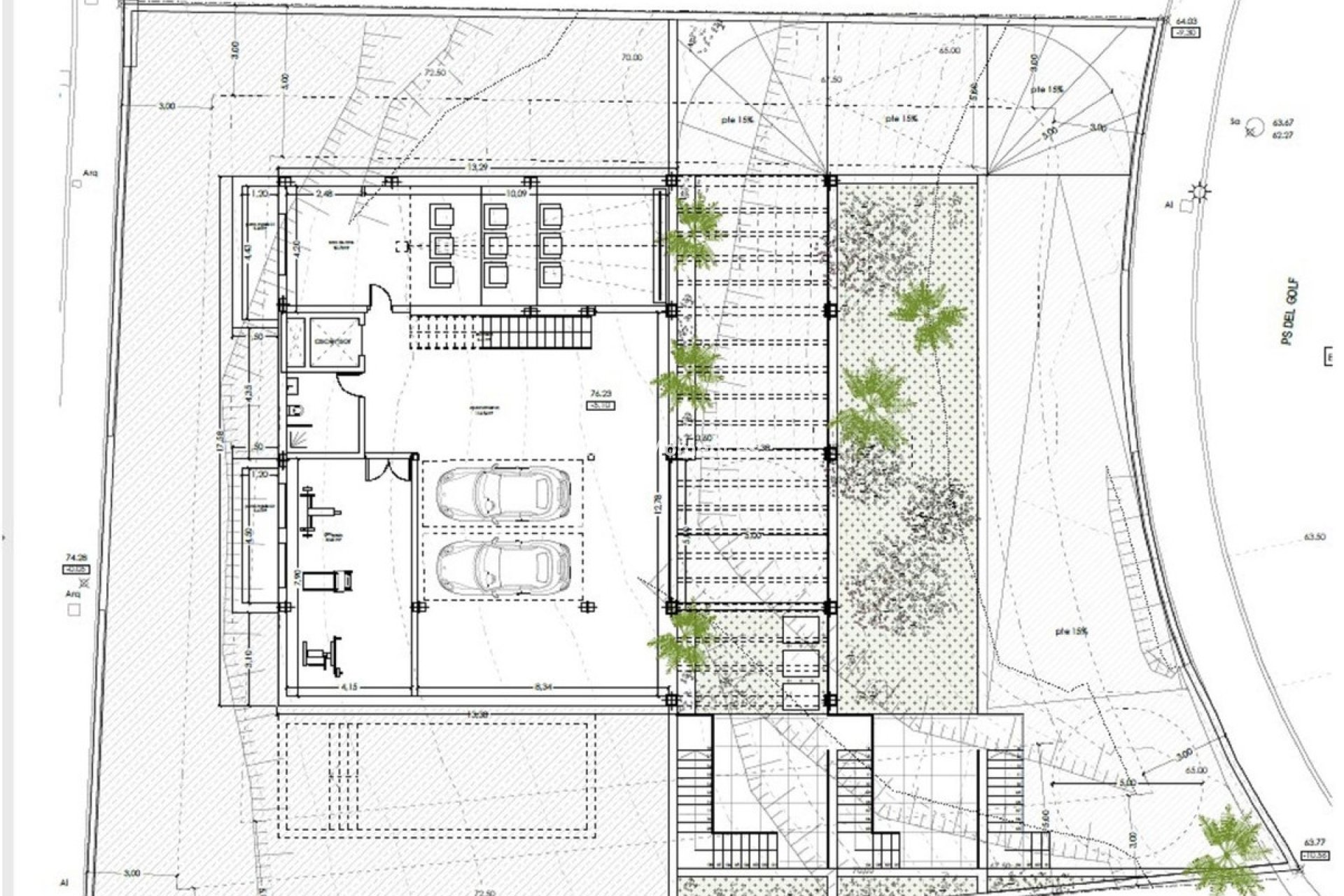
Terrain constructible à Elviria, dans la célèbre zone de Santa María Golf, à deux pas du terrain de golf et de toutes les commodités, très bien desservi à quelques minutes de Marbella et de Puerto Banús ainsi que de la plage. Il est accessible par deux rues.
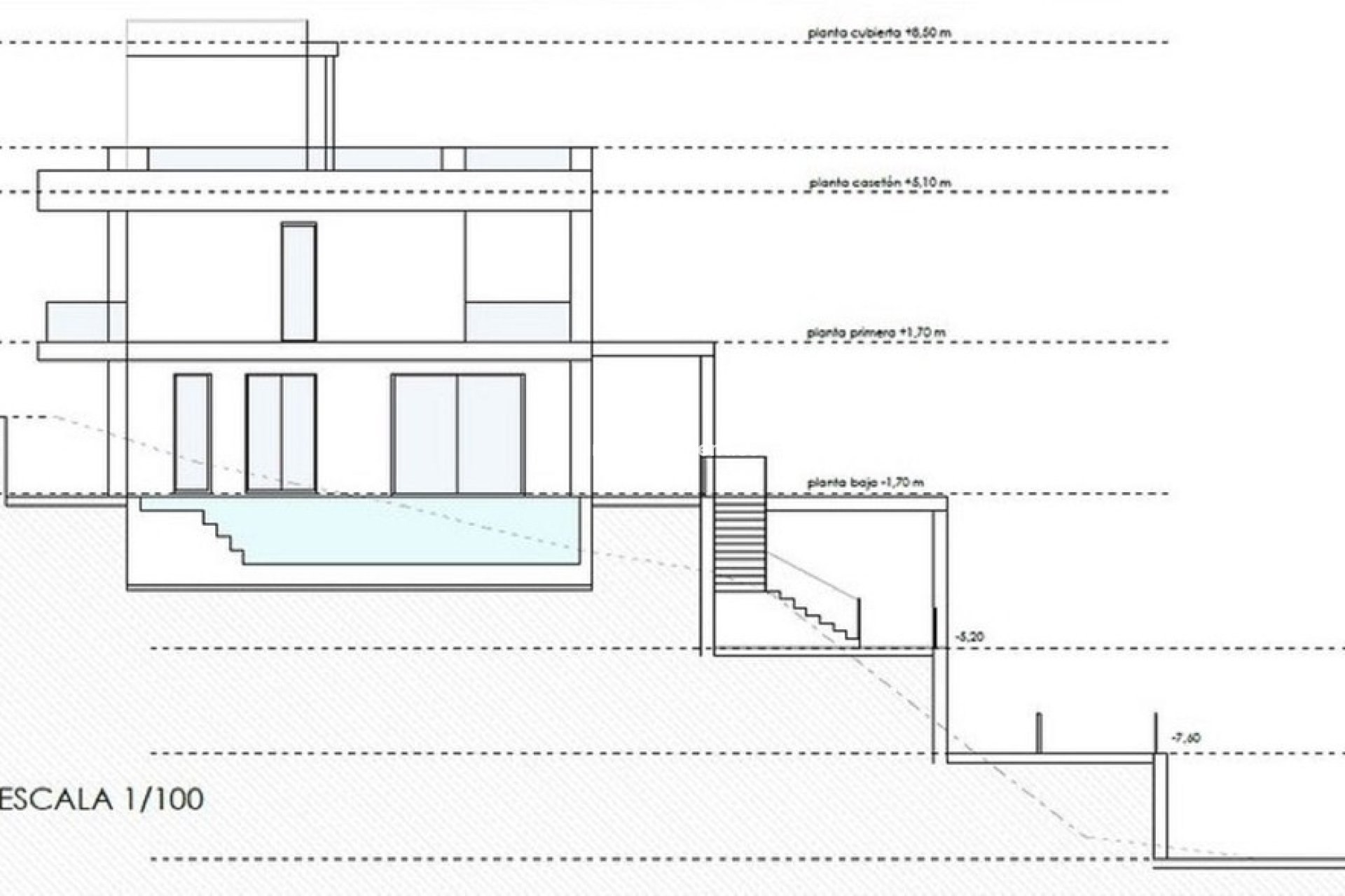
Avec une capacité de construction de 30%, adaptée à une villa individuelle de 7,5 mètres de hauteur, permettant une construction de 326 m2 + sous-sol + terrasses + porches.
Un projet avec license est disponible pour la construction d'une villa d'un total de 484,53 m2 sur 4 étages, où l'étage principal aurait une entrée donnant accès à un grand salon-salle à manger avec une cuisine ouverte, une buanderie et de grandes baies vitrées donnant directement sur les terrasses, les jardins et la piscine. Il comprendrait également deux chambres et deux salles de bains, un dressing, et l'accès au premier étage par l'escalier ou l'ascenseur, où il y aurait trois autres chambres et deux salles de bains, toutes avec dressing et terrasses. De plus, depuis cet étage, il y aurait un accès à un grand solarium avec un espace détente, un barbecue, un jacuzzi et une vue panoramique incroyable.
Le sous-sol comprendrait une salle de sport, une salle de bains, une salle de cinéma, une cave à vin et un garage privé pour plusieurs voitures. De plus, il y aurait deux cours intérieures offrant une lumière naturelle, ce qui le rendrait très lumineux.
Les espaces extérieurs seraient entourés de jardins et d'une piscine avec des zones de terrasses couvertes et découvertes.