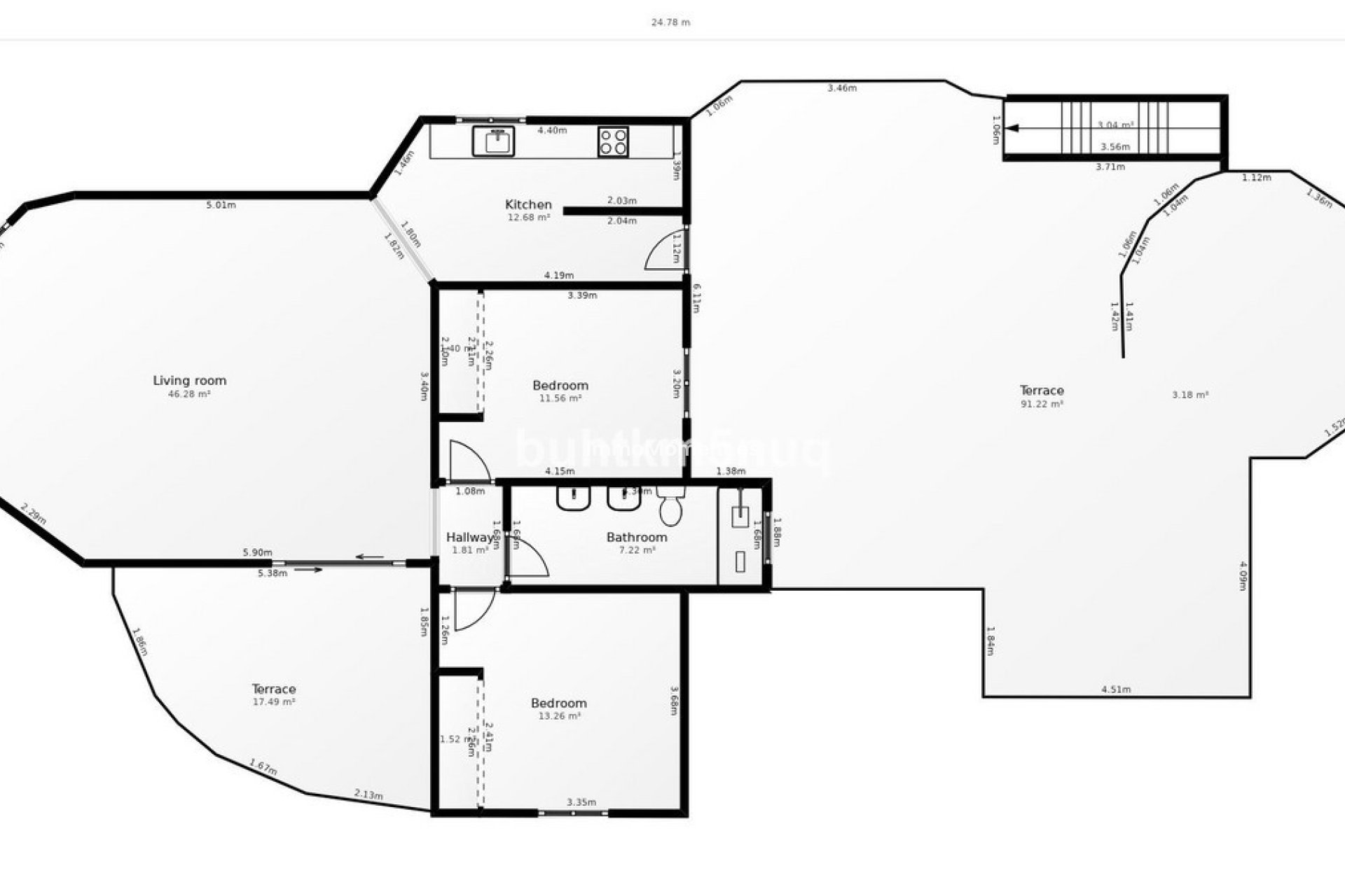
Deze moderne gerenoveerde villa ligt midden in het prachtige gebied van Benissa-Moraira.~De villa biedt drie ruime appartementen, elk met twee slaapkamers en een eigen terras. Deze moderne leefruimtes zijn volledig uitgerust met keukens, gezellige woonkamers met open haard en stijlvolle badkamers.~~Alle appartementen zijn voorzien van airconditioning en veilig parkeren met een handige carport. Geniet van de buitenlucht met twee zwembaden en een ingebouwde barbecue, perfect voor het ontvangen van gasten.~~Omringd door een prachtig aangelegde tuin, gevuld met palmbomen, citroenbomen en diverse planten, biedt deze charmante woning een sereen toevluchtsoord voor potentiële kopers.