Ontdek deze prachtige vrijstaande villa in Moraira, gelegen op een unieke locatie naast een beschermd groen gebied, wat zorgt voor een onbelemmerd uitzicht en volledige privacy. Met zuidelijke ligging, is deze woning van 220 m² gebouwd op een perceel van 1.000 m² de perfecte investering voor degenen die de zon en het buitenleven waarderen.
Hoogtepunten van de woning:
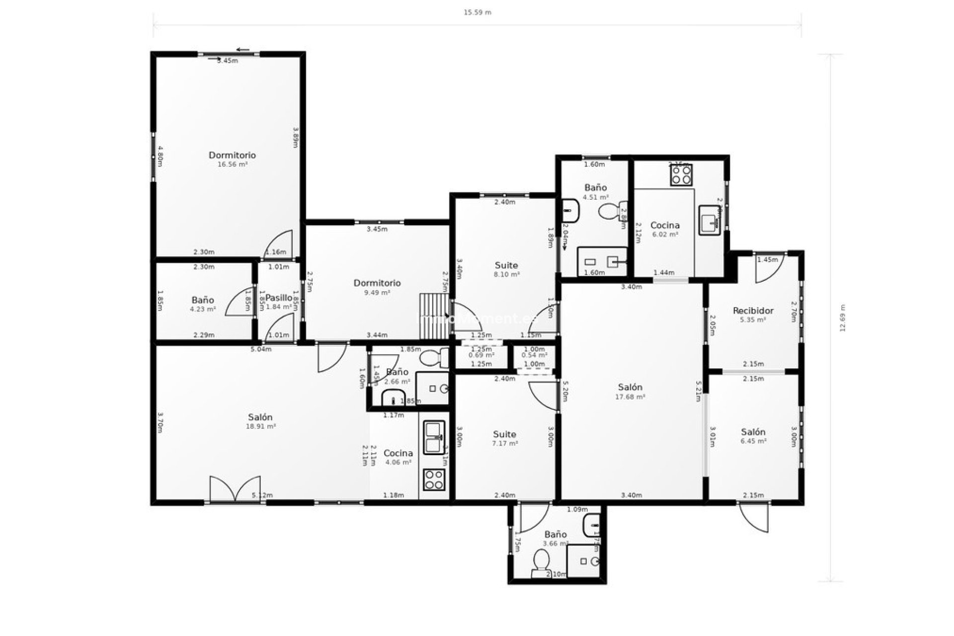
Strategische Locatie: Slechts 2,5 km van het centrum van Moraira en zijn stranden (El Portet, L'Ampolla).Luxe Buitengebied:Gigantisch Zwembad: Wateroppervlak van 42 m², boven het gemiddelde.Zomerkeuken: Volledig uitgerust met barbecue, gootsteen en koelkasten, geschikt voor grote bijeenkomsten.Zuidelijke Oriëntatie: Garantie voor zon vanaf zonsopgang tot zonsondergang, ideaal om van de winter aan de Costa Blanca te genieten.Tropische Tuin: Volwassen begroeiing die zorgt voor koelte en privacy.Flexibele Binnenindeling (4 Slp | 3 Badkamers): De woning is ingedeeld om verschillende woonmogelijkheden te bieden:
Begane Grond: Heldere woonkamer-eetkamer, open keuken, hoofdslaapkamer en toegang tot een terras met panoramisch uitzicht.Slaap/Gastenruimte: Twee extra suiteslaapkamers (met eigen badkamer) die met elkaar verbonden zijn, ideaal voor gezinnen met jonge kinderen.Onafhankelijk Appartement: Verbonden met het huis maar met de mogelijkheid van aparte toegang, te voorzien van een eigen keuken, badkamer en slaapkamer. Perfect voor vakantieverhuur of gasten.Extra's en Opslag:
Uitgebreide dakterras met vrij uitzicht.Onafhankelijke wasruimte en grote opbergruimte (bergruimte) op het lagere niveau.Buiten douche en ruime terrassengebieden.Deze villa heeft het allemaal: strategische locatie, verhuurmogelijkheden en een buitenruimte die moeilijk te evenaren is in deze prijsklasse. Woningen met deze oriëntatie en privacy gaan snel in Moraira.
Kun je je voorstellen hier te wonen? Stop met het verbeelden en kom het zelf bekijken. Neem vandaag nog contact op met ons team om een privé-bezoek te regelen en ontdek het echte potentieel van deze mediterrane parel. Jouw nieuwe leven onder de zon begint met een telefoontje.