This exceptional modern penthouse in Mar de Cristal captures the perfect balance between contemporary luxury and laid-back coastal living. Ideally positioned just 500 meters from the beach, the property showcases elegant design, high-end features, and breathtaking views, offering a sophisticated retreat in one of Spain's most tranquil seaside settings.
The penthouse apartment features a bright, spacious open-plan living room and kitchen that seamlessly connects to a south-facing terrace, creating the ideal setting for indoor-outdoor living. Floor-to-ceiling sliding glass doors on three sides flood the interior with natural light and offer panoramic views of the surrounding landscape. The modern kitchen is sleek and functional, complete with a stylish breakfast bar, perfect for both everyday cooking and casual dining. Step out onto the sun-drenched terrace overlooking the communal gardens and pool, an inviting space to unwind, entertain, or simply enjoy the warm Mediterranean climate.
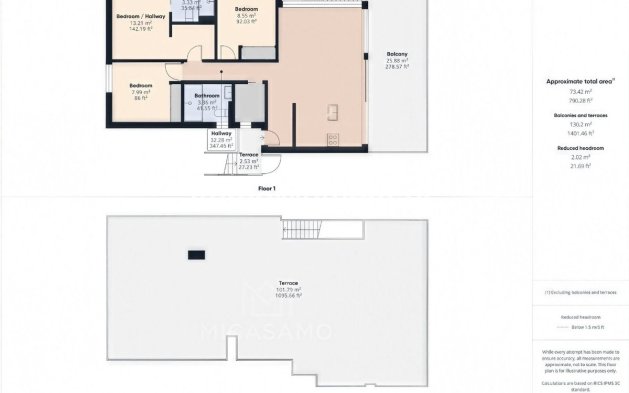
One of the most impressive features of this penthouse is its expansive private rooftop solarium, an exclusive retreat designed for relaxation and enjoyment. Complete with a stylish chill-out lounge and a luxurious hot tub, it offers sweeping views of the sea and surrounding mountains. Whether you're entertaining guests, soaking up the sun, or enjoying a quiet evening under the stars, this rooftop space elevates the coastal lifestyle to a new level of comfort and sophistication.
The residence is set within a well-maintained complex featuring beautifully landscaped communal gardens and a spacious swimming pool, offering a peaceful, resort-like atmosphere for residents to relax and recharge. Adding to its appeal, the property is just 500 meters from the beach, allowing for easy, walkable access to the coastline for morning strolls, sunbathing, or a refreshing dip in the sea whenever you please.
Mar de Cristal is a picturesque coastal town known for its peaceful atmosphere and relaxed seaside charm. Despite its tranquil setting, it offers easy access to local amenities, restaurants, and a variety of leisure activities. For golf enthusiasts and those seeking world-class facilities, the renowned La Manga Club resort is just a 10-minute drive away, providing championship golf courses, tennis courts, fine dining, and a luxury spa experience.
The property can be sold partly or fully furnished, this can be negotiated.