Dieses hervorragende Baugrundstück bietet einen atemberaubenden Panoramablick auf das Meer und die Berge. Die beiden Nachbargrundstücke sind bereits verkauft. Das Grundstück grenzt an eine Grünfläche, sodass niemand davor bauen und die herrliche Aussicht in irgendeiner Weise beeinträchtigen kann.
Das 1.401 m² große Grundstück befindet sich in der Nähe des Golfclubhauses und verfügt über Strom, Telefon, Wasser, Abwasser und einen 24-Stunden-Sicherheitsdienst.
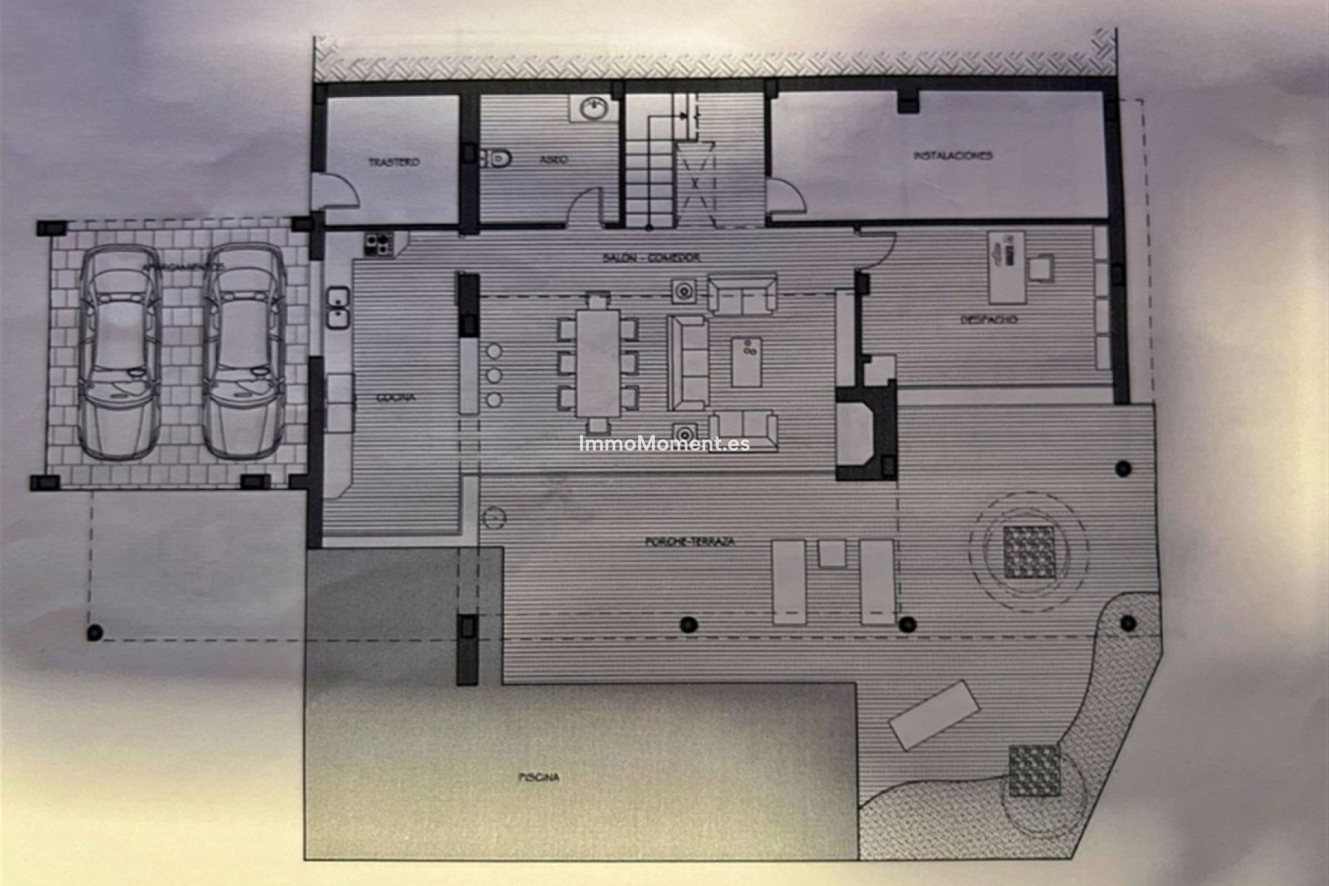
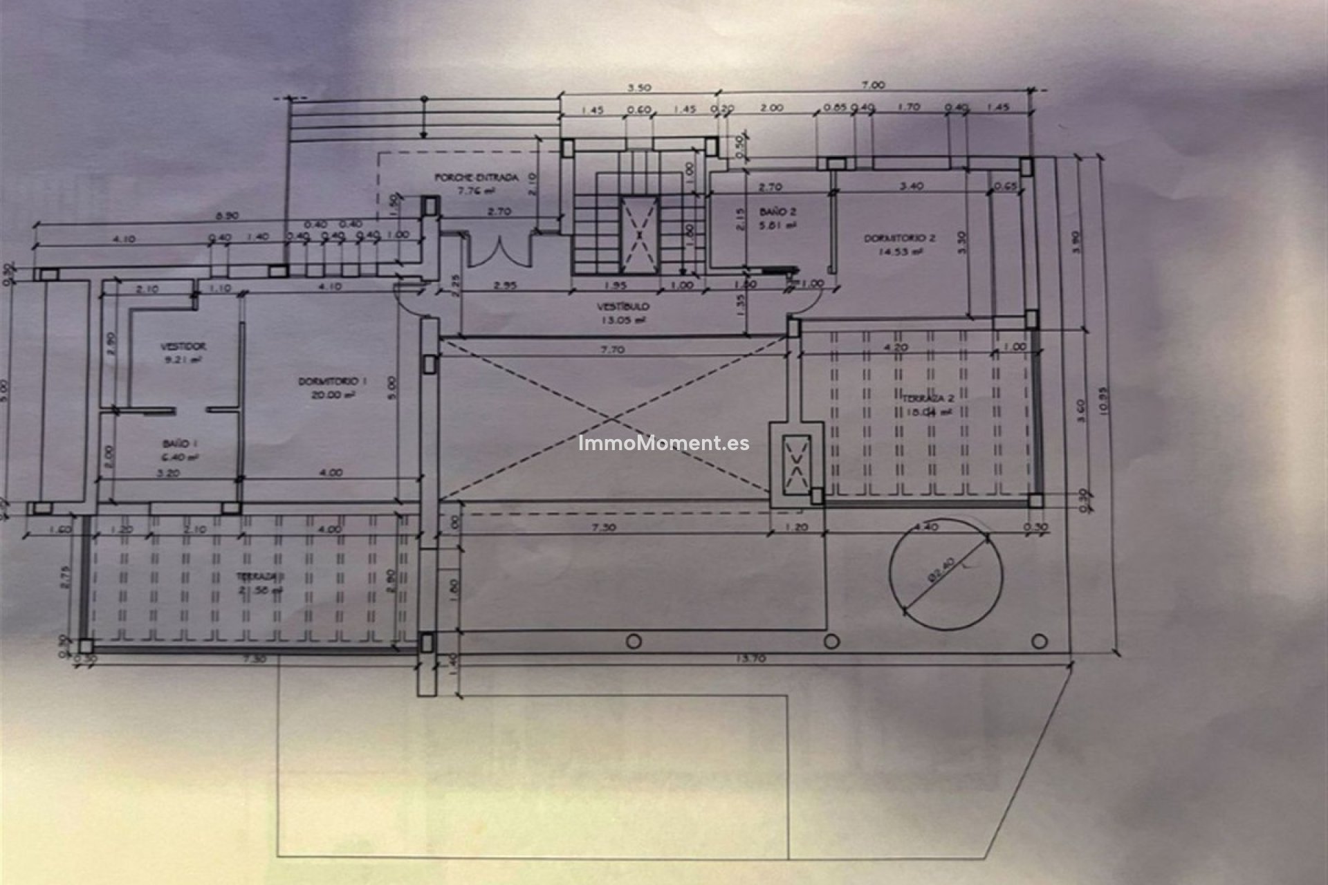
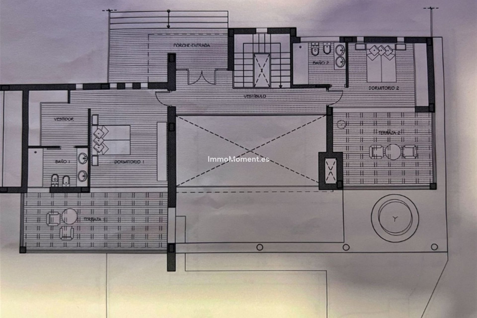
Die aktuellen Bauvorschriften erlauben den Bau Ihrer freistehenden Villa mit 265 m² Wohnfläche + nicht überdachten Terrassen, Pool und Keller.
Ausrichtung: Ost, Südost, Süd.
Maximale Höhe: 7 m, wodurch zwei Etagen plus Keller, Garage und Pool entstehen.
Das La Cala Resort ist ein Golfkomplex in der Gemeinde Mijas in der Provinz Málaga. Er umfasst drei 18-Loch-Golfplätze (Campo América, Campo Asia und Campo Europa), einen 6-Loch-Par-3-Pitch-&-Putt-Platz und die La Cala Golf Academy. Außerdem gibt es das 4-Sterne-Hotel La Cala Spa Hotel. Die drei 18-Loch-Plätze wurden von Cabell B. Robinson entworfen und bieten unterschiedliche Schwierigkeitsgrade. Sowohl das Hotel als auch die weiteren Einrichtungen sind im traditionellen andalusischen Stil gehalten. Es wurde 1989 eröffnet. Málaga und Marbella sind in ca. 30 Autominuten erreichbar. In der Nähe des Anwesens befindet sich die berühmte deutsche Schule La Mairena! Für weitere Informationen kontaktieren Sie uns gerne.