This superb building plot offers the most outstanding panoroamic sea and mountain views. The 2 next door plots have already been sold and the plot backs onto a green zone meaning that nobody can build infront and in any way obstruct the wonderful views.
The plot of 1.401m2 is located near the golf clubhouse, with services of: electricity, telephone, water, sewage, and 24 hour on site security.
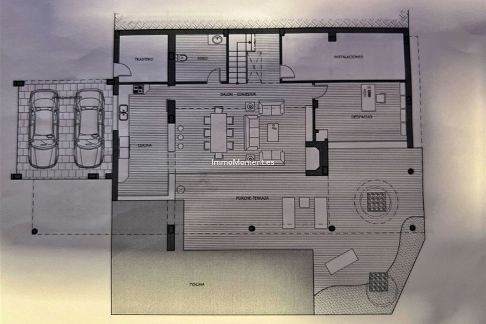
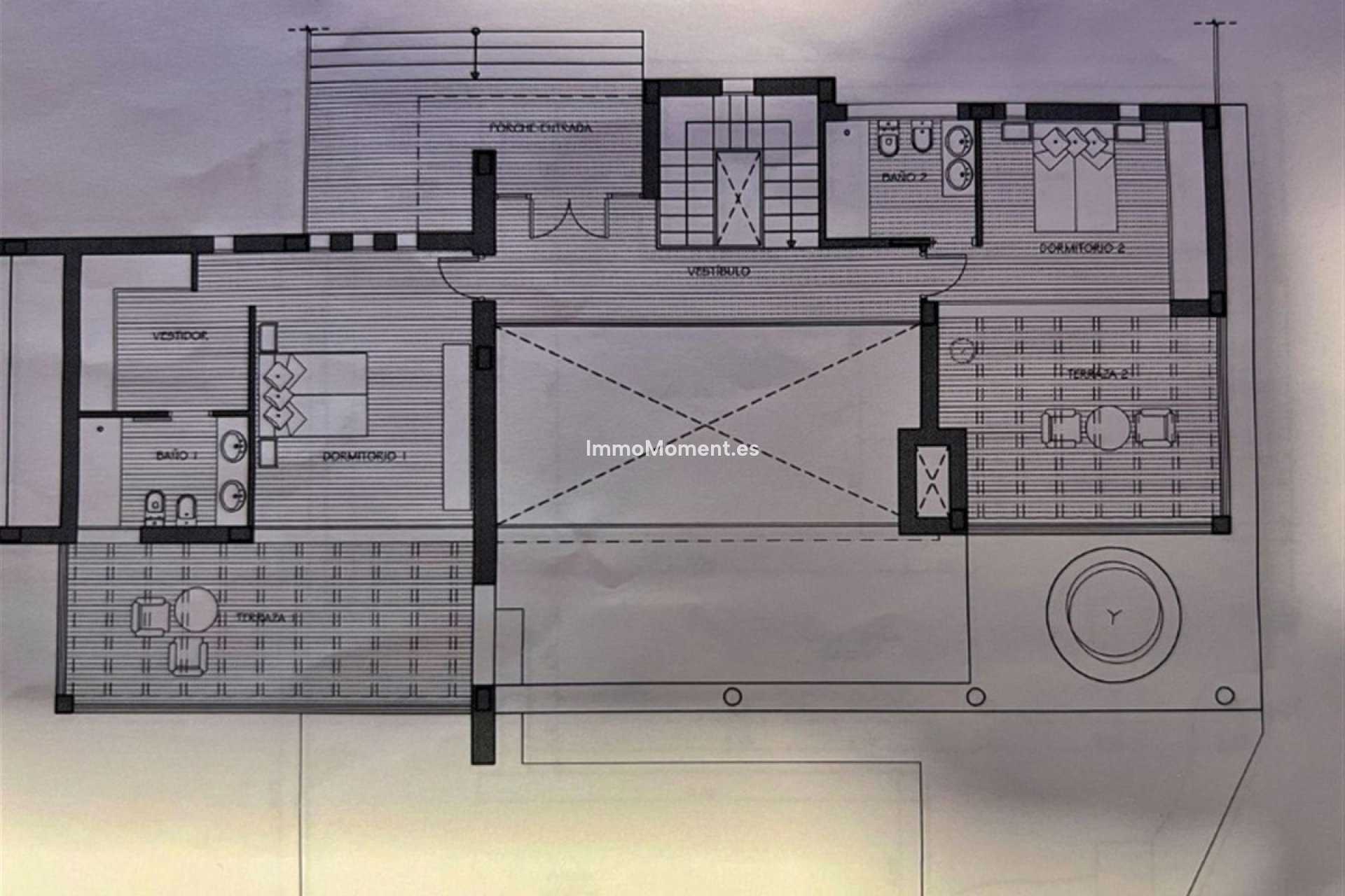
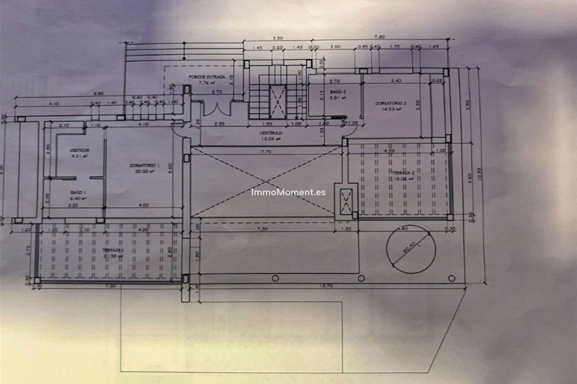
Current building regulations allow you to build your detached villa of 265 m2 + uncovered terraces, pool and basement
Orientation : East, South East, South.
Maximum height: 7m allowing 2 floors plus basement area, garage and swimming pool
The La Cala Resort is a golf complex in the municipality of Mijas and in the province of Málaga. It includes three 18-hole golf courses (Campo América, Campo Asia and Campo Europa), a 6-hole par 3 pitch & putt course and a La Cala Golf Academy. It also has a four-star hotel La Cala Spa Hotel.
The three 18-hole courses were designed by Cabell B. Robinson and have different levels of difficulty.
Both the hotel and the other facilities are in traditional Andalusian style. It was inaugurated in 1989. Malaga and Marbella can be reached in about 30 minutes by car.
Near the property is the famous German school la Mairena !
Please do not hesitate to contact us for further information.