VIVE SOBRE EL MEDITERRÁNEO: Parcela Exclusiva en Santangelo, Benalmádena
¿Buscas el lugar perfecto para materializar tu proyecto de vida? No busques más.
Presentamos una oportunidad única en una de las zonas con mayor proyección y demanda de la Costa del Sol.
Esta parcela de 676 m² en Santángelo no es solo un terreno;
es el lienzo en blanco donde se funden la arquitectura moderna,
la exclusividad y las mejores vistas panorámicas al mar.
Lo que hace a esta parcela "Especial" Vistas Infinitas,
Elevada estratégicamente para garantizar una panorámica ininterrumpida del mar Mediterráneo y la costa.
Licencia y Proyecto: Olvida las esperas interminables.
Esta parcela cuenta con licencia concedida,
permitiéndole comenzar la construcción de tu villa unifamiliar de inmediato.
Situada en una zona residencial consolidada, tranquila y segura,
pero con acceso inmediato a la autovía (AP-7),
conectándola con el Aeropuerto de Málaga en 10 min y con Marbella en 25 min.
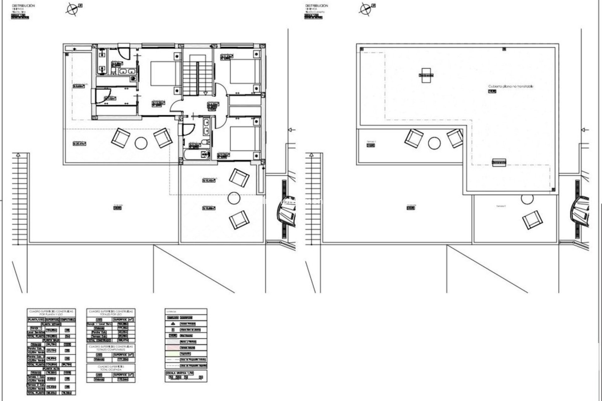
El terreno permite una edificación de gran volumen,
ideal para una villa de lujo con amplias terrazas, piscina infinity y jardines privados.
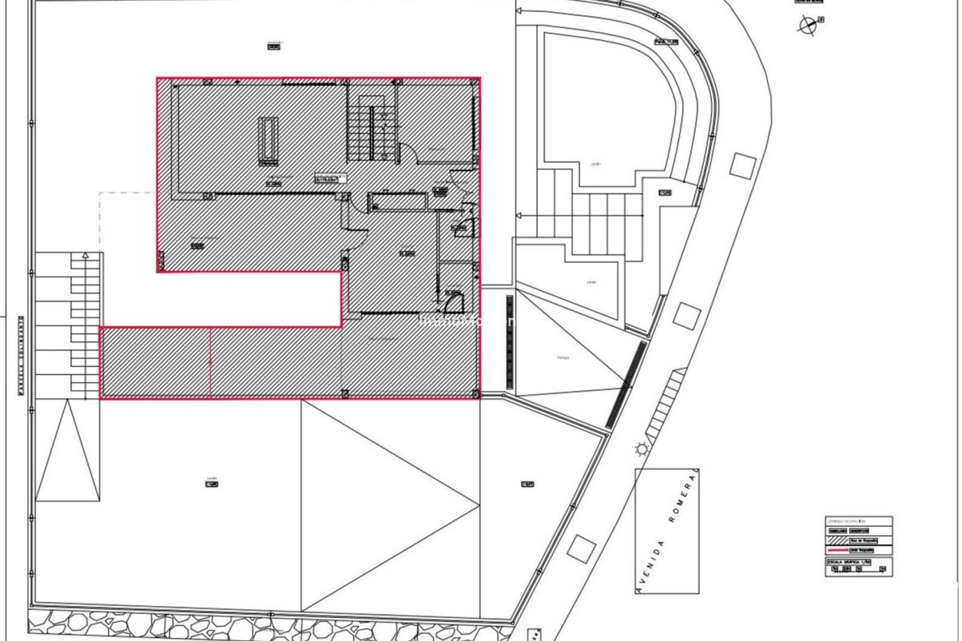
Detalles Técnicos:
Superficie: 676 m²
Edificación Unifamiliar (Chalet independiente).
Suelo urbano con todas las acometidas a pie de parcela.
"Despertar cada mañana con el azul del mar en el horizonte ya no es un sueño, es tu próxima realidad."
No pierda la oportunidad de adquirir uno de los últimos terrenos disponibles con estas características en Santángelo.
El valor de la zona sigue al alza, asegurando una inversión inteligente y rentable.
¡Contacta hoy mismo para más información o para visitar el terreno!
Tu futuro hogar en Benalmádena te está esperando.