LIVE ON THE MEDITERRANEAN: Exclusive Plot in Santangelo, Benalmádena
Are you looking for the perfect place to realise your life project? Look no further.
We present a unique opportunity in one of the most promising and sought-after areas of the Costa del Sol. This 676 m² plot in Santangelo is not just a piece of land; it is a blank canvas where modern architecture, exclusivity and the best panoramic sea views come together.
What makes this plot 'special' Infinite views, strategically elevated to ensure uninterrupted panoramic views of the Mediterranean Sea and the coast.
Licence and Project: Forget endless waiting. This plot has a granted licence, allowing you to start building your detached villa immediately. Located in a consolidated, quiet and safe residential area, but with immediate access to the motorway (AP-7), connecting it to Malaga Airport in 10 minutes and Marbella in 25 minutes.
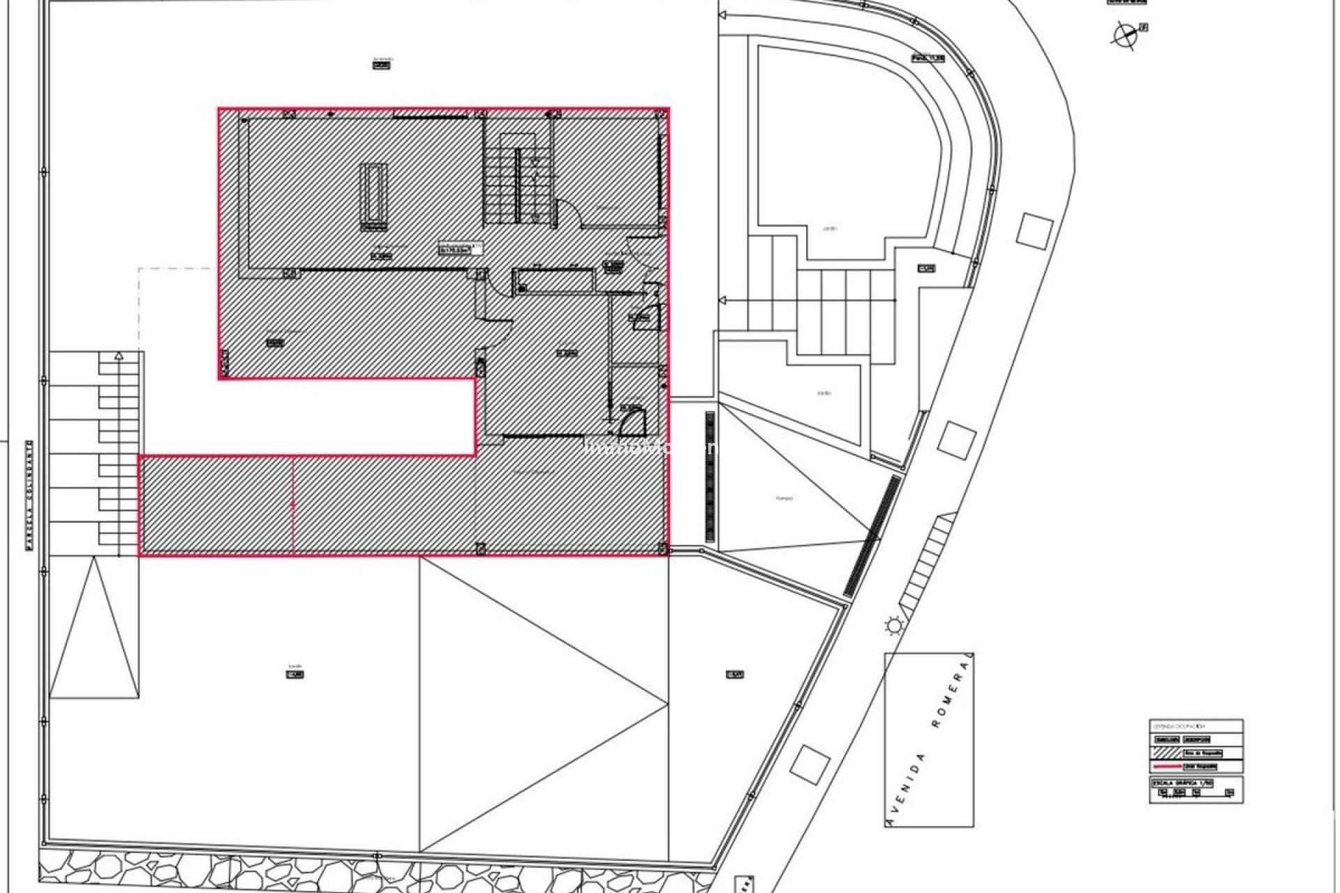
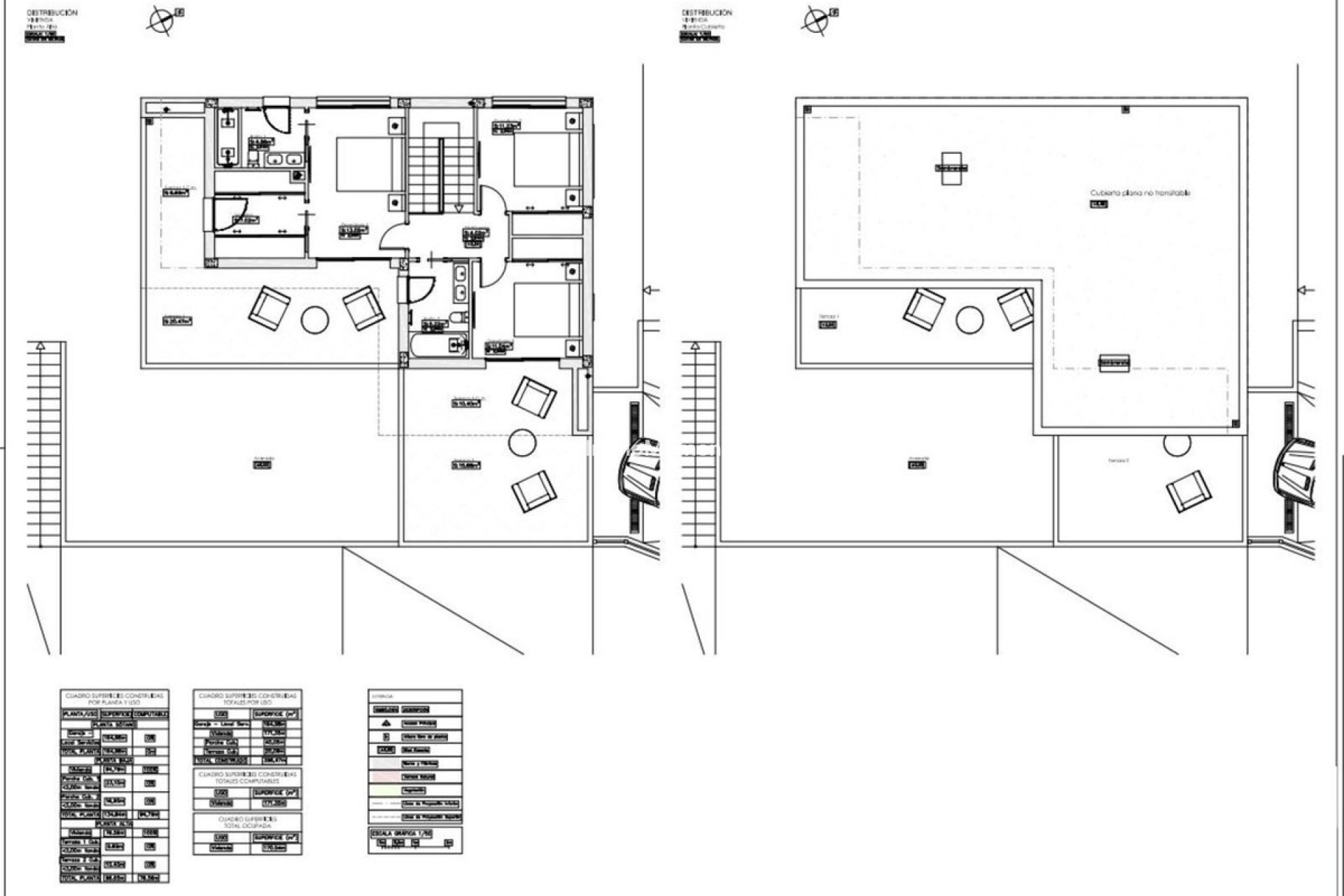
The land allows for a large building, ideal for a luxury villa with spacious terraces, an infinity pool and private gardens.
Technical Details:
Surface area: 676 m²
Detached house (independent villa).
Urban land with all connections at the foot of the plot.
'Waking up every morning to the blue sea on the horizon is no longer a dream, it is your next reality.'
Do not miss the opportunity to purchase one of the last plots of land available with these characteristics in Santángelo.
The value of the area continues to rise, ensuring a smart and profitable investment.
Contact us today for more information or to visit the plot! Your future home in Benalmádena is waiting for you.