El Encanto Andaluz se Encuentra con la Elegancia Nórdica en la Milla de Oro
Ubicado en la prestigiosa zona residencial de la Milla de Oro de Marbella, este hermoso adosado de estilo andaluz, recientemente renovado, combina a la perfección la arquitectura tradicional con interiores nórdicos contemporáneos, ofreciendo una combinación única de encanto, confort y funcionalidad.
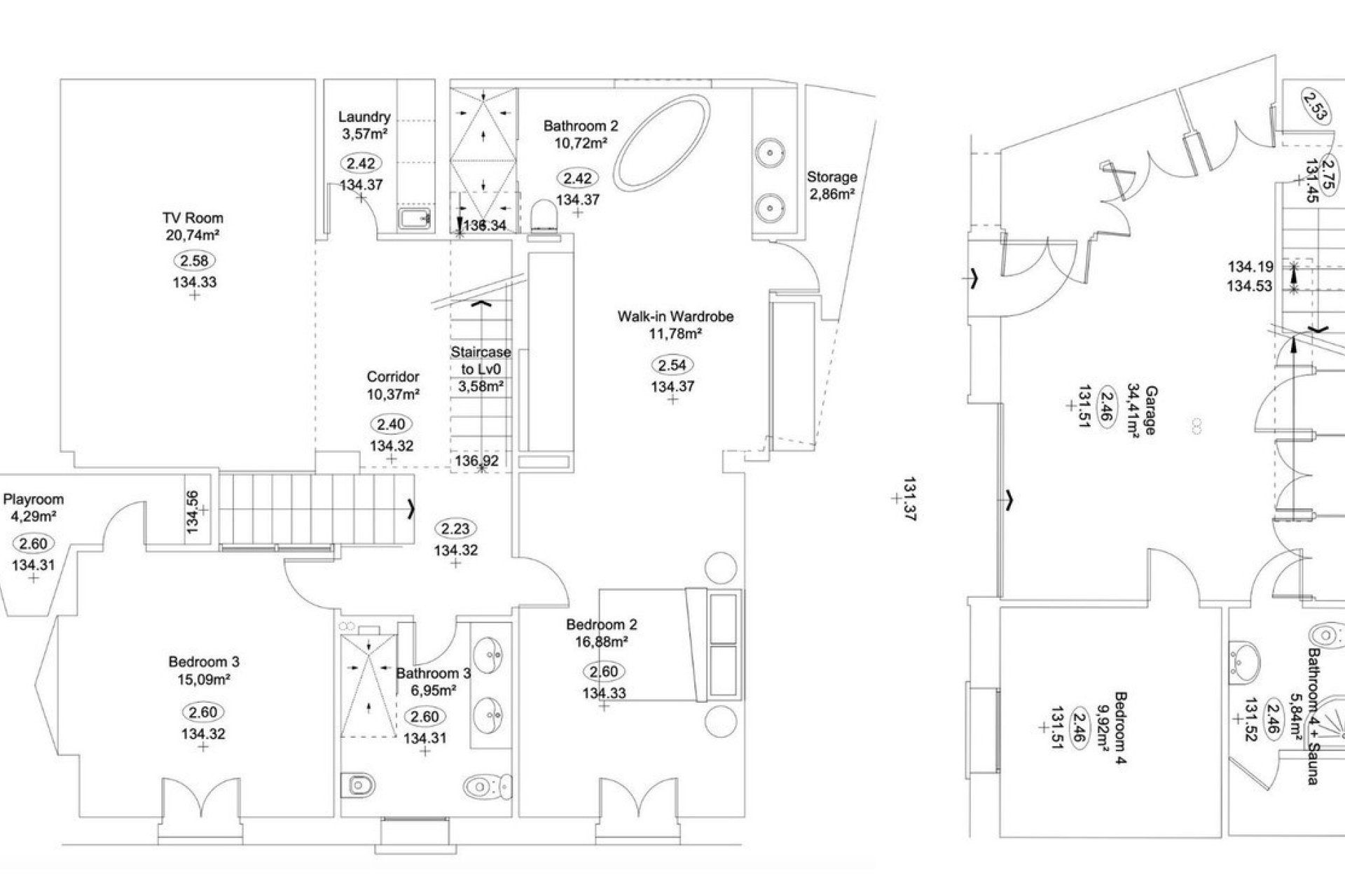
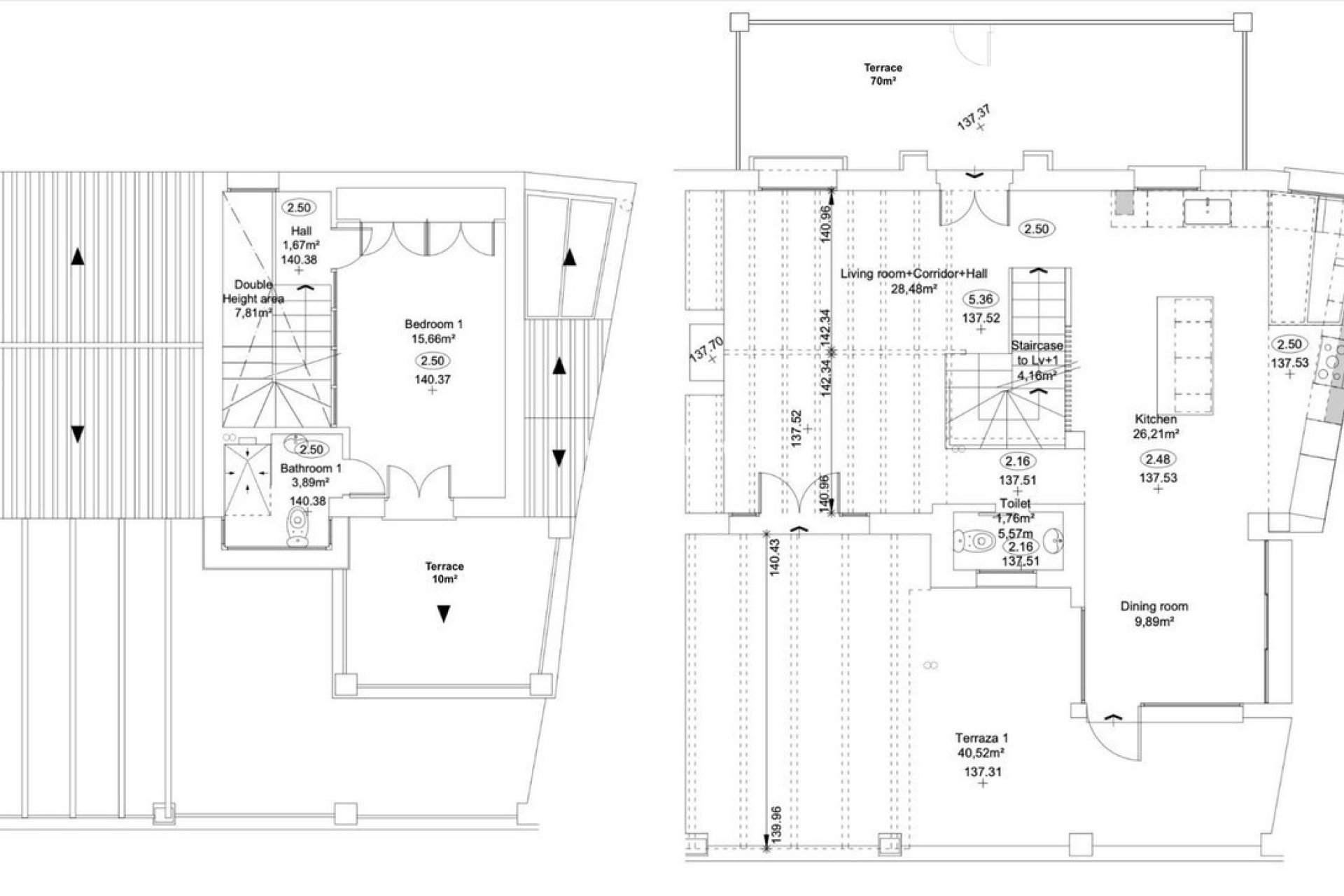
La propiedad le da la bienvenida a través de un acogedor porche de entrada, que conduce a una cálida y acogedora sala de estar con chimenea, un aseo para invitados y una moderna cocina de concepto abierto con una amplia zona de comedor. Toda la planta principal se abre a una amplia terraza orientada al sur con zona de comedor, barbacoa integrada y vistas al mar Mediterráneo, perfecta para disfrutar durante todo el año.
En la planta superior encontrará un dormitorio luminoso con terraza privada y vistas panorámicas al mar, además de un baño en suite completo.
En la planta inferior, una segunda sala de estar con chimenea y zona de televisión ofrece un espacio acogedor, junto con un lavadero, un amplio dormitorio principal con baño en suite y vestidor, un dormitorio infantil y un baño adicional.
La planta sótano agrega aún más valor con un dormitorio de invitados, una zona chill-out, un baño y una sauna privada, ideal para recibir invitados o crear un santuario de bienestar. Esta área también se puede convertir fácilmente en un garaje privado.
Esta casa decorada con mucho gusto ofrece mucho espacio distribuido en varios niveles, ideal para familias o para quienes buscan un hogar con carácter, confort y versatilidad, a solo minutos de las playas de Marbella, colegios internacionales y todas las comodidades de la Milla de Oro.
Para garantizar una alta eficiencia energética, esta casa utiliza paneles solares y cuenta con dos cargadores eléctricos para coches eléctricos. La calefacción por suelo radiante está instalada en toda la casa para mayor confort.
Visite esta casa hoy mismo y ¡DÉJENOS MOVERLE!