Le Charme Andalou Rencontre l'Élégance Nordique sur la Golden Mile
Située dans le prestigieux quartier résidentiel de la Golden Mile à Marbella, cette magnifique maison de ville de style andalou, récemment rénovée, combine harmonieusement l'architecture traditionnelle avec des intérieurs nordiques contemporains, offrant une combinaison unique de charme, de confort et de fonctionnalité.
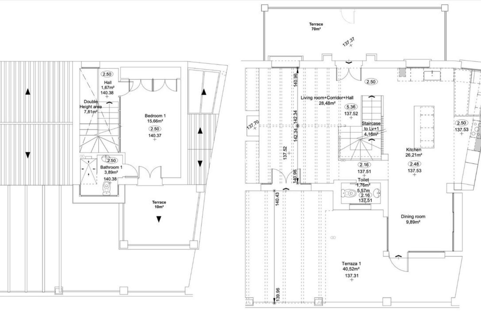
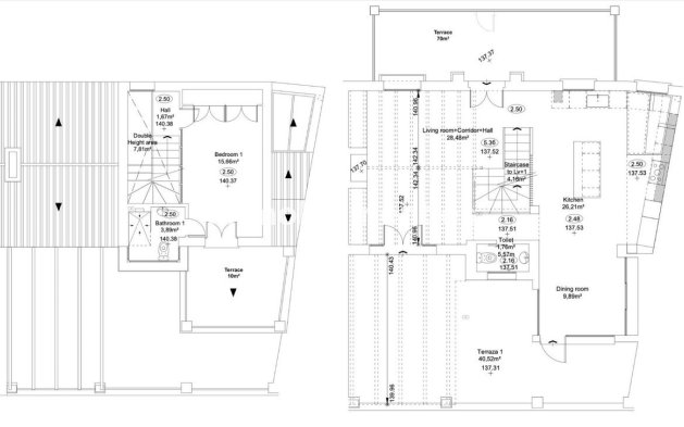
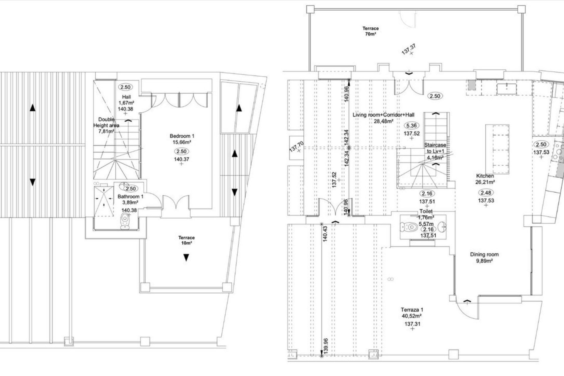
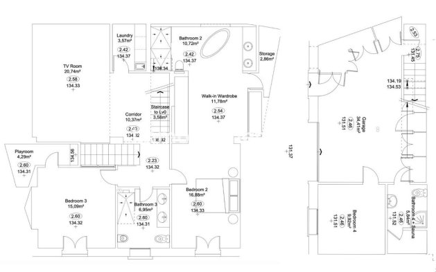
La propriété vous accueille par un porche cosy menant à un salon chaleureux avec cheminée, des toilettes invités et une cuisine moderne ouverte avec un grand espace salle à manger. L'ensemble du rez-de-chaussée s'ouvre sur une vaste terrasse orientée sud avec coin repas, barbecue intégré et vue sur la mer Méditerranée — idéale pour recevoir toute l'année.
À l'étage, vous découvrirez une chambre lumineuse avec terrasse privée et vue panoramique sur la mer, ainsi qu'une salle de bains en suite complète.
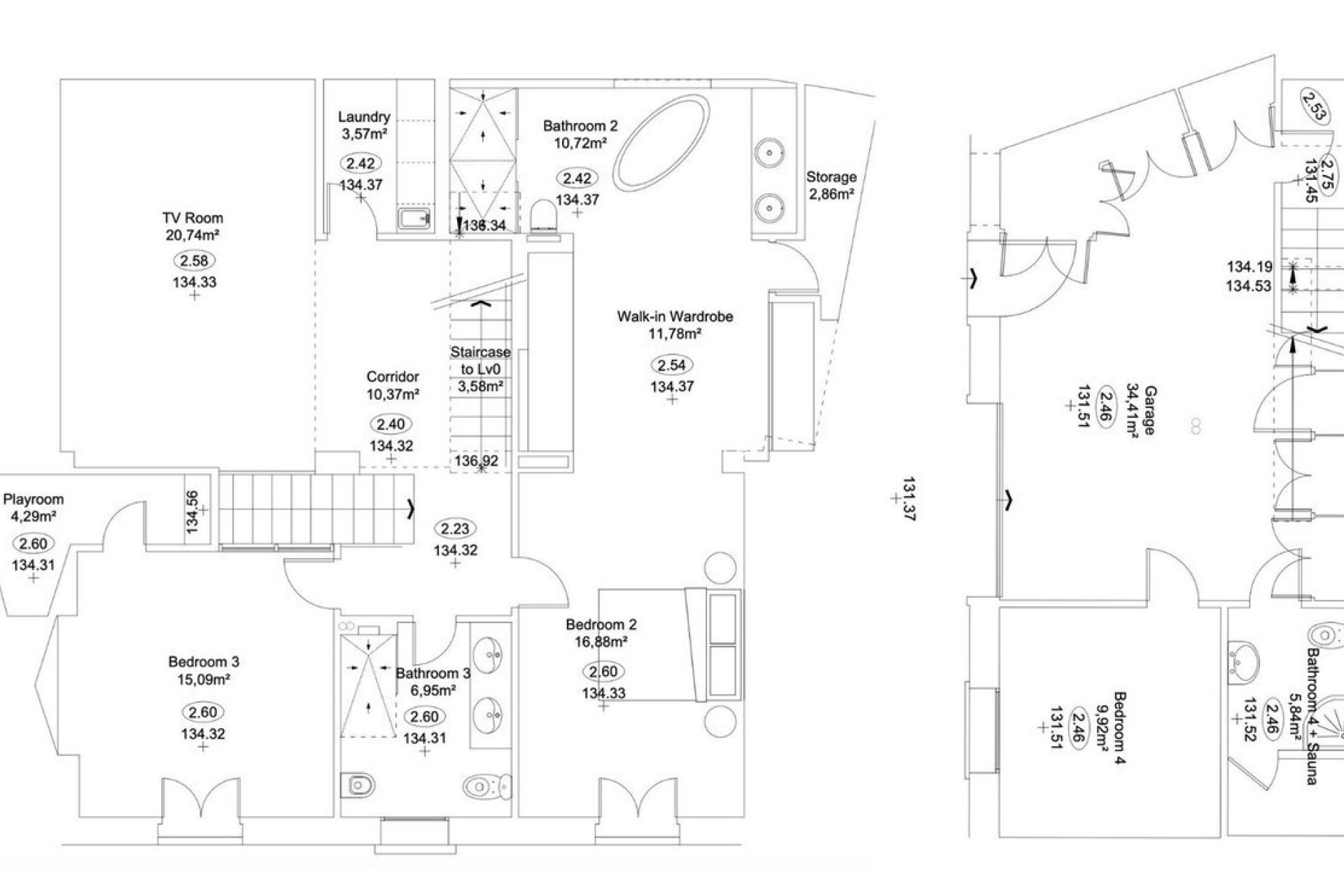
Au niveau inférieur, un second salon avec cheminée et coin TV offre un espace détente confortable, accompagné d'une buanderie, d'une spacieuse suite parentale avec salle de bains privative et dressing, d'une chambre d'enfants et d'une autre salle de bains.
Le sous-sol apporte une valeur ajoutée avec une chambre d'amis, un espace détente, une salle de bains et un sauna privé — parfait pour accueillir ou créer un sanctuaire de bien-être. Cet espace peut facilement être transformé en garage privé.
Cette maison décorée avec goût offre de beaux volumes sur plusieurs niveaux, idéale pour les familles ou pour ceux qui recherchent une maison avec du caractère, du confort et de la polyvalence — à seulement quelques minutes des plages de Marbella, des écoles internationales et de toutes les commodités de la Golden Mile.
Pour garantir une efficacité énergétique élevée, la maison utilise des panneaux solaires et dispose de deux bornes de recharge électrique pour voitures. Le chauffage au sol est installé dans toute la maison pour un confort optimal.
Venez visiter cette maison dès aujourd'hui et LAISSEZ-NOUS VOUS DÉMÉNAGER !