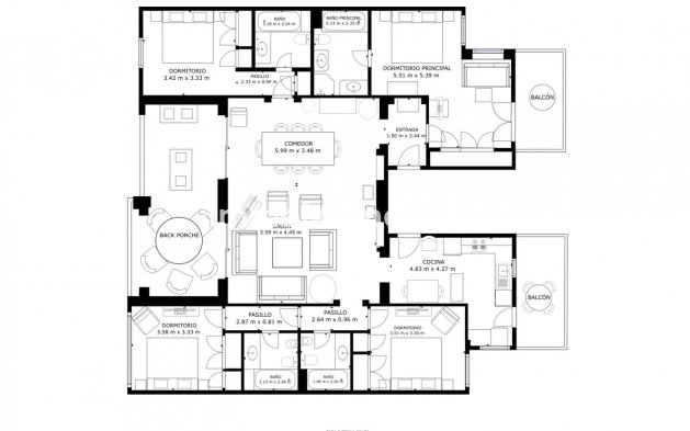
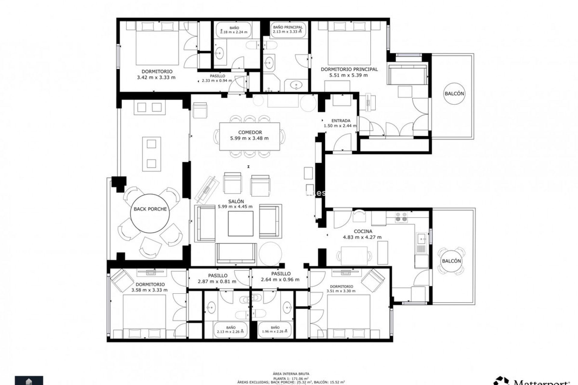
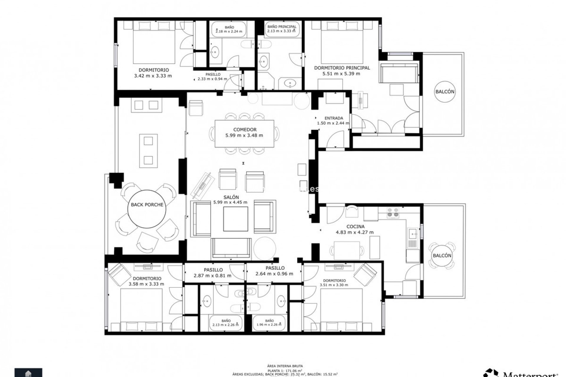
Este elegante apartamento, fruto de la unión de dos viviendas, ofrece un espacio único en una sola planta con 4 amplios dormitorios y 4 baños, dos de ellos en suite. Su distribución cuenta con dos entradas independientes: una con acceso directo a la cocina y otra que conduce a un luminoso hall de entrada, desde el cual se accede a un gran salón conectado con una amplia terraza cubierta, ideal para disfrutar de las relajantes vistas al campo de golf.
El dormitorio principal, de generosas dimensiones, dispone de terraza privada descubierta con orientación sur, perfecta para aprovechar el sol durante todo el año. La cocina, completamente equipada, se abre a una encantadora terraza exterior, ideal para desayunos, comidas y cenas al aire libre en familia o con amigos.
La urbanización ofrece jardines maduros, pista de pádel y piscina comunitaria, y se encuentra a escasos metros del conocido Centro Comercial Guadalmina, con supermercado, tiendas y una variada oferta gastronómica de prestigio internacional.
Incluye plaza de garaje en el mismo complejo.