Cette belle villa écologique contemporaine est un hors plan dans le beau quartier de Marbella Club Golf avec une vue imprenable sur le golf et la montagne et sera finie avec les spécifications les plus élevées possibles sur 3 étages.
Cette villa comprendra les éléments suivants :
Rez-de-chaussée : hall d'entrée à double hauteur, ascenseur, toilettes pour invités, grand salon/salle à manger avec cuisine ouverte, buanderie, dressing et bureau pouvant être converti en chambre à coucher avec salle de bains.
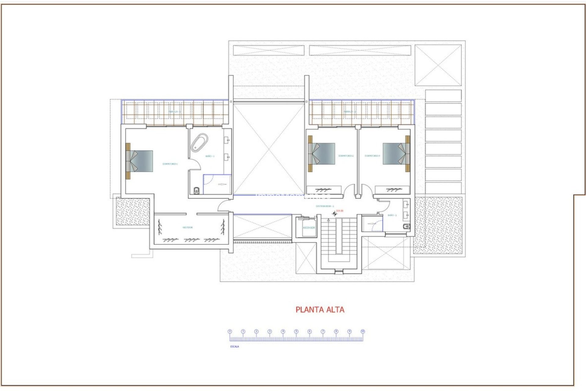
Premier étage ; ascenseur, chambre principale avec salle de bain attenante, dressing et terrasse privée, 2 autres chambres qui partagent une salle de bain et chacune avec une terrasse.
Sous-sol ; grand garage, ascenseur, salle des machines, salle de stockage, sauna, salle de bain, gymnase, le sous-sol a des fenêtres donc il y a une possibilité d'adapter le plan et d'ajouter une autre chambre avec salle de bain ensuite sans augmenter le coût.
La conception peut facilement être adaptée pour vous donner plus de chambres et/ou de salles de bains.
Exemple de quelques spécifications,
- Carreaux de sol intérieurs et extérieurs de GRESPANIA
- Murs de salle de bain avec des plaques COVERLAM (GRESPANIA) 2700X1200
- Salles de bains de ROCA - GEBERIT ou VILLEROY BOCH
- Aérothermie/air conditionné
- Ascenseur de Schindler ou similaire
- Chauffage par le sol dans toute la villa
- Fenêtres à hauteur de plafond avec un rail en creux, 5+5/chambre/4+4
- Porte d'entrée pivotante à hauteur de plafond
- Portes HPL à hauteur de plafond et d'une largeur de 1 mètre,
- Cuisine entièrement équipée avec des portes à cadre en aluminium et recouvertes de COVERLAM
- Îlot avec COVERLAM 3600X1600 sans joints visibles
- Appareils électroménagers de Bosch ou AEG
- Appareils électriques de NIESSEN ou BTICINO
- Piscine à débordement chauffée de 88,00 m2 avec couverture automatique
- 24 panneaux solaires
- 2 batteries au lithium de 10 kW chacune
- Chargeur de voiture
- Domotica
Nous sommes une entreprise de construction, Key-in-Hand, qui peut concevoir et construire toutes les possibilités auxquelles vous pouvez penser. Si vous ne trouvez pas chez nous un projet qui vous plaît, nous concevons une villa totalement nouvelle pour vous, en fonction de vos idées et de vos suggestions.
Bien que nous préférions construire des bâtiments écologiques, nous pouvons construire des bâtiments traditionnels ou écologiques, tout dépend de vous.