Deze prachtige eigentijdse ecologische villa is een off-plan in de prachtige omgeving van Marbella Club Golf met prachtig open golfzicht en uitzicht op de bergen en zal worden afgewerkt met de hoogst mogelijke specificaties op 3 verdiepingen.
Deze villa zal bestaan uit:
Begane grond; dubbelhoge entree, lift, gastentoilet, grote woon-/eetkamer met open keuken, wasruimte, schoenenkleedkamer en kantoorruimte die kan worden omgezet in een slaapkamer met badkamer.
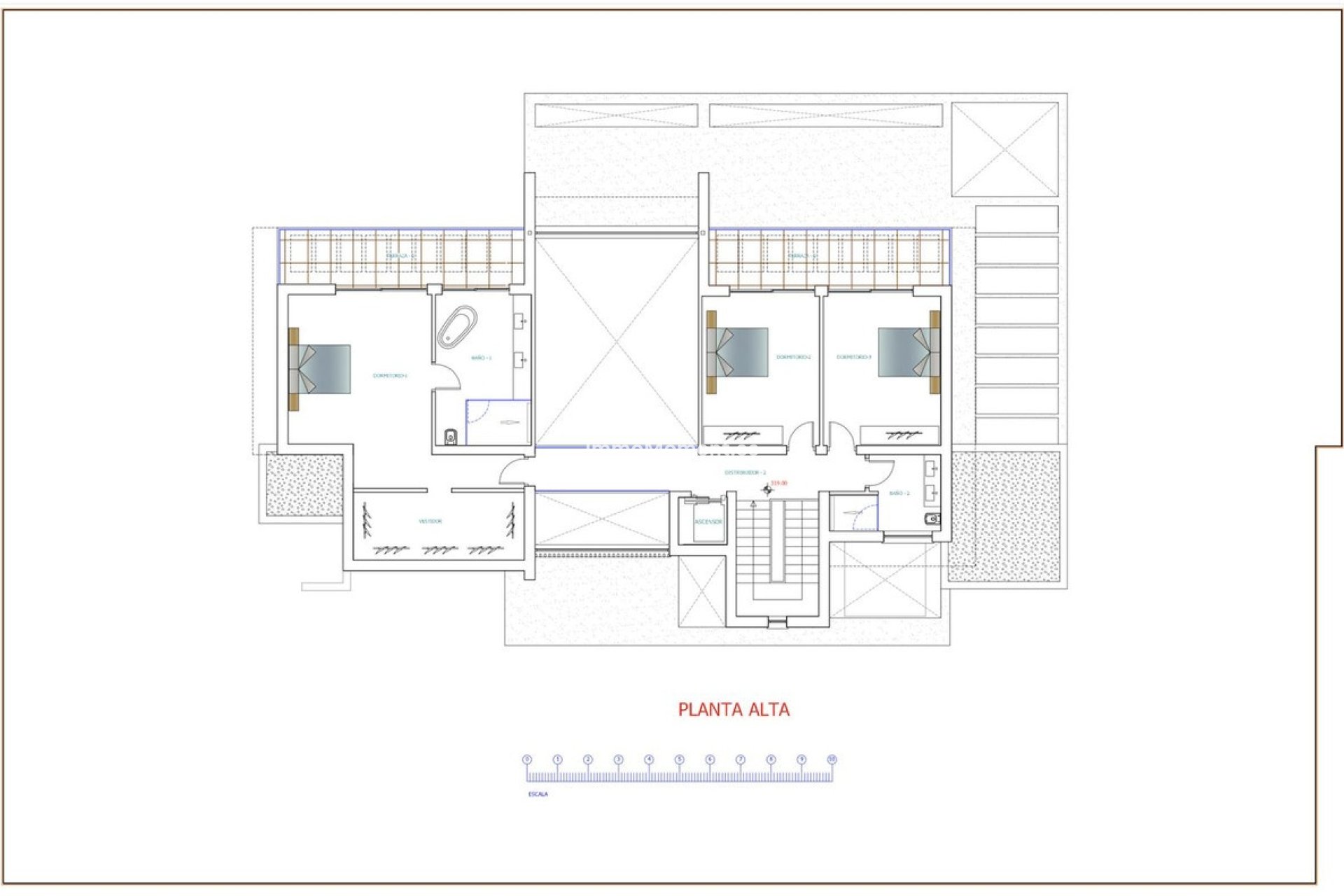
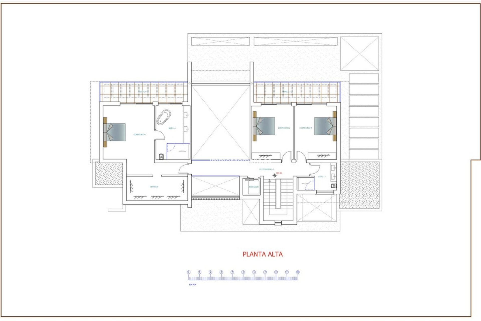
Eerste verdieping; lift, hoofdslaapkamer met ensuite badkamer, dressing en privéterras, nog 2 slaapkamers die een badkamer delen en elk een terras hebben.
Kelder; grote garage, lift, machinekamer, opslagruimte, sauna, badkamer, fitnessruimte, de kelder heeft ramen dus er is een mogelijkheid om de plattegrond aan te passen en nog een slaapkamer met badkamer ensuite toe te voegen zonder de kosten te verhogen.
Het ontwerp kan gemakkelijk worden aangepast voor meer slaapkamers en/of badkamers.
Voorbeeld van enkele specificaties,
- Vloertegels binnen en buiten van GRESPANIA
- Badkamerwanden met COVERLAM platen (GRESPANIA) 2700X1200
- Badkamers van ROCA - GEBERIT of VILLEROY BOCH
- Aerothermie/airconditioning
- Lift van Schindler of gelijkwaardig
- Vloerverwarming in de gehele villa
- Plafondhoge ramen met een verzonken rail, 5+5/kamer/4+4
- Draaibare toegangsdeur plafondhoog
- Plafondhoge en 1-meter brede HPL deuren, 30dB
- Volledig ingerichte keuken met deuren in aluminium frame en bedekt met COVERLAM
- Eiland met COVERLAM geen zichtbare voegen
- Witgoed van Bosch of AEG
- Elektriciteitsarmaturen van NIESSEN of BTICINO
- Verwarmd overloopzwembad van 88,00 m2 met automatische afdekking
- 24 zonnepanelen
- 2 lithium batterijen van elk 10kW
- Autolader
- Domotica
Wij zijn een bouwbedrijf, Key-in-Hand, dat elke mogelijkheid die je maar kunt bedenken kan ontwerpen en bouwen. Als je geen ontwerp van ons ziet dat je mooi vindt, ontwerpen we een totaal nieuwe villa voor je volgens jouw ideeën en input.
Hoewel we de voorkeur geven aan ecologisch bouwen, kunnen we van traditionele bouw tot ecologische constructies bouwen, het hangt allemaal van jou af.