Fuengirola. Málaga Fuengirola. Málaga Appartement. Revente

Voir plus de photos
Réf. RSO-62572

€609.000 *

Aperçu

Fuengirola. Málaga Fuengirola. Málaga Appartement. Revente

  • m²

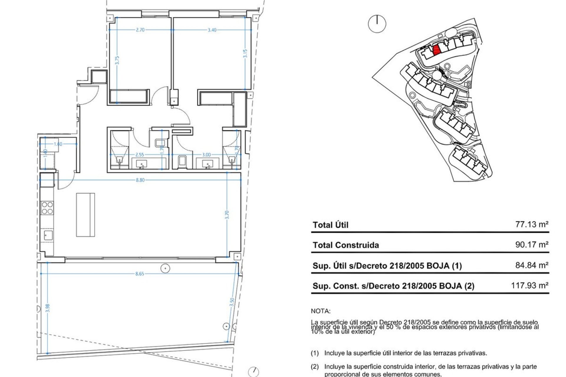
    m².

    91m2
  • Chambres

    Chambres.

    2
  • Salles de bain

    Salles de bain.

    2
  • Piscine

    Piscine.

    Oui

Emplacement

ImmoMoment

Nous vous aidons à trouver le bon logement

Faire une demande

Responsable du traitement: ImmoMoment España SLU, Finalité du traitement: Gestion et contrôle des services proposés sur le site Web des Services immobiliers, Envoi d'informations via newsletter et autres, Base légale: Par consentement, Destinataires: Les données ne seront pas partagées, sauf à des fins comptables, Droits des personnes concernées: Accéder, rectifier et supprimer les données, demander leur portabilité, s’opposer au traitement et en demander la limitation, Source des données: La personne concernée, Informations supplémentaires: Vous pouvez consulter les informations supplémentaires et détaillées sur la protection des données Ici.
WhatsApp