Fuengirola. Málaga Fuengirola. Málaga Appartement. Bestaande woning

Ref. RSO-62572

€609.000 *

Bekijk meer foto's
Ref. RSO-62572

€609.000 *

Overzicht

Fuengirola. Málaga Fuengirola. Málaga Appartement. Bestaande woning

  • m²

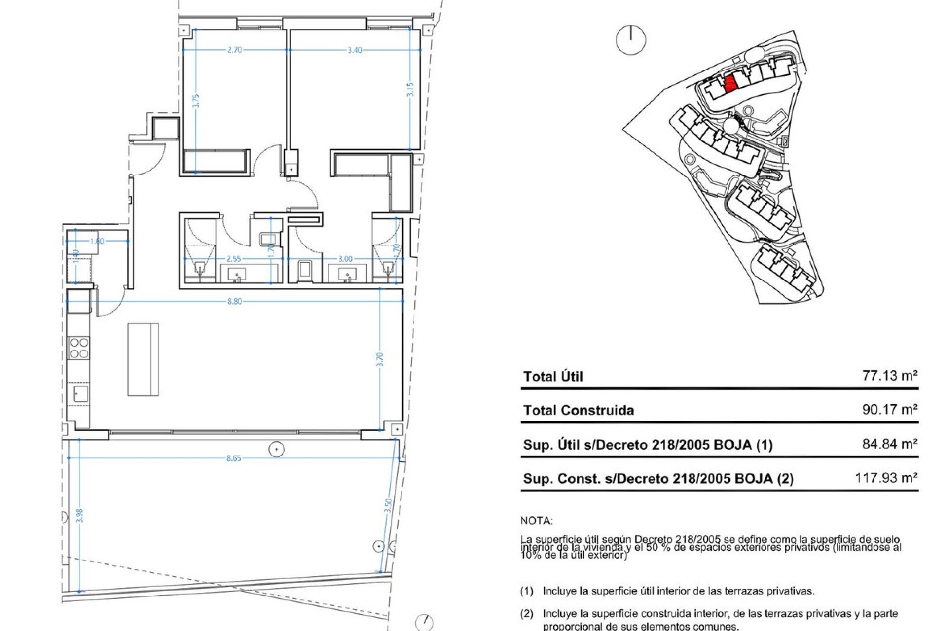
    m².

    91m2
  • Slaapkamers

    Slaapkamers.

    2
  • Badkamers

    Badkamers.

    2
  • Zwembad

    Zwembad.

    Ja

Locatie

ImmoMoment

Wij helpen u het juiste huis te vinden

Doe een aanvraag

Verwerkingsverantwoordelijke: ImmoMoment España SLU, Doel van de verwerking: Beheer en controle van de diensten die worden aangeboden via de Vastgoeddiensten-website, Verzenden van informatie via nieuwsbrief en andere, Rechtsgrond: Met toestemming, Ontvangers: Gegevens worden niet gedeeld, behalve voor boekhoudkundige doeleinden, Rechten van betrokkenen: Toegang, rectificatie en verwijdering van gegevens, verzoek om overdraagbaarheid, bezwaar tegen verwerking en verzoek om beperking daarvan, Herkomst van gegevens: De Betrokkene, Aanvullende informatie: U kunt aanvullende en gedetailleerde informatie over gegevensbescherming Hier raadplegen.
WhatsApp