Fuengirola. Málaga Fuengirola. Málaga Apartment. Resale

Ref. RSO-62572

€609.000 *

See more photos
Ref. RSO-62572

€609.000 *

Overview

Fuengirola. Málaga Fuengirola. Málaga Apartment. Resale

  • Meters

    Meters.

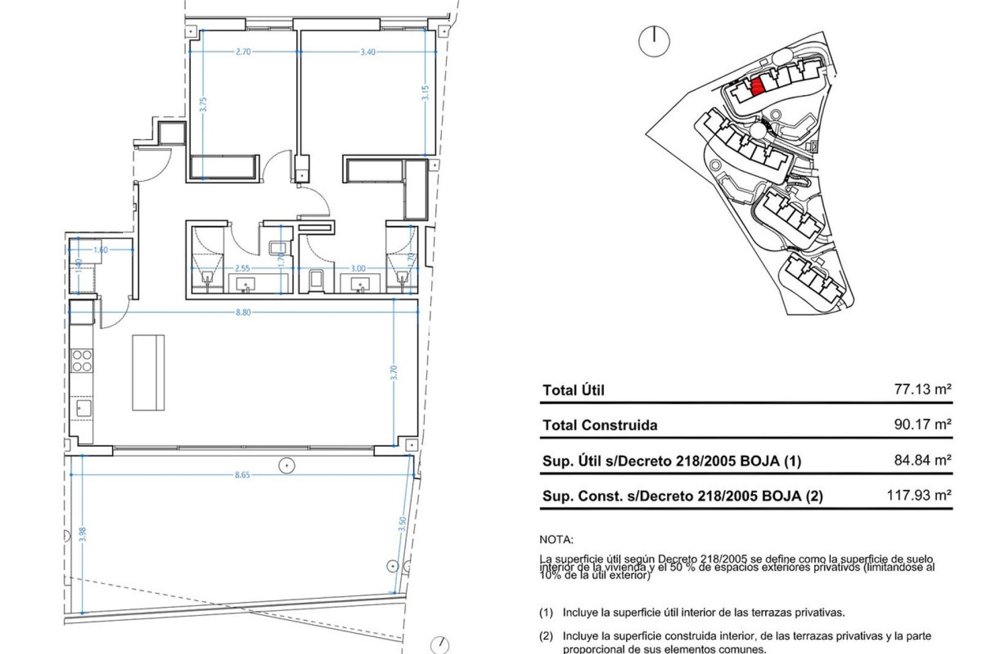
    91m2
  • Bed

    Bed.

    2
  • Bath

    Bath.

    2
  • Pool

    Pool.

    Yes

Description

Location

ImmoMoment

We help you find the right home

Make an enquiry

Data Controller: ImmoMoment España SLU, Purpose of Processing: Management and control of the services offered through the Real Estate Services website, Sending information via newsletter and others, Legal Basis: By consent, Recipients: Data will not be shared, except for accounting purposes, Rights of Interested Parties: Access, rectify, and delete data, request its portability, object to processing, and request its limitation, Source of Data: The Data Subject, Additional Information: You can consult additional and detailed information on data protection Here.
WhatsApp